特性
探索我们的清单
聯繫
告诉我们您的需求

8716 PINE TREE DRIVE

合同活跃
$245,000

BTC: 8.16666667

ETH: 122.50000000

22 天
3 贝兹
2 浴室
1,404 平方英尺
Est. 预计销售范围: $0 - $0
$0

总览

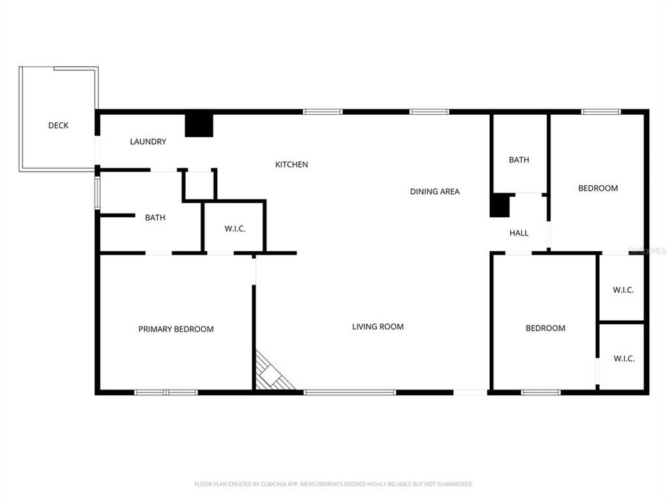
Under contract-accepting backup offers. Take a look at this 3 bedroom 2 bathroom home sitting on close to 2 acres of HIGH and DRY land with NO HOA! ROOF 2018! This property is fully fenced in for your privacy. Inside, you’ll find a spacious living room with vaulted ceilings that leads into your open kitchen and dining area. The kitchen features plenty of cabinet and countertop space as well as a breakfast bar for those quick morning meals. The primary bedroom offers plenty of space and features an en suite bathroom with a single sink vanity, stand up shower and walk-in closet, the en suite also provides access to your inside laundry room. The remaining two bedrooms are generously sized, each with their own walk-in closet and share the main hall bathroom featuring a single sink vanity and tub/shower combo. Outside, you’ll find a storage shed and basketball goal along with plenty of beautiful land to enjoy! This home has so much to offer. Schedule your private showing today!

位置

佛罗里达 LAKELAND 33809 合同活跃

详情与特色

类型:
Residential
停车:
没有数据
建造年份:
1998
地段:
1.98 英亩
暖气:
Other
价格/平方英尺:
$175
冷气:
Wall/Window Unit(s)
HOA:
没有数据
更多事实和特点
  • 地板

    • Carpet

    • Vinyl

    暖气

    • Other

    冷气

    • Wall/Window Unit(s)

    设备

    • Dishwasher

    • Range

    • Refrigerator

    其他室内特点

    • Ceiling Fan(s)

    • Primary Bedroom Main Floor

    • Vaulted Ceiling(s)

    卧室和浴室

    • 卧室: 3

    • 完整的浴室: 2

  • 房屋

    • 等级: One

    • 外观特征: Other

    地段

    • 地段: 1.98 英亩

    其他财产信息

    • 包裹编号: 242705000000024040

    • 分区: RC

  • 类型与风格

    • 财产种类: Residential

    • 属性子类型: Manufactured Home

  • 公益

    • BB/HS Internet Available

    • Cable Available

    • Electricity Available

    • Phone Available

  • 其他财政信息

    • 年税额: $698

  • 来源细节

    • MLS ID: L4956615

    其他详情

    • 建筑材料: Vinyl Siding / Wood Frame

    • 基金会详情: Crawlspace

    • 洗衣功能: Laundry Room

    • 地段特征: Cul-De-Sac / Level / Private

    • 方向面: East

    • 生活区域: 1404

    • 水源: Public

    • 细分名称: NOT IN A SUBDIVISION

类似房屋

5840 MALLARD DRIVE placeholder 5840 MALLARD DRIVE
2 天
合同活跃
房屋
$274,000
2 贝兹 2 浴室 1,572 平方英尺
5840 MALLARD DRIVE
5955 CHICKADEE DRIVE placeholder 5955 CHICKADEE DRIVE
8 天
合同活跃
房屋
$273,500
2 贝兹 2 浴室 1,348 平方英尺
5955 CHICKADEE DRIVE
5939 HILLTOP LANE E placeholder 5939 HILLTOP LANE E
15 天
合同活跃
房屋
$189,900
3 贝兹 1 浴室 1,051 平方英尺
5939 HILLTOP LANE E
6301 EGRET DRIVE placeholder 6301 EGRET DRIVE
16 天
合同活跃
房屋
$274,000
2 贝兹 2 浴室 1,436 平方英尺
6301 EGRET DRIVE
6325 DOE CIRCLE E placeholder 6325 DOE CIRCLE E
23 天
合同活跃
房屋
$295,000
2 贝兹 2 浴室 1,012 平方英尺
6325 DOE CIRCLE E
6132 MAGPIE DRIVE placeholder 6132 MAGPIE DRIVE
34 天
合同活跃
房屋
$285,000
2 贝兹 2 浴室 1,496 平方英尺
6132 MAGPIE DRIVE
723 FOX LAKE DRIVE placeholder 723 FOX LAKE DRIVE
-$30K (2025/10/29)
合同活跃
房屋
$249,900
3 贝兹 2 浴室 1,360 平方英尺
723 FOX LAKE DRIVE
571 LINDSEY DRIVE placeholder 571 LINDSEY DRIVE
-$25K (2025/07/30)
合同活跃
$200,000
3 贝兹 2 浴室 1,647 平方英尺
571 LINDSEY DRIVE

The multiple listing information is provided by the Stellar MLS from a copyrighted compilation of listings. The compilation of listings and each individual listing are ©2025-present Stellar MLS. All Rights Reserved. The information provided is for consumers' personal, noncommercial use and may not be used for any purpose other than to identify prospective properties consumers may be interested in purchasing. All properties are subject to prior sale or withdrawal. All information provided is deemed reliable but is not guaranteed accurate, and should be independently verified. Listing courtesy of: KELLER WILLIAMS REALTY SMART