特性
探索我们的清单
聯繫
告诉我们您的需求

10442 RIVER BREAM DRIVE

房屋 合同活跃
$385,000

BTC: 12.83333333

ETH: 192.50000000

-$15K (2025/10/03)
42 天
6 贝兹
2 浴室
2,856 平方英尺
Est. 预计销售范围: $0 - $0
$0

总览

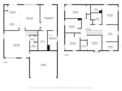
Under contract-accepting backup offers. Price improvement!!NO CDD fees and low HOA! Welcome to your new home in the highly desirable FishHawk community, located in an A-rated school zone (Barrington Middle, Newsome High). Just minutes from shopping, dining, I-75, and the Crosstown Expressway, this home offers both convenience and lifestyle. This spacious 6-bedroom, 2.5-bath home features an open floor plan, soaring ceilings, and abundant natural light — the perfect blank slate to make your own. The roof is only 3 years old, providing added peace of mind. The kitchen offers beautiful upgrades, modern appliances, opening to a large family room ideal for entertaining. The primary suite includes a walk-in closet and private bath, while the additional bedrooms provide flexible space for family, guests, or a home office. Wood floors and a fully fenced backyard complete the picture, offering plenty of room for outdoor living. This home was loved by its owner and will require minor updates and touch-ups, presenting the perfect opportunity to create your dream space in one of Tampa Bay’s most sought-after communities. Schedule your showing today!

位置

详情与特色

类型:
Residential
停车:
没有数据
建造年份:
2004
地段:
0.16 英亩
暖气:
Central / Electric / Heat Pump
价格/平方英尺:
$135
冷气:
Central Air
HOA:
$130
更多事实和特点
  • 地板

    • Carpet

    • Tile

    暖气

    • Central

    • Electric

    • Heat Pump

    冷气

    • Central Air

    设备

    • Dishwasher

    • Disposal

    • Dryer

    • Electric Water Heater

    • Microwave

    • Range

    • Refrigerator

    • Washer

    其他室内特点

    • Ceiling Fan(s)

    • Eating Space In Kitchen

    • Kitchen/Family Room Combo

    • Living Room/Dining Room Combo

    • Open Floorplan

    • PrimaryBedroom Upstairs

    • Walk-In Closet(s)

    卧室和浴室

    • 卧室: 6

    • 洗手间: 1

    • 完整的浴室: 2

  • 房屋

    • 等级: One

    • 外观特征: Other

    地段

    • 地段: 0.16 英亩

    其他财产信息

    • 包裹编号: U25302071AI0000000080.0

    • 分区: PD

  • 类型与风格

    • 财产种类: Residential

    • 属性子类型: Single Family Residence

  • 公益

    • BB/HS Internet Available

    • Cable Available

    • Cable Connected

    • Electricity Connected

    • Phone Available

    • Public

    • Sewer Connected

    • Street Lights

    • Underground Utilities

    • Water Connected

  • 其他财政信息

    • HOA: $130

    • HOA频率: Semi-Annually

    • 年税额: $2,413

  • 来源细节

    • MLS ID: TB8429051

    其他详情

    • 建筑材料: Block / Stucco

    • 基金会详情: Slab

    • 洗衣功能: Electric Dryer Hookup / Inside / Laundry Room / Washer Hookup

    • 方向面: West

    • 车库空间: 2

    • 附属车库: 是

    • 车库: 是

    • 生活区域: 2856

    • 水源: Public

    • 地块大小: 65 x 110

    • 细分名称: BOYETTE CREEK PH 2

类似房屋

12101 GLENHILL DRIVE placeholder 12101 GLENHILL DRIVE
3 天
合同活跃
$300,000
3 贝兹 2 浴室 1,456 平方英尺
12101 GLENHILL DRIVE
12203 WILDBROOK DRIVE placeholder 12203 WILDBROOK DRIVE
7 天
合同活跃
房屋
$449,900
4 贝兹 2 浴室 2,292 平方英尺
12203 WILDBROOK DRIVE
9301 SUNNYOAK DRIVE placeholder 9301 SUNNYOAK DRIVE
8 天
合同活跃
房屋
$474,990
4 贝兹 2 浴室 2,098 平方英尺
9301 SUNNYOAK DRIVE
2116 GOLF MANOR BOULEVARD placeholder 2116 GOLF MANOR BOULEVARD
8 天
合同活跃
房屋
$400,000
4 贝兹 3 浴室 2,528 平方英尺
2116 GOLF MANOR BOULEVARD
4425 TEVALO DRIVE placeholder 4425 TEVALO DRIVE
10 天
合同活跃
$300,000
3 贝兹 2 浴室 1,872 平方英尺
4425 TEVALO DRIVE
4031 EASTRIDGE DRIVE placeholder 4031 EASTRIDGE DRIVE
11 天
合同活跃
房屋
$395,000
4 贝兹 2 浴室 2,018 平方英尺
4031 EASTRIDGE DRIVE
11804 BALM RIVERVIEW ROAD placeholder 11804 BALM RIVERVIEW ROAD
14 天
合同活跃
房屋
$286,000
3 贝兹 1 浴室 1,176 平方英尺
11804 BALM RIVERVIEW ROAD
5719 TANAGERLAKE ROAD placeholder 5719 TANAGERLAKE ROAD
15 天
合同活跃
房屋
$335,000
4 贝兹 2 浴室 1,463 平方英尺
5719 TANAGERLAKE ROAD

The multiple listing information is provided by the Stellar MLS from a copyrighted compilation of listings. The compilation of listings and each individual listing are ©2025-present Stellar MLS. All Rights Reserved. The information provided is for consumers' personal, noncommercial use and may not be used for any purpose other than to identify prospective properties consumers may be interested in purchasing. All properties are subject to prior sale or withdrawal. All information provided is deemed reliable but is not guaranteed accurate, and should be independently verified. Listing courtesy of: REAL BROKER, LLC