特性
探索我们的清单
聯繫
告诉我们您的需求

1727 BARROW STREET

房屋 待售
$495,000

BTC: 5.73248408

ETH: 169.17293233

259 天
5 贝兹
3 浴室
2,340 平方英尺
Est. 预计销售范围: $0 - $0
$0

总览

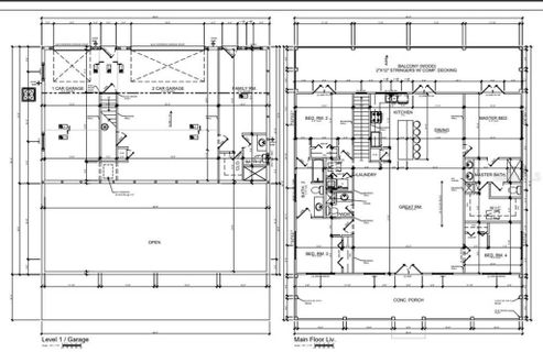
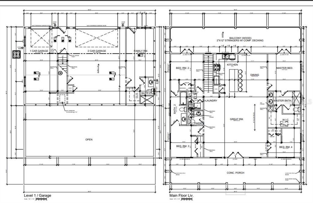
Pre-Construction. To be built. Very Rare 5 Bedroom 3 Car Garage Custom Home on Large Lot that backs up to a Conservation area. Plans are complete but can be modified depending on the change. Large Bedrooms which are seperated by the common area. Vaulted Ceiling in the common area as you enter the from the front door. Extra Large Front and Rear Porches. Master and one Guest room have French doors leading to the rear Porch. Spacious Kitchen, living room and Dinning Room. Garage is large with plenty of space for workshop. Storage area under stairs. Property is listed by Licenced Real Estate Professional. Great In-law and Multi-Generational Home

位置

佛罗里达 DELTONA 32725 房屋 待售

详情与特色

类型:
Residential
停车:
没有数据
建造年份:
2025
地段:
0.37 英亩
暖气:
Electric / Heat Pump
价格/平方英尺:
$212
冷气:
Central Air
HOA:
没有数据
更多事实和特点
  • 地板

    • Luxury Vinyl

    暖气

    • Electric

    • Heat Pump

    冷气

    • Central Air

    设备

    • Convection Oven

    • Dishwasher

    • Disposal

    • Microwave

    • Range

    其他室内特点

    • Cathedral Ceiling(s)

    • High Ceilings

    • Open Floorplan

    • Primary Bedroom Main Floor

    • Solid Surface Counters

    • Walk-In Closet(s)

    卧室和浴室

    • 卧室: 5

    • 洗手间: 1

    • 完整的浴室: 3

  • 房屋

    • 等级: Two

    • 外观特征: French Doors

    地段

    • 地段: 0.37 英亩

    其他财产信息

    • 包裹编号: 18133053070020

    • 分区: 01R

  • 类型与风格

    • 财产种类: Residential

    • 属性子类型: Single Family Residence

  • 公益

    • Cable Available

    • Electricity Connected

    • Water Connected

  • 其他财政信息

    • 年税额: $1,439

  • 来源细节

    • MLS ID: O6296403

    其他详情

    • 建筑材料: Cement Siding / HardiPlank Type

    • 基金会详情: Slab / Stem Wall

    • 洗衣功能: Electric Dryer Hookup / Washer Hookup

    • 地段特征: Cleared

    • 天井和门廊特色: Front Porch / Rear Porch

    • 方向面: South

    • 建筑风格: Craftsman

    • 车库空间: 3

    • 附属车库: 是

    • 车库: 是

    • 生活区域: 2340

    • 水源: None

    • 细分名称: DELTONA LAKES UNIT 53

类似房屋

2656 IVYDALE DRIVE placeholder 2656 IVYDALE DRIVE
1 天
待售
房屋
$379,900
3 贝兹 2 浴室 1,854 平方英尺
2656 IVYDALE DRIVE
2661 HOWLAND BOULEVARD placeholder 2661 HOWLAND BOULEVARD
2 天
待售
房屋
$379,900
4 贝兹 2 浴室 2,328 平方英尺
2661 HOWLAND BOULEVARD
1566 FINDLAY STREET placeholder 1566 FINDLAY STREET
6 天
待售
房屋
$389,000
4 贝兹 2 浴室 1,750 平方英尺
1566 FINDLAY STREET
2004 CANOPY TERRACE BOULEVARD placeholder 2004 CANOPY TERRACE BOULEVARD
8 天
待售
房屋
$399,900
3 贝兹 2 浴室 2,164 平方英尺
2004 CANOPY TERRACE BOULEVARD
1808 COROLLA COURT placeholder 1808 COROLLA COURT
9 天
待售
房屋
$455,000
4 贝兹 3 浴室 2,060 平方英尺
1808 COROLLA COURT
2266 Fillmore Ave, Deltona FL 32725 placeholder 2266 Fillmore Ave, Deltona FL 32725
11 天
待售
房屋
$420,000
3 贝兹 2 浴室
2266 Fillmore Ave, Deltona FL 32725
3137 LOBLOLLY STREET placeholder 3137 LOBLOLLY STREET
13 天
待售
房屋
$379,500
4 贝兹 2 浴室 1,760 平方英尺
3137 LOBLOLLY STREET
3152 WOOD ROSE WAY placeholder 3152 WOOD ROSE WAY
13 天
待售
房屋
$362,500
4 贝兹 2 浴室 2,106 平方英尺
3152 WOOD ROSE WAY

The multiple listing information is provided by the Stellar MLS from a copyrighted compilation of listings. The compilation of listings and each individual listing are ©2025-present Stellar MLS. All Rights Reserved. The information provided is for consumers' personal, noncommercial use and may not be used for any purpose other than to identify prospective properties consumers may be interested in purchasing. All properties are subject to prior sale or withdrawal. All information provided is deemed reliable but is not guaranteed accurate, and should be independently verified. Listing courtesy of: SUNCOR REALTY, INC.