特性
探索我们的清单
聯繫
告诉我们您的需求

1913 VANDALIA PLACE

房屋 待售
$431,990

BTC: 14.39966667

ETH: 215.99500000

1 天
5 贝兹
3 浴室
2,605 平方英尺
Est. 预计销售范围: $0 - $0
$0

总览

Under Construction. ALL CLOSING COSTS PAID + Special Interest Rates with the use of our preferred lender - Now through Dec. 14th. Legacy Preserve is D.R. Horton's newest community located off of North Rye Road, just north of Upper Manatee River Road. All of our homes feature all-concrete block construction on the first and second floors and D.R. Horton’s state-of-the-art Smart Home Automation system. Leacy Preserve's first amenity center is currently under construction and will contain a clubhouse, resort-style pool, playground, dog park, fitness center and open lawn space for sports and activities.

位置

佛罗里达 PARRISH 34219 房屋 待售

详情与特色

类型:
Residential
停车:
Driveway / Garage Door Opener
建造年份:
2026
地段:
0.15 英亩
暖气:
Electric
价格/平方英尺:
$166
冷气:
Central Air
HOA:
$297
更多事实和特点
  • 地板

    • Carpet

    • Luxury Vinyl

    暖气

    • Electric

    冷气

    • Central Air

    设备

    • Dishwasher

    • Dryer

    • Microwave

    • Range

    • Refrigerator

    • Washer

    其他室内特点

    • High Ceilings

    • Smart Home

    • Thermostat

    卧室和浴室

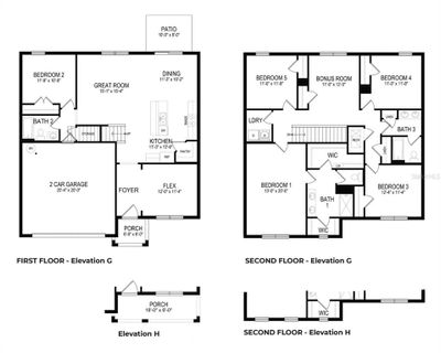
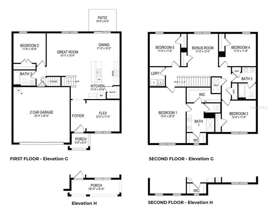
    • 卧室: 5

    • 完整的浴室: 3

  • 停车

    • Driveway

    • Garage Door Opener

    房屋

    • 等级: Two

    • 外观特征: Hurricane Shutters / Irrigation System

    地段

    • 地段: 0.15 英亩

    其他财产信息

    • 包裹编号: 513318559

    • 分区: PD MU

  • 类型与风格

    • 财产种类: Residential

    • 属性子类型: Single Family Residence

  • 公益

    • Electricity Available

    • Public

  • 其他财政信息

    • HOA: $297

    • HOA频率: Quarterly

  • 来源细节

    • MLS ID: A4674548

    其他详情

    • 建筑材料: Concrete

    • 基金会详情: Slab

    • 洗衣功能: Laundry Closet / Laundry Room

    • 天井和门廊特色: Covered

    • 泳池特色: Other

    • 方向面: Northeast

    • 车库空间: 2

    • 附属车库: 是

    • 车库: 是

    • 生活区域: 2605

    • 水源: Public

    • 细分名称: LEGACY PRESERVE

类似房屋

17431 WHISKEY CREEK TRAIL placeholder 17431 WHISKEY CREEK TRAIL
待售
房屋
$353,990
4 贝兹 2 浴室 1,665 平方英尺
17431 WHISKEY CREEK TRAIL
17435 WHISKEY CREEK TRAIL placeholder 17435 WHISKEY CREEK TRAIL
待售
房屋
$352,990
4 贝兹 2 浴室 1,665 平方英尺
17435 WHISKEY CREEK TRAIL
17227 WHISKEY CREEK TRAIL placeholder 17227 WHISKEY CREEK TRAIL
待售
房屋
$497,990
5 贝兹 3 浴室 2,490 平方英尺
17227 WHISKEY CREEK TRAIL
1929 VANDALIA PLACE placeholder 1929 VANDALIA PLACE
1 天
待售
房屋
$435,990
5 贝兹 3 浴室 2,605 平方英尺
1929 VANDALIA PLACE
1917 VANDALIA PLACE placeholder 1917 VANDALIA PLACE
1 天
待售
房屋
$374,990
3 贝兹 2 浴室 1,672 平方英尺
1917 VANDALIA PLACE
1831 COBB TRAIL placeholder 1831 COBB TRAIL
1 天
待售
房屋
$449,000
4 贝兹 2 浴室 2,045 平方英尺
1831 COBB TRAIL
17182 JAMES TRAIL placeholder 17182 JAMES TRAIL
1 天
待售
房屋
$483,990
4 贝兹 3 浴室 2,372 平方英尺
17182 JAMES TRAIL
177 TIERRA VERDE WAY placeholder 177 TIERRA VERDE WAY
1 天
待售
房屋
$435,000
4 贝兹 2 浴室 1,767 平方英尺
177 TIERRA VERDE WAY

The multiple listing information is provided by the Stellar MLS from a copyrighted compilation of listings. The compilation of listings and each individual listing are ©2025-present Stellar MLS. All Rights Reserved. The information provided is for consumers' personal, noncommercial use and may not be used for any purpose other than to identify prospective properties consumers may be interested in purchasing. All properties are subject to prior sale or withdrawal. All information provided is deemed reliable but is not guaranteed accurate, and should be independently verified. Listing courtesy of: D.R. HORTON REALTY OF SARASOTA