特性
探索我们的清单
聯繫
告诉我们您的需求

2046 HEARTLAND CIRCLE

房屋 待售
$448,000

BTC: 6.89230769

ETH: 235.78947368

19 天
4 贝兹
3 浴室
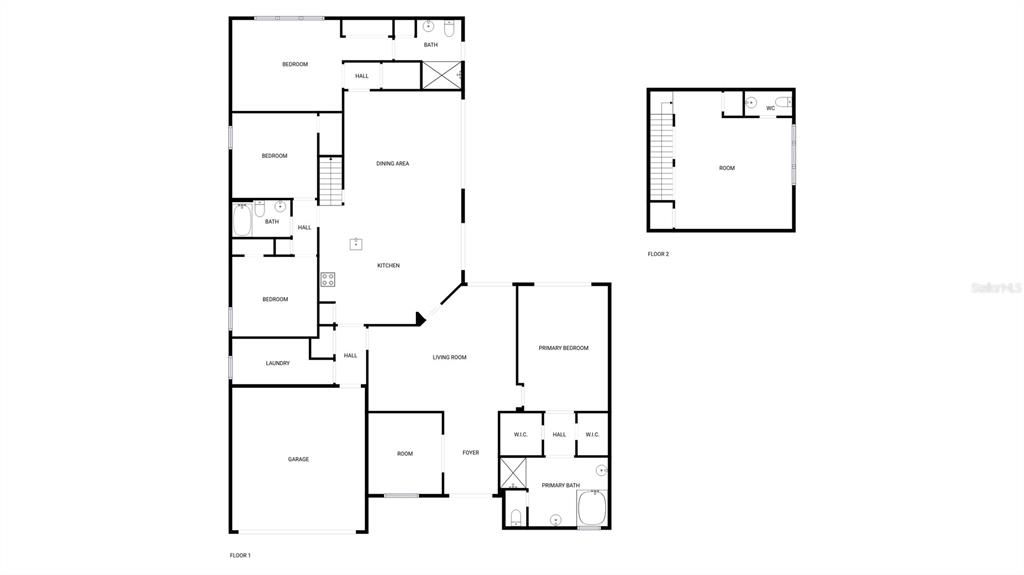
3,203 平方英尺
Est. 预计销售范围: $0 - $0
$0

总览

Welcome to this beautifully maintained property, boasting a neutral color paint scheme that enhances its elegance. The kitchen is a chef's dream with all stainless steel appliances, a kitchen island for extra prep space, and an accent backsplash adding a touch of sophistication. The primary bathroom features double sinks for convenience, along with a separate tub and shower for a spa-like experience. Enjoy outdoor living with a covered patio and a fenced-in backyard, perfect for entertaining or simply relaxing. This property is a must-see for those seeking a blend of style and comfort. Included 100-Day Home Warranty with buyer activation

位置

佛罗里达 VALRICO 33594 房屋 待售

详情与特色

类型:
Residential
停车:
Driveway
建造年份:
2005
地段:
0.22 英亩
暖气:
Central
价格/平方英尺:
$140
冷气:
Central Air
HOA:
$55
更多事实和特点
  • 地板

    • Carpet

    • Tile

    暖气

    • Central

    冷气

    • Central Air

    设备

    • Dishwasher

    • Electric Water Heater

    • Microwave

    • Other

    其他室内特点

    • Ceiling Fan(s)

    • Living Room/Dining Room Combo

    • Primary Bedroom Main Floor

    卧室和浴室

    • 卧室: 4

    • 洗手间: 1

    • 完整的浴室: 3

  • 停车

    • Driveway

    房屋

    • 等级: Two

    • 外观特征: Other

    地段

    • 地段: 0.22 英亩

    其他财产信息

    • 包裹编号: U13292076L00000200019.0

    • 分区: PD

  • 类型与风格

    • 财产种类: Residential

    • 属性子类型: Single Family Residence

  • 公益

    • Electricity Available

    • Water Available

  • 其他财政信息

    • HOA: $55

    • HOA频率: Monthly

    • 年税额: $3,199

  • 来源细节

    • MLS ID: O6368690

    其他详情

    • 建筑材料: Stucco

    • 基金会详情: Slab

    • 洗衣功能: Laundry Room

    • 方向面: South

    • 车库空间: 2

    • 附属车库: 是

    • 车库: 是

    • 生活区域: 3203

    • 水源: Public

    • 细分名称: OAKS AT VALRICO PH 2

类似房屋

2973 FOREST CIRCLE placeholder 2973 FOREST CIRCLE
待售
房屋
$365,000
3 贝兹 2 浴室 1,719 平方英尺
2973 FOREST CIRCLE
601 PARSONS RESERVE COURT placeholder 601 PARSONS RESERVE COURT
待售
房屋
$339,000
3 贝兹 2 浴室 1,212 平方英尺
601 PARSONS RESERVE COURT
1931 JAUDON ROAD placeholder 1931 JAUDON ROAD
1 天
待售
房屋
$575,000
6 贝兹 4 浴室 2,975 平方英尺
1931 JAUDON ROAD
404 REGAL PARK DRIVE placeholder 404 REGAL PARK DRIVE
1 天
待售
房屋
$350,000
3 贝兹 2 浴室 1,154 平方英尺
404 REGAL PARK DRIVE
211 WESTCHESTER HILLS LANE placeholder 211 WESTCHESTER HILLS LANE
2 天
待售
房屋
$399,000
3 贝兹 2 浴室 1,981 平方英尺
211 WESTCHESTER HILLS LANE
1403 EMERALD HILL WAY placeholder 1403 EMERALD HILL WAY
5 天
待售
房屋
$535,000
4 贝兹 2 浴室 2,143 平方英尺
1403 EMERALD HILL WAY
702 OLD DARBY STREET placeholder 702 OLD DARBY STREET
10 天
待售
房屋
$439,000
4 贝兹 4 浴室 2,269 平方英尺
702 OLD DARBY STREET
319 COUNTRY VINEYARD DRIVE placeholder 319 COUNTRY VINEYARD DRIVE
15 天
待售
房屋
$419,900
4 贝兹 3 浴室 2,394 平方英尺
319 COUNTRY VINEYARD DRIVE

The multiple listing information is provided by the Stellar MLS from a copyrighted compilation of listings. The compilation of listings and each individual listing are ©2026-present Stellar MLS. All Rights Reserved. The information provided is for consumers' personal, noncommercial use and may not be used for any purpose other than to identify prospective properties consumers may be interested in purchasing. All properties are subject to prior sale or withdrawal. All information provided is deemed reliable but is not guaranteed accurate, and should be independently verified. Listing courtesy of: OPENDOOR BROKERAGE LLC