特性
探索我们的清单
聯繫
告诉我们您的需求

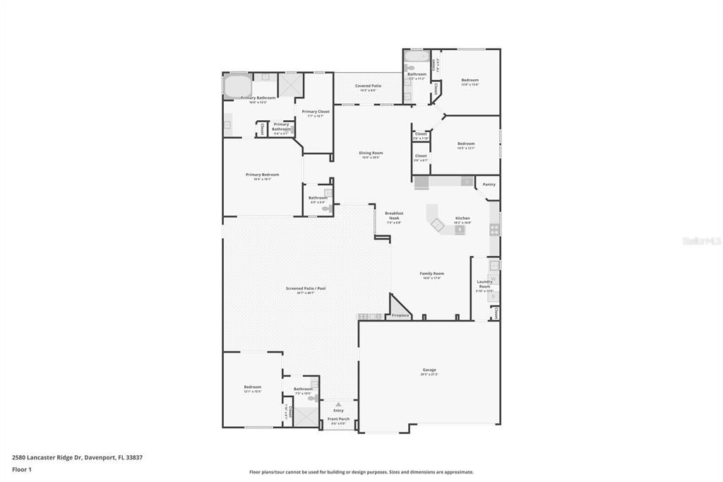
2580 LANCASTER RIDGE

房屋 待售
$765,000

BTC: 25.50000000

ETH: 382.50000000

-$10K (2025/10/18)
85 天
4 贝兹
3 浴室
2,681 平方英尺
Est. 预计销售范围: $0 - $0
$0

总览

Did you think you missed your opportunity for this beautiful home? Well it is now BACK ON MARKET AT NO FAULT OF THE SELLER. Welcome to 2580 Lancaster Ridge Drive, an exceptional ABD-built courtyard residence that exudes luxury living. This one-of-a-kind single-story home with a three-car garage and an attic elevator offers a perfect balance of elegance, functionality, and resort-style comfort. Step inside to discover an open-concept floor plan, bathed in natural light from oversized windows and sliding glass doors. The central courtyard is the heart of the home, showcasing a sparkling heated pool and spa, enhanced with LED lighting, fountains, and a screened enclosure for year-round enjoyment. The entire home is designed for both relaxation and entertaining. The courtyard oasis features a top-of-the-line summer kitchen, and the back patio includes a remote-control retractable lanai screen, offering serene water and nature views that provide the ultimate in privacy. Inside, every detail reflects sophisticated upgrades and timeless design. Highlights include a marble tile fireplace, plantation shutters throughout the home, custom closets, and a spa-inspired primary suite with a stand-alone soaking tub. The gourmet kitchen boasts high-end appliances and high-end finishes. Formal living and dining rooms create refined spaces for entertaining, while a private annex provides flexible living quarters ideal for guests, multigenerational needs or a private gym. Unique features of this home include floorings and spray foam insulation in the attic, which creates ideal extra storage easily accessible by an attic versa-lift elevator! The fireplace, spa, and Paradise Grill outdoor kitchen are fueled by propane gas. Additional enhancements include solar heating for the pool, and a dark aluminum fence across the back yard. Select outdoor furnishings are also negotiable. Set within Providence, one of Central Florida’s premier guard-gated golf communities, residents enjoy world-class amenities, lush surroundings, and the added peace of mind in a 24-hour guard-gated community. This home is ready to deliver the Florida lifestyle you’ve been dreaming of. Schedule your private tour today and experience why 2580 Lancaster Ridge Drive stands above the rest.

位置

佛罗里达 DAVENPORT 33837 房屋 待售

详情与特色

类型:
Residential
停车:
Driveway / Garage Door Opener / Ground Level / Oversized
建造年份:
2018
地段:
0.21 英亩
暖气:
Central
价格/平方英尺:
$285
冷气:
Central Air
HOA:
$430
更多事实和特点
  • 地板

    • Carpet

    • Tile

    暖气

    • Central

    冷气

    • Central Air

    设备

    • Built-In Oven

    • Convection Oven

    • Cooktop

    • Dishwasher

    • Disposal

    • Dryer

    • Exhaust Fan

    • Freezer

    • Ice Maker

    • Microwave

    • Range

    • Range Hood

    • Refrigerator

    • Washer

    其他室内特点

    • Ceiling Fan(s)

    • Coffered Ceiling(s)

    • Crown Molding

    • Eating Space In Kitchen

    • Elevator

    • High Ceilings

    • Kitchen/Family Room Combo

    • Open Floorplan

    • Primary Bedroom Main Floor

    • Stone Counters

    • Tray Ceiling(s)

    • Walk-In Closet(s)

    卧室和浴室

    • 卧室: 4

    • 洗手间: 1

    • 完整的浴室: 3

  • 停车

    • Driveway

    • Garage Door Opener

    • Ground Level

    • Oversized

    房屋

    • 等级: One

    • 私人泳池: 是

    • 外观特征: Outdoor Kitchen / Private Mailbox / Rain Gutters / Shade Shutter(s) / Sidewalk / Sliding Doors / Irrigation System

    地段

    • 地段: 0.21 英亩

    其他财产信息

    • 包裹编号: 282618932901020750

    • 分区: RES

  • 类型与风格

    • 财产种类: Residential

    • 属性子类型: Single Family Residence

  • 公益

    • BB/HS Internet Available

    • Cable Available

    • Electricity Connected

    • Phone Available

    • Propane

    • Sewer Connected

    • Solar

    • Sprinkler Meter

    • Street Lights

    • Underground Utilities

    • Water Connected

    绿色能源

    • Insulation

  • 其他财政信息

    • HOA: $430

    • HOA频率: Quarterly

    • 年税额: $7,128

  • 来源细节

    • MLS ID: O6343388

    其他详情

    • 建筑材料: Stucco / Block

    • 基金会详情: Slab

    • 壁炉功能: Gas / Living Room

    • 洗衣功能: Inside / Laundry Room

    • 地段特征: Sidewalk

    • 天井和门廊特色: Covered / Screened / Enclosed / Front Porch / Rear Porch

    • 泳池特色: Heated / In Ground / Lighting / Screen Enclosure / Solar Heat

    • 窗户功能: Shutters

    • 方向面: South

    • 其他结构: Guest House / Outdoor Kitchen

    • 建筑风格: Florida

    • 壁炉: 是

    • 车库空间: 3

    • 附属车库: 是

    • 车库: 是

    • 生活区域: 2681

    • 水源: Public

    • 细分名称: GREENS AT PROVIDENCE

类似房屋

2592 HERITAGE GREEN AVENUE placeholder 2592 HERITAGE GREEN AVENUE
待售
房屋
$649,900
4 贝兹 3 浴室 2,293 平方英尺
2592 HERITAGE GREEN AVENUE
193 HAMPTON LOOP placeholder 193 HAMPTON LOOP
2 天
待售
房屋
$865,000
4 贝兹 3 浴室 2,714 平方英尺
193 HAMPTON LOOP
4076 EASTMINSTER ROAD placeholder 4076 EASTMINSTER ROAD
2 天
待售
房屋
$572,990
4 贝兹 3 浴室 2,650 平方英尺
4076 EASTMINSTER ROAD
1204 LEXINGTON AVENUE placeholder 1204 LEXINGTON AVENUE
3 天
待售
房屋
$585,000
4 贝兹 3 浴室 3,096 平方英尺
1204 LEXINGTON AVENUE
211 SHADY OAK LOOP placeholder 211 SHADY OAK LOOP
16 天
待售
房屋
$549,000
5 贝兹 4 浴室 2,634 平方英尺
211 SHADY OAK LOOP
2942 CAMDEN WAY placeholder 2942 CAMDEN WAY
17 天
待售
房屋
$700,000
5 贝兹 3 浴室 3,385 平方英尺
2942 CAMDEN WAY
1608 NINA DRIVE placeholder 1608 NINA DRIVE
20 天
待售
房屋
$625,000
4 贝兹 3 浴室 2,380 平方英尺
1608 NINA DRIVE
424 BRUNSWICK DRIVE placeholder 424 BRUNSWICK DRIVE
-$450 (2025/12/04)
待售
房屋
$569,550
4 贝兹 3 浴室 2,546 平方英尺
424 BRUNSWICK DRIVE

The multiple listing information is provided by the Stellar MLS from a copyrighted compilation of listings. The compilation of listings and each individual listing are ©2025-present Stellar MLS. All Rights Reserved. The information provided is for consumers' personal, noncommercial use and may not be used for any purpose other than to identify prospective properties consumers may be interested in purchasing. All properties are subject to prior sale or withdrawal. All information provided is deemed reliable but is not guaranteed accurate, and should be independently verified. Listing courtesy of: WATSON REALTY CORP.