特性
探索我们的清单
聯繫
告诉我们您的需求

260 COUNTRY CIRCLE DRIVE W

房屋 合同活跃
$700,000

BTC: 23.33333333

ETH: 350.00000000

-$50K (2025/10/14)
206 天
滨水区
3 贝兹
2 浴室
2,270 平方英尺
Est. 预计销售范围: $0 - $0
$0

总览

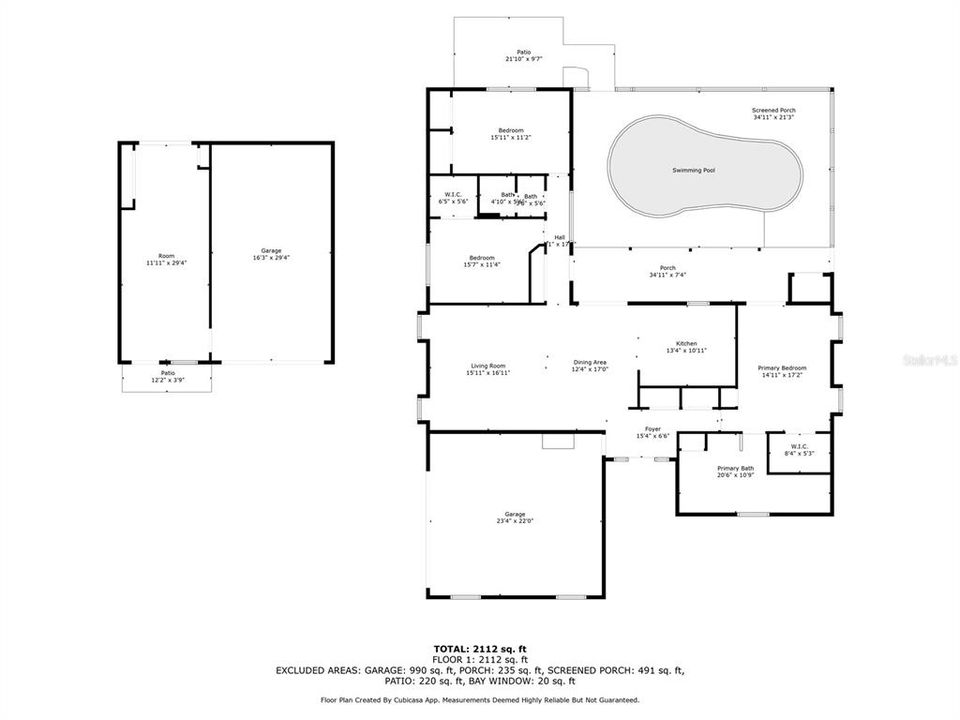
Under contract-accepting backup offers. A Quiet Place in the Country is offering a waterfront home that will satisfy a long list of wishes! The main residence offers 3 bedrooms and 2 baths in a split floor plan, a remodeled kitchen and vinyl plank flooring throughout. The kitchen includes newer stainless appliances, 42” upper cabinets, granite counters and the soft close feature for the cabinetry. The living area has vaulted ceilings and access to the covered patio overlooking the screen enclosed play pool. The primary retreat includes a large walk-in shower and a large garden tub, a walk-in closet and direct access to the patio and pool. There are 4 skylights that flood the living areas with light. The primary bathroom is handicapped accessible; the shower is 5' x 5'. The additional structure offers 320 square feet of versatile space with air conditioning and an additional garage with 464 (16 x 29) square feet for a workshop, boat storage, classic cars. Recent improvements include a new kitchen, vinyl plank flooring throughout, HVAC (2020) in the main house, HVAC 2023 in the studio, New Metal Roof in 2021 and a Custom Marching Chicken Coop. This property has not experienced any flooding.

位置

详情与特色

类型:
Residential
停车:
没有数据
建造年份:
1993
地段:
1.15 英亩
暖气:
Central
价格/平方英尺:
$308
冷气:
Central Air
HOA:
没有数据
更多事实和特点
  • 地板

    • Tile

    • Vinyl

    暖气

    • Central

    冷气

    • Central Air

    设备

    • Dishwasher

    • Disposal

    • Electric Water Heater

    • Microwave

    • Refrigerator

    • Water Softener

    其他室内特点

    • Cathedral Ceiling(s)

    • Ceiling Fan(s)

    • Living Room/Dining Room Combo

    • Open Floorplan

    • Skylight(s)

    • Split Bedroom

    • Stone Counters

    • Vaulted Ceiling(s)

    • Walk-In Closet(s)

    • Window Treatments

    卧室和浴室

    • 卧室: 3

    • 完整的浴室: 2

  • 房屋

    • 等级: One

    • 私人泳池: 是

    • 外观特征: Irrigation System / Private Mailbox / Rain Gutters

    地段

    • 地段: 1.15 英亩

    其他财产信息

    • 包裹编号: 623503001190

    • 分区: 01RR

  • 类型与风格

    • 财产种类: Residential

    • 属性子类型: Single Family Residence

  • 公益

    • Electricity Connected

  • 其他财政信息

    • 年税额: $8,527

  • 来源细节

    • MLS ID: OM700861

    其他详情

    • 建筑材料: HardiPlank Type / Wood Frame

    • 基金会详情: Slab

    • 洗衣功能: In Garage

    • 泳池特色: In Ground

    • 窗户功能: Window Treatments

    • 方向面: South

    • 其他结构: Other / Workshop

    • 滨水区: 是

    • 车库空间: 3

    • 附属车库: 是

    • 车库: 是

    • 生活区域: 2270

    • 水源: Well

    • 细分名称: QUIET PLACE IN COUNTRY UNIT 06

类似房屋

3375 BELLINO BLVD. placeholder 3375 BELLINO BLVD.
4 天
合同活跃
房屋
$499,999
3 贝兹 2 浴室 1,968 平方英尺
3375 BELLINO BLVD.
592 MOON SHELL CIRCLE placeholder 592 MOON SHELL CIRCLE
12 天
合同活跃
房屋
$497,474
3 贝兹 2 浴室 2,055 平方英尺
592 MOON SHELL CIRCLE
585 MOON SHELL CIRCLE placeholder 585 MOON SHELL CIRCLE
29 天
合同活跃
房屋
$496,034
3 贝兹 2 浴室 2,055 平方英尺
585 MOON SHELL CIRCLE
2916 CYPRESS RIDGE TRAIL placeholder 2916 CYPRESS RIDGE TRAIL
34 天
合同活跃
房屋
$629,900
4 贝兹 3 浴室 2,350 平方英尺
2916 CYPRESS RIDGE TRAIL
596 MOON SHELL CIRCLE placeholder 596 MOON SHELL CIRCLE
38 天
合同活跃
房屋
$568,109
4 贝兹 3 浴室 2,600 平方英尺
596 MOON SHELL CIRCLE
1908 CREEKWATER BOULEVARD placeholder 1908 CREEKWATER BOULEVARD
-$24K (2025/10/12)
合同活跃
房屋
$624,900
5 贝兹 3 浴室 2,805 平方英尺
1908 CREEKWATER BOULEVARD
6083 SABAL HAMMOCK CIRCLE placeholder 6083 SABAL HAMMOCK CIRCLE
-$83K (2025/10/05)
合同活跃
房屋
$615,000
4 贝兹 3 浴室 2,820 平方英尺
6083 SABAL HAMMOCK CIRCLE
495 VENETIAN VILLA DRIVE placeholder 495 VENETIAN VILLA DRIVE
-$158K (2025/11/16)
合同活跃
房屋
$600,000
5 贝兹 3 浴室 2,909 平方英尺
495 VENETIAN VILLA DRIVE

The multiple listing information is provided by the Stellar MLS from a copyrighted compilation of listings. The compilation of listings and each individual listing are ©2025-present Stellar MLS. All Rights Reserved. The information provided is for consumers' personal, noncommercial use and may not be used for any purpose other than to identify prospective properties consumers may be interested in purchasing. All properties are subject to prior sale or withdrawal. All information provided is deemed reliable but is not guaranteed accurate, and should be independently verified. Listing courtesy of: FLORIDA REAL ESTATE LIFESTYLES