特性
探索我们的清单
聯繫
告诉我们您的需求

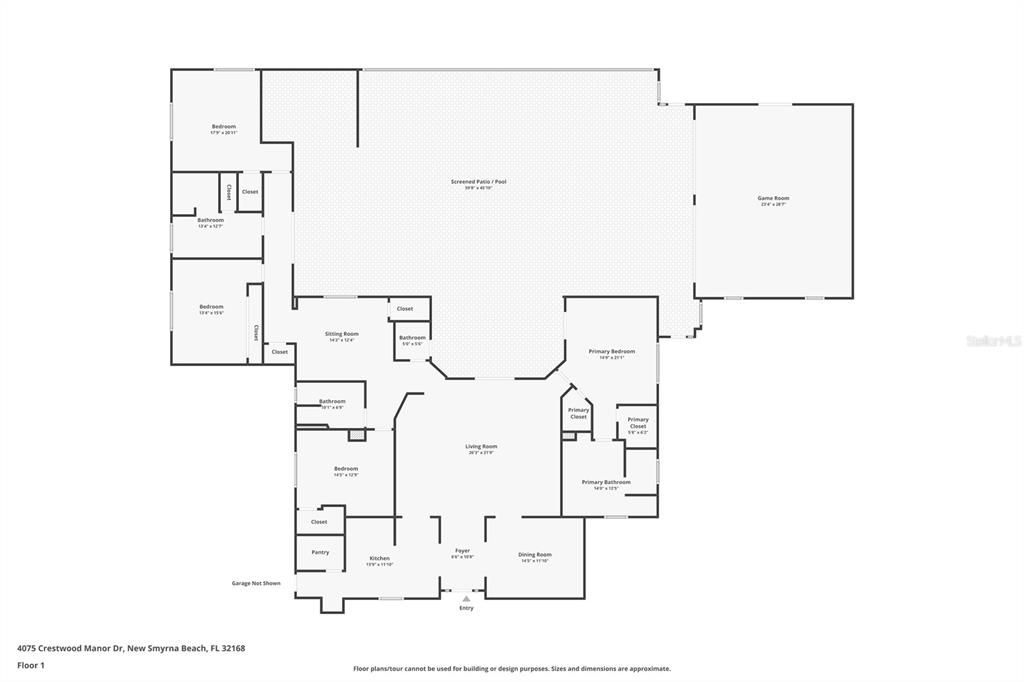
4075 CRESTWOOD MANOR DRIVE

房屋 待售
$1,500,000

BTC: 50.00000000

ETH: 750.00000000

51 天
4 贝兹
3 浴室
4,128 平方英尺
Est. 预计销售范围: $0 - $0
$0

总览

Private Resort Estate with NO HOA, minutes to beaches, tucked within 2 agriculturally zoned acres (option for purchase of 3.75 additional connected acres) of wooded tranquility in New Smyrna Beach. Blending elegance, functionality, and Florida luxury, this custom-built residence offers an unmatched lifestyle for those who value privacy, craftsmanship, and space. Car enthusiasts and hobbyists will appreciate the 4 car attached garage and the 48x48 concrete 4-bay RV/Boat Garage, complete with four 14-foot tall doors, 50amp hookup, and workshop space. Main home features 10-foot tall tray ceilings leading into an expansive open-concept split floor plan with 9-foot tall ceilings and tile throughout. Every detail has been thoughtfully designed, from the natural light that fills the living area to the seamless flow between indoor and outdoor spaces, creating the perfect atmosphere for entertaining. The kitchen features a double stainless-steel oven, induction cooktop, pot filler, and is framed by crisp wood cabinetry. A hybrid water heater and 2 brand-new A/C units (2024) ensure modern efficiency and comfort. Retreat to the primary suite, a spa-inspired sanctuary with a soaking tub, walk-in shower, and double walk in closets. The home’s large addition includes two extra bedrooms and another full bathroom featuring a soaking tub, walk-in shower, and marble-topped double vanity, offering versatile living for guests, multigenerational family, or a home office wing. Entertain effortlessly in the resort-style heated (heat pump) saltwater pool surrounded by travertine decking and a screened enclosure. Designed for both relaxation and visual appeal, the pool features spa (propane heated) with waterfall, color-changing lighting, a bubbler, and multiple fountains that create a tranquil ambiance each evening. The outdoor summer kitchen with granite countertops and an eat in bar elevates gatherings with a built-in Blaze grill, vent hood, refrigerator, sink, ice maker, and egg smoker, all gas-piped for convenience. Beyond the pool, the property unfolds into a private outdoor oasis. A wood deck leads to a pavilion-style gazebo and fire pit that sit atop an expansive paver patio stretching across the back of the home, connecting seamlessly from the screened pool and outdoor kitchen to the detached garage. Together, these spaces form a cohesive environment for entertaining, relaxing, and enjoying Florida’s year-round outdoor lifestyle. A turf-covered playground, mature landscaping, and a side fenced dog run complete the resort-like grounds. The structure was engineered with concrete walls for durability and versatility. Upgrades include a separate game room with its own A/C off the pool deck, well water with a premium filtration system, two septic systems, a covered carport, and private road access ensuring seclusion. The home also features automated pool equipment, a 2019 Roof, hurricane rated windows and an OPTION TO PURCHASE ADDITIONAL 3.75 ACRES for those seeking an even larger estate or building multiple homes (which one parcel is partially prepped for). With meticulous maintenance, luxurious upgrades, and every amenity designed for comfort and entertainment, this residence redefines modern country elegance-offering the serenity of private acreage just minutes from the coast, shopping, and dining in New Smyrna Beach. This property is located in X flood zone (no flood zone) has never flooded. Furnishings are staged.

位置

详情与特色

类型:
Residential
停车:
Boat / Circular Driveway / Guest / Oversized / Parking Pad / RV Garage / RV Parking
建造年份:
2006
地段:
5.65 英亩
暖气:
Central / Electric
价格/平方英尺:
$363
冷气:
Central Air
HOA:
没有数据
更多事实和特点
  • 地板

    • Ceramic Tile

    • Tile

    • Travertine

    暖气

    • Central

    • Electric

    冷气

    • Central Air

    设备

    • Convection Oven

    • Dishwasher

    • Microwave

    • Range

    • Refrigerator

    其他室内特点

    • Ceiling Fan(s)

    • High Ceilings

    • Open Floorplan

    • Other

    • Split Bedroom

    • Tray Ceiling(s)

    • Vaulted Ceiling(s)

    • Walk-In Closet(s)

    卧室和浴室

    • 卧室: 4

    • 洗手间: 1

    • 完整的浴室: 3

  • 停车

    • Boat

    • Circular Driveway

    • Guest

    • Oversized

    • Parking Pad

    • RV Garage

    • RV Parking

    房屋

    • 等级: One

    • 私人泳池: 是

    • 外观特征: Dog Run / Irrigation System / Sliding Doors / Storage

    地段

    • 地段: 5.65 英亩

    其他财产信息

    • 包裹编号: 722603000590

    • 分区: A-3

  • 类型与风格

    • 财产种类: Residential

    • 属性子类型: Single Family Residence

  • 公益

    • Electricity Available

    • Natural Gas Available

  • 其他财政信息

    • 年税额: $12,916

  • 来源细节

    • MLS ID: NS1086030

    其他详情

    • 建筑材料: Concrete / Other / Stucco

    • 基金会详情: Slab

    • 洗衣功能: Inside

    • 天井和门廊特色: Deck / Front Porch / Rear Porch / Screened

    • 泳池特色: In Ground / Lighting / Salt Water / Screen Enclosure

    • 窗户功能: Storm Window(s)

    • 方向面: South

    • 建筑风格: Traditional

    • 车库空间: 4

    • 附属车库: 是

    • 车库: 是

    • 生活区域: 4128

    • 水源: Well

    • 地块大小: 299 x 271

    • 细分名称: CRESTWOOD MANOR

类似房屋

460 SPRING FOREST DRIVE placeholder 460 SPRING FOREST DRIVE
23 天
待售
房屋
$1,300,000
4 贝兹 2 浴室 2,108 平方英尺
460 SPRING FOREST DRIVE
123 N CUCUMBER LANE placeholder 123 N CUCUMBER LANE
488 天
待售
地段/土地
$1,250,000
0 room(s)
123 N CUCUMBER LANE

The multiple listing information is provided by the Stellar MLS from a copyrighted compilation of listings. The compilation of listings and each individual listing are ©2025-present Stellar MLS. All Rights Reserved. The information provided is for consumers' personal, noncommercial use and may not be used for any purpose other than to identify prospective properties consumers may be interested in purchasing. All properties are subject to prior sale or withdrawal. All information provided is deemed reliable but is not guaranteed accurate, and should be independently verified. Listing courtesy of: LOCAL LIVING REALTY GROUP