特性
探索我们的清单
聯繫
告诉我们您的需求

6307 114TH AVENUE E

房屋 待售
$675,000

BTC: 7.81702374

ETH: 230.69036227

63 天
5 贝兹
4 浴室
3,273 平方英尺
Est. 预计销售范围: $0 - $0
$0

总览

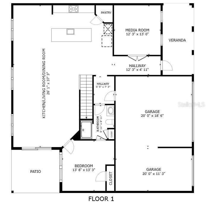
Welcome to this beautifully appointed 5-bedroom, 4-bath Ryan Home, built in 2022 and offering over 3,200 sq. ft. of thoughtfully designed living space. Set within the quiet Parrish neighborhood of Willow Bend and features no CDD fees and a low $100/month HOA, this home perfectly blends style, function, and comfort. The open-concept main level centers around a spacious chef’s kitchen featuring an oversized island, quartz countertops, and abundant cabinetry — ideal for cooking, entertaining, and everyday life. The kitchen opens to the dining and living areas, creating a bright, inviting flow for gatherings of any size. Downstairs, you’ll find a private en-suite bedroom for guests or multigenerational living, along with a dedicated home theater room complete with rumble seats, fiber optic ceiling, surround sound, and soundproof walls — a true in-home entertainment experience. Upstairs, a large loft/family room offers a flexible second living area, while each spacious guest room easily accommodates a bed and desk setup. The primary suite serves as a peaceful retreat with ample space and comfort. Duel closets and a spacious en-suite bathroom ensure the primary bedroom is fit for a royalty. Outside, enjoy an extended brick paver sidewalk and patio that wraps from the front of the home around to the back, creating exceptional outdoor living and entertaining space. The three-car garage adds convenience and storage, while the community pool across the street offers the perfect place to relax on sunny Florida days, without the expense or hassle of owning your own pool! Located in a smaller, friendly neighborhood close to new schools, shopping, and dining, this nearly new home delivers the best of Parrish living — modern design, flexible space, and low-maintenance luxury.

位置

佛罗里达 PARRISH 34219 房屋 待售

详情与特色

类型:
Residential
停车:
没有数据
建造年份:
2022
地段:
0.22 英亩
暖气:
Electric
价格/平方英尺:
$206
冷气:
Central Air
HOA:
$100
更多事实和特点
  • 地板

    • Carpet

    • Ceramic Tile

    暖气

    • Electric

    冷气

    • Central Air

    设备

    • Dishwasher

    • Disposal

    • Dryer

    • Microwave

    • Range

    • Refrigerator

    • Washer

    其他室内特点

    • Ceiling Fan(s)

    • Eating Space In Kitchen

    • Kitchen/Family Room Combo

    • Open Floorplan

    • PrimaryBedroom Upstairs

    • Walk-In Closet(s)

    卧室和浴室

    • 卧室: 5

    • 完整的浴室: 4

  • 房屋

    • 等级: Two

    • 外观特征: Hurricane Shutters / Irrigation System / Sidewalk / Sliding Doors

    地段

    • 地段: 0.22 英亩

    其他财产信息

    • 包裹编号: 467520109

    • 分区: 0100

  • 类型与风格

    • 财产种类: Residential

    • 属性子类型: Single Family Residence

  • 公益

    • Public

  • 其他财政信息

    • HOA: $100

    • HOA频率: Monthly

    • 年税额: $5,534

  • 来源细节

    • MLS ID: TB8440250

    其他详情

    • 建筑材料: Block / Stucco

    • 基金会详情: Slab

    • 洗衣功能: Inside / Laundry Room / Upper Level

    • 天井和门廊特色: Covered

    • 窗户功能: Blinds

    • 方向面: East

    • 建筑风格: Traditional

    • 车库空间: 3

    • 附属车库: 是

    • 车库: 是

    • 生活区域: 3273

    • 水源: Public

    • 细分名称: WILLOW BEND PH III

类似房屋

10644 RABBIT GROVE TRAIL placeholder 10644 RABBIT GROVE TRAIL
2 天
待售
房屋
$599,990
5 贝兹 4 浴室 3,975 平方英尺
10644 RABBIT GROVE TRAIL
10405 WOODLAND GARDEN WAY placeholder 10405 WOODLAND GARDEN WAY
2 天
待售
房屋
$504,990
4 贝兹 3 浴室 2,537 平方英尺
10405 WOODLAND GARDEN WAY
9041 SUNDANCE TERRACE placeholder 9041 SUNDANCE TERRACE
3 天
待售
房屋
$568,947
4 贝兹 3 浴室 2,806 平方英尺
9041 SUNDANCE TERRACE
2803 130TH AVENUE E placeholder 2803 130TH AVENUE E
4 天
待售
房屋
$579,000
3 贝兹 3 浴室 3,033 平方英尺
2803 130TH AVENUE E
10321 SPRUCE RIVER WAY placeholder 10321 SPRUCE RIVER WAY
5 天
待售
房屋
$486,360
3 贝兹 3 浴室 2,260 平方英尺
10321 SPRUCE RIVER WAY
3417 BOX TURTLE TERRACE placeholder 3417 BOX TURTLE TERRACE
5 天
待售
房屋
$499,900
3 贝兹 2 浴室 2,031 平方英尺
3417 BOX TURTLE TERRACE
9026 SUNDANCE TERRACE placeholder 9026 SUNDANCE TERRACE
8 天
待售
房屋
$596,661
4 贝兹 3 浴室 3,057 平方英尺
9026 SUNDANCE TERRACE
9262 AURELIA AVENUE placeholder 9262 AURELIA AVENUE
8 天
待售
房屋
$524,166
5 贝兹 3 浴室 2,828 平方英尺
9262 AURELIA AVENUE

The multiple listing information is provided by the Stellar MLS from a copyrighted compilation of listings. The compilation of listings and each individual listing are ©2025-present Stellar MLS. All Rights Reserved. The information provided is for consumers' personal, noncommercial use and may not be used for any purpose other than to identify prospective properties consumers may be interested in purchasing. All properties are subject to prior sale or withdrawal. All information provided is deemed reliable but is not guaranteed accurate, and should be independently verified. Listing courtesy of: EXP REALTY LLC