特性
探索我们的清单
聯繫
告诉我们您的需求

803 ALLISON PLACE

房屋 合同活跃
$405,000

BTC: 4.66321244

ETH: 202.50000000

-$6K (2025/09/29)
215 天
4 贝兹
3 浴室
1,895 平方英尺
Est. 预计销售范围: $0 - $0
$0

总览

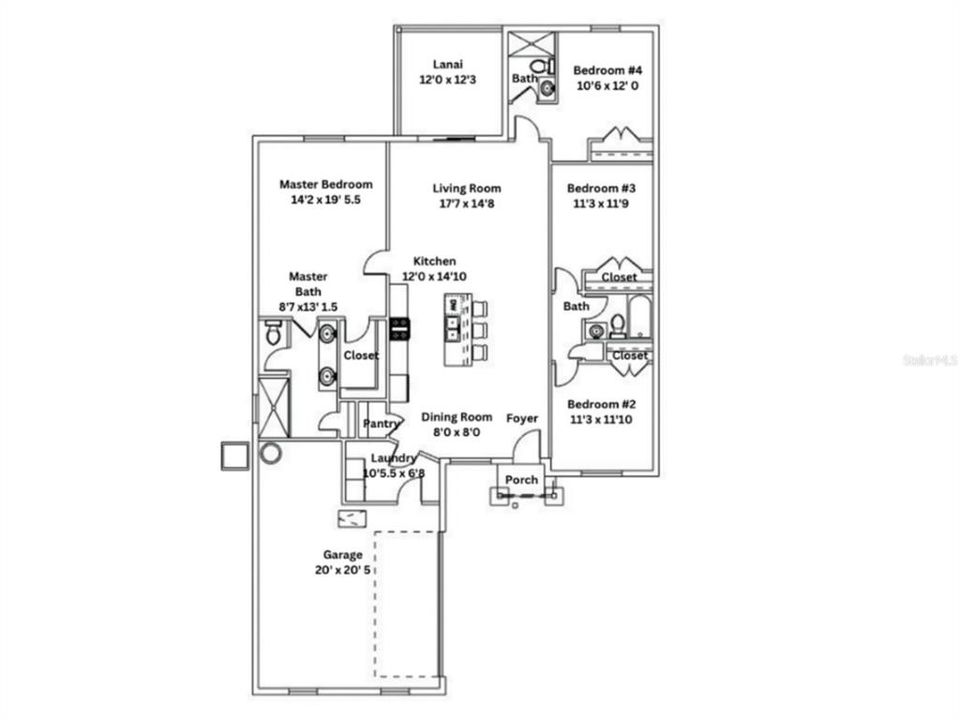
Under contract-accepting backup offers. Under Construction. Construction JUST COMPLETED! Check out this beautiful Brand-New home FOR SALE! Your new home awaits you! Check out this beautiful Brand New 2025 Home FOR SALE! Located within a private and quiet gated lake community! Construction is estimated to be completed within 2 months! This quality custom home has 4 bedrooms with 3 full bathrooms. Everything is being built with special attention to detail and features many upgrades throughout including stone exterior accents, quartz countertops, upgraded trim, custom woodwork, and much more. The  open floor plan is an amazing great room concept with tall ceilings that seamlessly blend the kitchen, living, and dining areas perfect for entertaining family and friends. The modern kitchen is the heart of the home and truly a chef's delight, complete with gorgeous cabinets, granite counters, tile backsplash, stainless appliances, island with bar seating, and a closet pantry with ample storage. You are going to LOVE the walk-in closet pantry! The luxurious master bedroom suite bath is another highlight of this incredible home. You will love the many windows, walk-in closet, and a private ensuite bathroom. The gorgeous master bathroom will have stunning tile, double vanities, a modern shower, and a linen closet. The split bedroom plan has three bedrooms and 2 more bathrooms across the house. The outdoor living here is fantastic! Enjoy sitting in the shade from your covered back porch. This home is NOT in a flood, zone x, so NO FLOOD insurance required. The location is great! Dining and shopping are just minutes away in charming Downtown Bartow. You will also appreciate the convenience between Tampa and Orlando. It is only 50 miles to Walt Disney World, 65 miles to Orlando airport, 48 miles to Tampa airport, and less than an hour and half to several Florida beaches. So many outstanding features about this lovely home! This home is JUST what you have been looking for! Why buy a resale home, when can have a beautiful brand new home with a warranty at a great price! Call today for more details and to set up your private showing. *** USE BUILDER'S PREFERRED LENDER AND GET CLOSING COSTS ASSISTANCE / RATE BUY DOWN, Must Call Jamie Brown, Compass Mortgage***

位置

佛罗里达 BARTOW 33830 房屋 合同活跃

详情与特色

类型:
Residential
停车:
Garage Faces Side
建造年份:
2025
地段:
0.22 英亩
暖气:
Central
价格/平方英尺:
$214
冷气:
Central Air
HOA:
$850
更多事实和特点
  • 地板

    • Carpet

    • Luxury Vinyl

    暖气

    • Central

    冷气

    • Central Air

    设备

    • Dishwasher

    • Disposal

    • Electric Water Heater

    • Microwave

    • Range

    • Refrigerator

    其他室内特点

    • Ceiling Fan(s)

    • Solid Surface Counters

    • Split Bedroom

    卧室和浴室

    • 卧室: 4

    • 完整的浴室: 3

  • 停车

    • Garage Faces Side

    房屋

    • 等级: One

    • 外观特征: Lighting

    地段

    • 地段: 0.22 英亩

    其他财产信息

    • 包裹编号: 253006394095000090

    • 分区: RES

  • 类型与风格

    • 财产种类: Residential

    • 属性子类型: Single Family Residence

  • 公益

    • Cable Available

    • Electricity Connected

    • Sewer Connected

    • Underground Utilities

  • 其他财政信息

    • HOA: $850

    • HOA频率: Annually

    • 年税额: $829

  • 来源细节

    • MLS ID: L4952109

    其他详情

    • 建筑材料: Block / Stucco

    • 基金会详情: Concrete Perimeter / Slab

    • 洗衣功能: Laundry Room

    • 天井和门廊特色: Covered

    • 方向面: Northwest

    • 车库空间: 2

    • 附属车库: 是

    • 车库: 是

    • 生活区域: 1895

    • 水源: Public

    • 细分名称: SQUARE LAKE PHASE FOUR

类似房屋

3927 NATURE SOUND LANE placeholder 3927 NATURE SOUND LANE
3 天
合同活跃
房屋
$522,240
5 贝兹 4 浴室 3,805 平方英尺
3927 NATURE SOUND LANE
1630 TAYLOR LANDING DRIVE placeholder 1630 TAYLOR LANDING DRIVE
-$10K (2025/12/01)
合同活跃
房屋
$419,000
4 贝兹 2 浴室 2,348 平方英尺
1630 TAYLOR LANDING DRIVE
3923 NATURE SOUND LANE placeholder 3923 NATURE SOUND LANE
28 天
合同活跃
房屋
$470,140
4 贝兹 3 浴室 2,793 平方英尺
3923 NATURE SOUND LANE
1920 SADDLEWOOD COURT placeholder 1920 SADDLEWOOD COURT
29 天
合同活跃
房屋
$360,000
4 贝兹 2 浴室 1,980 平方英尺
1920 SADDLEWOOD COURT
2249 SAGELAND WAY placeholder 2249 SAGELAND WAY
-$4K (2025/11/06)
合同活跃
房屋
$348,000
4 贝兹 2 浴室 2,503 平方英尺
2249 SAGELAND WAY
3708 DIXI TRAIL placeholder 3708 DIXI TRAIL
-$18K (2025/07/29)
合同活跃
房屋
$338,900
4 贝兹 2 浴室 1,946 平方英尺
3708 DIXI TRAIL
2332 CITRUS BLOOM DRIVE placeholder 2332 CITRUS BLOOM DRIVE
+$2K (2025/11/25)
合同活跃
房屋
$450,460
4 贝兹 3 浴室 2,486 平方英尺
2332 CITRUS BLOOM DRIVE
2618 OLIVE LANE placeholder 2618 OLIVE LANE
+$16K (2025/12/03)
合同活跃
房屋
$323,810
4 贝兹 2 浴室 1,607 平方英尺
2618 OLIVE LANE

The multiple listing information is provided by the Stellar MLS from a copyrighted compilation of listings. The compilation of listings and each individual listing are ©2025-present Stellar MLS. All Rights Reserved. The information provided is for consumers' personal, noncommercial use and may not be used for any purpose other than to identify prospective properties consumers may be interested in purchasing. All properties are subject to prior sale or withdrawal. All information provided is deemed reliable but is not guaranteed accurate, and should be independently verified. Listing courtesy of: KELLER WILLIAMS REALTY SMART