特性
探索我们的清单
聯繫
告诉我们您的需求

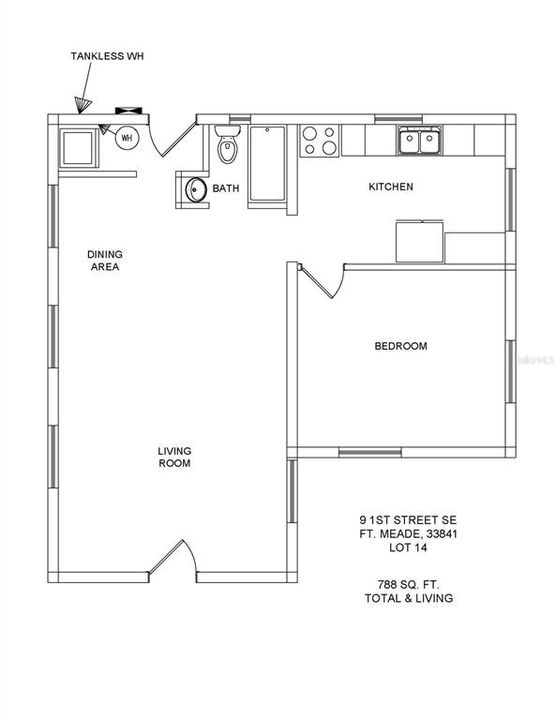
9 1ST STREET SE

房屋 待售
$139,950

BTC: 1.53791209

ETH: 69.97500000

1 天
1 贝兹
1 浴室
788 平方英尺
Est. 预计销售范围: $0 - $0
$0

总览

Discover comfort and convenience in this newly renovated 1-bedroom, 1-bathroom home in the heart of Fort Meade, located just minutes from restaurants, shopping, and other amenities. This move-in-ready property has been thoughtfully updated, featuring newer windows, fresh interior and exterior paint, and new landscaping that enhances its curb appeal. Inside, an open living room welcomes you with all-new luxury vinyl plank flooring. The brand-new kitchen features stainless steel appliances, new countertops, new cabinets, and a pantry. The bedroom offers new plush carpeting, while the fully renovated bathroom features a new vanity and classic subway shower tile. Additional upgrades include a new wall A/C unit, a new electric tankless water heater, updated electrical, and the convenience of an indoor laundry room. This charming home is truly ready for its next owner! USDA FINANCING AVAILABLE FOR ELIGIBLE BUYERS, WITH NO MONEY DOWN. CALL TODAY FOR MORE DETAILS.

位置

佛罗里达 FORT MEADE 33841 房屋 待售

详情与特色

类型:
Residential
停车:
没有数据
建造年份:
1947
地段:
0.11 英亩
暖气:
Wall Units / Window Unit
价格/平方英尺:
$178
冷气:
Wall/Window Unit(s)
HOA:
没有数据
更多事实和特点
  • 地板

    • Carpet

    • Luxury Vinyl

    暖气

    • Wall Units / Window Unit

    冷气

    • Wall/Window Unit(s)

    设备

    • Microwave

    • Range

    • Refrigerator

    其他室内特点

    • Ceiling Fan(s)

    卧室和浴室

    • 卧室: 1

    • 完整的浴室: 1

  • 房屋

    • 等级: One

    • 外观特征: Other

    地段

    • 地段: 0.11 英亩

    其他财产信息

    • 包裹编号: 253127452500000140

    • 分区: C-2

  • 类型与风格

    • 财产种类: Residential

    • 属性子类型: Single Family Residence

  • 公益

    • Public

  • 来源细节

    • MLS ID: L4957831

    其他详情

    • 建筑材料: Block

    • 基金会详情: Slab

    • 洗衣功能: Laundry Room

    • 方向面: South

    • 生活区域: 788

    • 水源: Public

    • 地块大小: 53 x 90

    • 细分名称: NEWSOME & JOHNSON SUB

类似房屋

722 9TH STREET NE placeholder 722 9TH STREET NE
10 天
待售
地段/土地
$109,900
0 room(s)
722 9TH STREET NE
722 N NASHUA AVENUE placeholder 722 N NASHUA AVENUE
-$5K (2025/11/25)
待售
房屋
$130,000
3 贝兹 1 浴室 1,056 平方英尺
722 N NASHUA AVENUE
909 MARION CIRCLE placeholder 909 MARION CIRCLE
-$45K (2025/12/10)
待售
房屋
$174,950
3 贝兹 1 浴室 1,013 平方英尺
909 MARION CIRCLE
800 HICKORY LANE E placeholder 800 HICKORY LANE E
46 天
待售
房屋
$170,000
3 贝兹 2 浴室 820 平方英尺
800 HICKORY LANE E
LOT 10  OLD BOWLING GREEN RD placeholder LOT 10  OLD BOWLING GREEN RD
-$4K (2025/10/23)
待售
地段/土地
$138,000
0 room(s)
LOT 10 OLD BOWLING GREEN RD
4082 OLD BOWLING GREEN RD placeholder 4082 OLD BOWLING GREEN RD
-$4K (2025/10/23)
待售
地段/土地
$125,000
0 room(s)
4082 OLD BOWLING GREEN RD
4106 OLD BOWLING GREEN RD placeholder 4106 OLD BOWLING GREEN RD
-$4K (2025/10/23)
待售
地段/土地
$125,000
0 room(s)
4106 OLD BOWLING GREEN RD
4070 OLD BOWLING GREEN RD placeholder 4070 OLD BOWLING GREEN RD
-$4K (2025/10/23)
待售
地段/土地
$125,000
0 room(s)
4070 OLD BOWLING GREEN RD

The multiple listing information is provided by the Stellar MLS from a copyrighted compilation of listings. The compilation of listings and each individual listing are ©2025-present Stellar MLS. All Rights Reserved. The information provided is for consumers' personal, noncommercial use and may not be used for any purpose other than to identify prospective properties consumers may be interested in purchasing. All properties are subject to prior sale or withdrawal. All information provided is deemed reliable but is not guaranteed accurate, and should be independently verified. Listing courtesy of: PORCHLIGHT HOMES LLC