特性
探索我们的清单
聯繫
告诉我们您的需求

904 CHARLES STREET

房屋 待售
$360,000

BTC: 12.00000000

ETH: 180.00000000

-$15K (2025/10/06)
106 天
5 贝兹
2 浴室
1,608 平方英尺
Est. 预计销售范围: $0 - $0
$0

总览

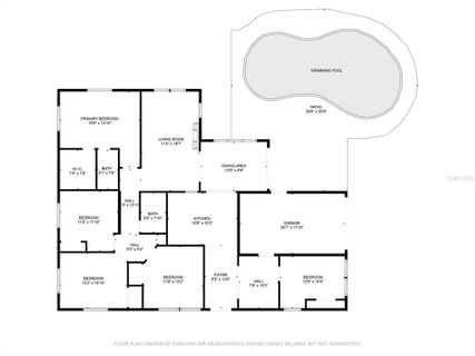
With five true bedrooms, there’s room for everyone—whether you need space for family, guests, a home office, or a hobby room, this home has you covered! Located in one of Port Orange’s most sought-after neighborhoods, this beautifully updated property features an inground pool, new ceramic tile flooring, and a newer kitchen remodel complete with matching stainless steel appliances. There’s even an extra bonus room perfect for a mudroom, craft area, or drop zone! All the big-ticket items have already been taken care of — new roof, AC, water heater, electrical panel, windows, and plumbing — giving you peace of mind for years to come. Plus, this solid home stayed high and dry through recent hurricanes. Enjoy an unbeatable location: walk or bike to Sugar Mill Elementary, Riverwalk Park, or Sugar Mill Gardens, kayak the nearby river, or drive just 2 miles to the beach. Fishing, shopping, and dining are all right around the corner, making this the ultimate Florida lifestyle home. You won’t find another 5-bedroom pool home in Port Orange—especially at this price! Don't miss your chance to own a spacious, move-in-ready home in the heart of it all!

位置

佛罗里达 PORT ORANGE 32129 房屋 待售

详情与特色

类型:
Residential
停车:
没有数据
建造年份:
1968
地段:
0.21 英亩
暖气:
Central
价格/平方英尺:
$224
冷气:
Central Air
HOA:
没有数据
更多事实和特点
  • 地板

    • Ceramic Tile

    暖气

    • Central

    冷气

    • Central Air

    设备

    • Dishwasher

    • Microwave

    • Range

    • Refrigerator

    其他室内特点

    • Ceiling Fan(s)

    卧室和浴室

    • 卧室: 5

    • 完整的浴室: 2

  • 房屋

    • 等级: One

    • 私人泳池: 是

    • 外观特征: Storage

    地段

    • 地段: 0.21 英亩

    其他财产信息

    • 包裹编号: 630402160090

    • 分区: R1

  • 类型与风格

    • 财产种类: Residential

    • 属性子类型: Single Family Residence

  • 公益

    • Electricity Connected

    • Water Connected

  • 其他财政信息

    • 年税额: $3,474

  • 来源细节

    • MLS ID: NS1085640

    其他详情

    • 建筑材料: Block

    • 基金会详情: Slab

    • 洗衣功能: Electric Dryer Hookup / In Garage / Washer Hookup

    • 地段特征: Corner Lot

    • 天井和门廊特色: Front Porch / Patio

    • 泳池特色: In Ground

    • 方向面: North

    • 其他结构: Shed(s)

    • 车库空间: 1

    • 附属车库: 是

    • 车库: 是

    • 生活区域: 1608

    • 水源: Public

    • 细分名称: CONRAD SUB &ANDDEENS ORANGE PARK

类似房屋

3013 S ATLANTIC AVENUE UNIT 803 placeholder 3013 S ATLANTIC AVENUE UNIT 803
1 天
待售
公寓/合作社
$279,000
2 贝兹 2 浴室 1,189 平方英尺
3013 S ATLANTIC AVENUE UNIT 803
3 OCEANS WEST BOULEVARD UNIT 2C3 placeholder 3 OCEANS WEST BOULEVARD UNIT 2C3
1 天
待售
公寓/合作社
$254,900
2 贝兹 2 浴室 1,400 平方英尺
3 OCEANS WEST BOULEVARD UNIT 2C3
1056 COMMONS WAY placeholder 1056 COMMONS WAY
4 天
待售
房屋
$369,210
4 贝兹 2 浴室 1,665 平方英尺
1056 COMMONS WAY
1115 FIFTH STREET placeholder 1115 FIFTH STREET
4 天
待售
房屋
$429,990
5 贝兹 3 浴室 2,601 平方英尺
1115 FIFTH STREET
1005 COMMONS WAY placeholder 1005 COMMONS WAY
4 天
待售
房屋
$370,990
4 贝兹 2 浴室 1,665 平方英尺
1005 COMMONS WAY
929 GEORGE HECKER DRIVE placeholder 929 GEORGE HECKER DRIVE
6 天
待售
房屋
$418,500
3 贝兹 2 浴室 2,022 平方英尺
929 GEORGE HECKER DRIVE
1105 DONNELL DRIVE placeholder 1105 DONNELL DRIVE
8 天
待售
房屋
$399,900
3 贝兹 2 浴室 2,042 平方英尺
1105 DONNELL DRIVE
2752 S ATLANTIC AVENUE placeholder 2752 S ATLANTIC AVENUE
9 天
待售
地段/土地
$399,900
0 room(s)
2752 S ATLANTIC AVENUE

The multiple listing information is provided by the Stellar MLS from a copyrighted compilation of listings. The compilation of listings and each individual listing are ©2025-present Stellar MLS. All Rights Reserved. The information provided is for consumers' personal, noncommercial use and may not be used for any purpose other than to identify prospective properties consumers may be interested in purchasing. All properties are subject to prior sale or withdrawal. All information provided is deemed reliable but is not guaranteed accurate, and should be independently verified. Listing courtesy of: LPT REALTY, LLC