特性
探索我们的清单
聯繫
告诉我们您的需求

911 SAGAMORE STREET

房屋 待售
$649,500

BTC: 7.27780019

ETH: 324.75000000

59 天
3 贝兹
2 浴室
2,574 平方英尺
Est. 预计销售范围: $0 - $0
$0

总览

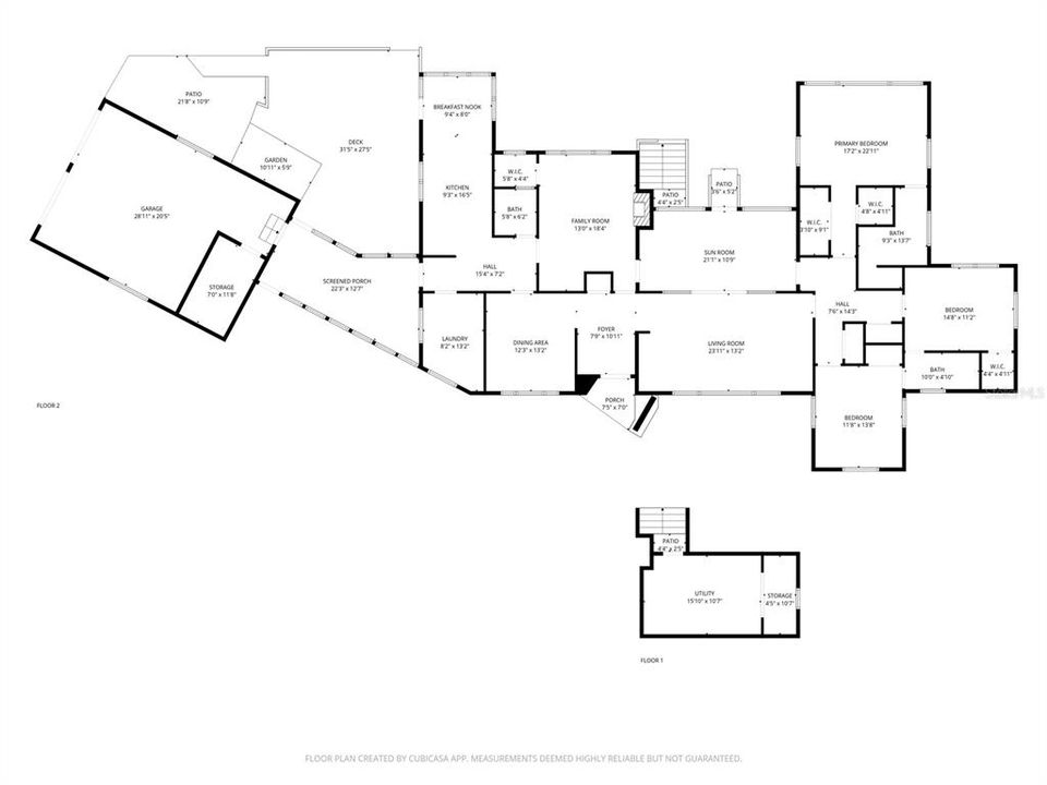
This cherished home is BACK ON MARKET!!! The previous buyer was unable to continue, opening the door for a new opportunity, so their loss is your gain This gem is back on the market. This timeless mid-century beauty is ready for a new owner who appreciates iconic design, clean lines, and quality construction Great home, great location and ready for its next owner. Modern Upgrades, Vintage Character — The Best of Both Worlds! Where Mid-Century Charm Meets Modern Comfort. Impeccably maintained for Over 50 Years. This EXQUISITE Mid-Century Modern Beauty situated on .65 Acres. Discover timeless charm and exceptional care. From the flagstone walkway leading from the street to the front door. Every detail reflects pride in ownership and thoughtful updates over the years. The home is situated on three spacious lots totaling .65 acres. This 3-bedroom, 2.5-bath home sits on a corner lot, with a fully fenced backyard and lot surrounded by mature landscaping and hedges for privacy. Inside, you’ll find beautiful oak hardwood floors in most of the home, pine flooring in the kitchen and half bath. The two bonus rooms, one off the formal living room has flagstone flooring, and the other bonus room off the kitchen has quarry tile. Both rooms are a peaceful space to unwind. The kitchen is a focus point with solid wood cabinetry, granite countertops, a built-in China cabinet, and new Samsung stainless-steel appliances (2019). The sunny breakfast area offers panoramic views of the lush backyard through new windows installed in 2016. California Plantation shutters add elegance to the main bedroom, living room, and dining room (installed between 2005–2007). The formal dining room features a charming chair rail. The family room boasts a wood-burning fireplace, built-in shelving, and a wet bar which creates the perfect space for entertaining family and guests, plus a small office. Recent updates include Roof replaced in 2019, 2 new Air Conditions 2021, Deep irrigation well installed in 2012 (250 ft depth) new windows in living, dining, and main bedroom 2016-2022, The backyard oasis is truly special — featuring a large wooden deck with sunshade sails to protect from UV rays. A serene koi pond featuring waterfall, automatic water refill system and lighting for evening enjoyment. There’s also a custom lattice enclosure with automatic watering, perfect for displaying a staghorn fern or lush plants, with an avocado and mango tree producing delicious fruit. Additional highlights include a spacious laundry room with ample cabinetry, garage with storage room, and a rare reinforced concrete basement (10’ x 20.8’) equipped with shelving on both sides and a sump pump for peace of mind. This extraordinary home blends mid-century design with modern upgrades, creating a warm and welcoming ambiance both inside and out. Come encounter this one-of-a-kind property — where character, quality, and care come together to create your dream home in the heart of Lakeland! All measurements are approximate and must be verified by buyer.

位置

佛罗里达 LAKELAND 33803 房屋 待售

详情与特色

类型:
Residential
停车:
Driveway / Garage Faces Side
建造年份:
1949
地段:
0.65 英亩
暖气:
Central
价格/平方英尺:
$252
冷气:
Central Air
HOA:
没有数据
更多事实和特点
  • 地板

    • Quarry Tile

    • Slate

    • Hardwood

    暖气

    • Central

    冷气

    • Central Air

    设备

    • Cooktop

    • Dishwasher

    • Disposal

    • Dryer

    • Electric Water Heater

    • Exhaust Fan

    • Refrigerator

    • Washer

    其他室内特点

    • Accessibility Features

    • Ceiling Fan(s)

    • Chair Rail

    • Eating Space In Kitchen

    • Pest Guard System

    • Solid Surface Counters

    • Solid Wood Cabinets

    • Walk-In Closet(s)

    • Window Treatments

    卧室和浴室

    • 卧室: 3

    • 洗手间: 1

    • 完整的浴室: 2

  • 停车

    • Driveway

    • Garage Faces Side

    房屋

    • 等级: One

    • 外观特征: Awning(s) / Irrigation System / Lighting / Other / Rain Gutters / Shade Shutter(s)

    地段

    • 地段: 0.65 英亩

    其他财产信息

    • 包裹编号: 242831261490006720

    • 分区: RA-2

  • 类型与风格

    • 财产种类: Residential

    • 属性子类型: Single Family Residence

  • 公益

    • BB/HS Internet Available

    • Cable Available

    • Cable Connected

    • Electricity Available

    • Electricity Connected

    • Phone Available

    • Public

    • Sewer Available

    • Sewer Connected

    • Water Available

    • Water Connected

  • 其他财政信息

    • 年税额: $2,554

  • 来源细节

    • MLS ID: L4956753

    其他详情

    • 建筑材料: Block / Cedar

    • 基金会详情: Basement / Block / Crawlspace

    • 壁炉功能: Family Room

    • 洗衣功能: Electric Dryer Hookup / Inside / Laundry Room / Washer Hookup

    • 窗户功能: Double Pane Windows / Shutters / Window Treatments

    • 方向面: North

    • 壁炉: 是

    • 车库空间: 2

    • 附属车库: 是

    • 车库: 是

    • 生活区域: 2574

    • 水源: Well

    • 细分名称: CLEVELAND HEIGHTS

类似房屋

2873 KINSLEY DRIVE placeholder 2873 KINSLEY DRIVE
3 天
待售
房屋
$590,000
4 贝兹 3 浴室 2,675 平方英尺
2873 KINSLEY DRIVE
3160 OAK PARK DRIVE placeholder 3160 OAK PARK DRIVE
8 天
待售
房屋
$625,000
3 贝兹 2 浴室 1,463 平方英尺
3160 OAK PARK DRIVE
2022 LAKE MIRIAM DRIVE placeholder 2022 LAKE MIRIAM DRIVE
10 天
待售
房屋
$529,900
3 贝兹 2 浴室 2,050 平方英尺
2022 LAKE MIRIAM DRIVE
1944 VISTA VIEW DRIVE placeholder 1944 VISTA VIEW DRIVE
13 天
待售
房屋
$690,900
4 贝兹 3 浴室 2,611 平方英尺
1944 VISTA VIEW DRIVE
1925 JOHN ARTHUR WAY placeholder 1925 JOHN ARTHUR WAY
16 天
待售
房屋
$525,000
4 贝兹 2 浴室 1,968 平方英尺
1925 JOHN ARTHUR WAY
1102 SUGARTREE DRIVE S placeholder 1102 SUGARTREE DRIVE S
21 天
待售
房屋
$599,900
4 贝兹 3 浴室 3,016 平方英尺
1102 SUGARTREE DRIVE S
4965 TRADITION DRIVE placeholder 4965 TRADITION DRIVE
21 天
待售
房屋
$460,000
3 贝兹 2 浴室 2,072 平方英尺
4965 TRADITION DRIVE
5322 LISA AVENUE placeholder 5322 LISA AVENUE
-$10K (2025/12/12)
待售
房屋
$459,000
4 贝兹 2 浴室 2,549 平方英尺
5322 LISA AVENUE

The multiple listing information is provided by the Stellar MLS from a copyrighted compilation of listings. The compilation of listings and each individual listing are ©2025-present Stellar MLS. All Rights Reserved. The information provided is for consumers' personal, noncommercial use and may not be used for any purpose other than to identify prospective properties consumers may be interested in purchasing. All properties are subject to prior sale or withdrawal. All information provided is deemed reliable but is not guaranteed accurate, and should be independently verified. Listing courtesy of: HARPER REALTY FL, LLC