Contact
Tell us about your needs

1230 GULF BOULEVARD UNIT 207

Condo/Co-op For Rent
$5,500

BTC: 0.18333333

ETH: 2.75000000

/mo
14 days
2 bds
2 ba
1,111 sqft
Est. Estimated sales range: $0 - $0
$0

Overview

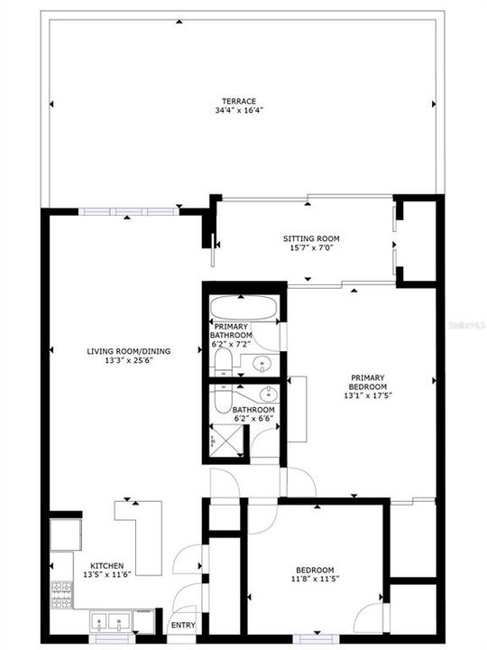
Come escape to this beautifully remodeled and fully furnished 2 bedroom, 2 bathroom Gulf front condo on Sand Key Beach. This 2nd floor condo is set up for easy living, with a dedicated parking spot directly in front of the door, a convenience that few units in the building offer. One of the favorite features of this home is the large beachfront patio that becomes your private outdoor living room, with wide open Gulf views and plenty of room to dine, lounge, and unwind. Between the patio and the interior, a sunroom connects both the living room and the primary suite, with large sliders that open wide to create a flexible space for reading, quiet mornings with coffee, or relaxing evenings watching the sunset. Inside, the condo has a bright, open layout, furnished comfortably and equipped with everything you need for an extended stay. The remodeled kitchen features modern finishes, a large pantry, and plenty of countertop and cabinet space. Both bathrooms are updated and feel clean and fresh. The primary suite feels like a true retreat, with a king bed, recliner, desk, TV, direct access to the patio, and a generous walk in closet. The second bedroom offers a queen bed, another walk in closet, and enough space for guests to settle in comfortably without feeling cramped. Thoughtful storage and closet space throughout the condo make it easy to tuck away luggage, beach gear, and personal items so everything stays organized and out of the way. Landmark Towers offers resort style amenities including 24 hour gated security and private beach access. Community amenities include a heated beachfront pool, whirlpool spa, poolside cabana, tennis and pickleball courts, shuffleboard, and gas barbecue grills. Guests will appreciate ample parking and a full size coin operated washer and dryer conveniently located just down the hall. The building sits directly across from the Shoppes of Sand Key, putting dining, including the Columbia Restaurant, and shopping just steps away. It is easy to explore and enjoy Clearwater Beach and the surrounding shoreline with the Jolly Trolley stopping right in front of the building. Beyond the property, the area offers boating, fishing, parasailing, parks, marine life attractions, and plenty of sightseeing options. Travel is straightforward, with Tampa International Airport approximately 25 miles away and St. Pete Clearwater Airport approximately 14 miles away. Available December through April with a 30 day minimum stay. Rent includes all utilities, cable TV, and high speed internet. Tenant pays the following additional charges. • 13% lodging and tourist tax • $150 cleaning fee • $65 processing fee • $150 HOA application fee • $1,000 refundable security deposit required • No pets and no smoking

Location

Facts and features

Type:
Residential Lease
Parking:
No Data
Year Built:
1980
Lot:
No Data
Heating:
Electric
Price/sqft:
$5
Cooling:
Central Air
HOA:
No Data
All facts and features
  • Heating

    • Electric

    Cooling

    • Central Air

    Appliances

    • Dishwasher

    • Electric Water Heater

    • Microwave

    • Range

    • Refrigerator

    Other interior features

    • Ceiling Fan(s)

    Bedrooms and bathrooms

    • Bedrooms: 2

    • Full bathrooms: 2

  • Property

    • Levels: One

    • Pool Private: Yes

    Other Property Information

    • Parcel Number: 202915498510000207

  • Type and style

    • Property Type: Residential Lease

    • Property Sub Type: Condominium

  • Source details

    • MLS ID: TB8450084

    Other facts

    • Laundry Features: Common Area

    • Pool Features: In Ground

    • Living Area: 1111

    • Subdivision Name: LANDMARK TOWERS

Similar Homes

222 SKIFF POINT placeholder 222 SKIFF POINT
1 days
For Rent
Townhouse
$4,500 /mo
3 bds 3 ba 1,930 sqft
222 SKIFF POINT
610 ISLAND WAY UNIT 608 placeholder 610 ISLAND WAY UNIT 608
10 days
For Rent
Condo/Co-op
$3,850 /mo
2 bds 2 ba 1,270 sqft
610 ISLAND WAY UNIT 608
2513 GULF BOULEVARD placeholder 2513 GULF BOULEVARD
13 days
For Rent
House
$3,995 /mo
3 bds 2 ba 1,930 sqft
2513 GULF BOULEVARD
400 ISLAND WAY UNIT 901 placeholder 400 ISLAND WAY UNIT 901
14 days
For Rent
Condo/Co-op
$4,000 /mo
2 bds 2 ba 1,390 sqft
400 ISLAND WAY UNIT 901
1290 GULF BOULEVARD UNIT 302 placeholder 1290 GULF BOULEVARD UNIT 302
15 days
For Rent
Condo/Co-op
$6,900 /mo
2 bds 2 ba 1,464 sqft
1290 GULF BOULEVARD UNIT 302
1270 GULF BOULEVARD UNIT 701 placeholder 1270 GULF BOULEVARD UNIT 701
-$500 (2025/11/25)
For Rent
Condo/Co-op
$6,000 /mo
2 bds 2 ba 1,094 sqft
1270 GULF BOULEVARD UNIT 701
1270 GULF BOULEVARD UNIT 302 placeholder 1270 GULF BOULEVARD UNIT 302
17 days
For Rent
Condo/Co-op
$4,300 /mo
2 bds 2 ba 1,094 sqft
1270 GULF BOULEVARD UNIT 302
216 PALM ISLAND NW placeholder 216 PALM ISLAND NW
17 days
For Rent
House
$3,900 /mo
2 bds 2 ba 1,608 sqft
216 PALM ISLAND NW

The multiple listing information is provided by the Stellar MLS from a copyrighted compilation of listings. The compilation of listings and each individual listing are ©2025-present Stellar MLS. All Rights Reserved. The information provided is for consumers' personal, noncommercial use and may not be used for any purpose other than to identify prospective properties consumers may be interested in purchasing. All properties are subject to prior sale or withdrawal. All information provided is deemed reliable but is not guaranteed accurate, and should be independently verified. Listing courtesy of: JB REALTY FLORIDA, LLC