Contact
Tell us about your needs

2810 N BEACH ROAD UNIT D205

Condo/Co-op For Sale
$689,900

BTC: 22.99666667

ETH: 344.95000000

13 days
Waterfront
2 bds
2 ba
1,084 sqft
Est. Estimated sales range: $0 - $0
$0

Overview

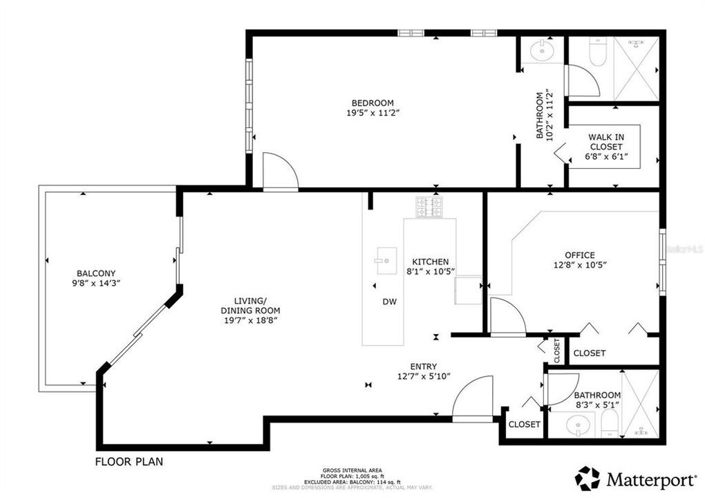
Prepare to be absolutely amazed by this stunning, fully renovated coastal retreat on Manasota Key! This exceptional 2nd-floor end unit at La Coquina Beach Condominiums offers deeded beach access and an unbeatable location on the Gulf. From the moment you step inside, the quality and attention to detail are unmistakable. The owner carefully selected every feature during the renovation, creating a modern coastal masterpiece that is both stylish and functional. Beautiful diagonally laid tile flooring flows throughout the entire home, enhancing the open and airy feel of the space. The brand-new kitchen is a showstopper, featuring quartz countertops, high-end cabinetry with pullout drawers, a deep basin granite composite sink, and all new appliances. A convenient in-unit laundry closet includes a stackable front-load washer and dryer. The open floor plan and split-bedroom layout provide both comfort and privacy, while the spacious living room and screened lanai offer partial Gulf views as well as serene views of the heated community pool. Retreat to the large primary suite with a fully redesigned en-suite bathroom showcasing a new vanity, designer fixtures, a frameless glass shower with decorative tile, and a custom walk-in closet complete with built-in shelves and drawers. The guest bedroom is equally impressive, featuring a built-in desk area plus two twin Murphy beds - perfect for visitors without sacrificing everyday space. Many major systems have been thoughtfully upgraded, including a tankless water heater, all-new HVAC ductwork, updated plumbing, and a completely new electrical panel and wiring. Additional perks include an assigned covered carport, an 11x5 storage room, on-site bike racks, and kayak storage. Pet lovers will appreciate that owners are allowed pets. The building received a new roof in 2023, and the community offers some of the lowest quarterly fees on the island (only $2,000/quarter) with no special assessments. Exterior maintenance is fully covered by the association for added peace of mind. Whether you’re seeking a vacation escape, a full-time residence, or an investment opportunity, this condo delivers luxury, convenience, and coastal charm. Live the island life you’ve always imagined. Sun, sand, and stunning sunsets await!

Location

Facts and features

Type:
Residential
Parking:
Assigned / Covered / Under Building
Year Built:
1980
Lot:
No Data
Heating:
Central / Electric
Price/sqft:
$636
Cooling:
Central Air
HOA:
No Data
All facts and features
  • Flooring

    • Tile

    Heating

    • Central

    • Electric

    Cooling

    • Central Air

    Appliances

    • Dishwasher

    • Dryer

    • Microwave

    • Range

    • Refrigerator

    • Washer

    Other interior features

    • Ceiling Fan(s)

    • Kitchen/Family Room Combo

    • Open Floorplan

    • Split Bedroom

    • Stone Counters

    • Walk-In Closet(s)

    • Window Treatments

    Bedrooms and bathrooms

    • Bedrooms: 2

    • Full bathrooms: 2

  • Parking

    • Assigned

    • Covered

    • Under Building

    Property

    • Levels: One

    • Exterior Features: Lighting / Sliding Doors / Storage

    Other Property Information

    • Parcel Number: 411901703003

    • Zoning: MMF7.5

  • Type and style

    • Property Type: Residential

    • Property Sub Type: Condominium

  • Utility

    • BB/HS Internet Available

    • Electricity Connected

    • Public

    • Sewer Connected

    • Water Connected

  • Other financial information

    • HOA Frequency: Quarterly

    • Annual tax amount: $5,436

  • Source details

    • MLS ID: C7517988

    Other facts

    • Construction Materials: Block / Stucco

    • Foundation Details: Slab

    • Laundry Features: Inside / Laundry Closet

    • Patio And Porch Features: Porch / Screened

    • Direction Faces: South

    • Other Structures: Storage

    • Waterfront: Yes

    • Living Area: 1084

    • Water Source: Public

    • Subdivision Name: LACOQUINA BEACH BLDG D

Similar Homes

2955 N BEACH ROAD UNIT D125 placeholder 2955 N BEACH ROAD UNIT D125
1 days
For Sale
Condo/Co-op
$669,000
2 bds 2 ba 1,185 sqft
2955 N BEACH ROAD UNIT D125
1375 BEACH ROAD UNIT 211 placeholder 1375 BEACH ROAD UNIT 211
1 days
For Sale
Condo/Co-op
$625,000
3 bds 2 ba 1,686 sqft
1375 BEACH ROAD UNIT 211
1081 HUMBOLDT STREET placeholder 1081 HUMBOLDT STREET
2 days
For Sale
House
$599,000
3 bds 2 ba 1,838 sqft
1081 HUMBOLDT STREET
1674 POMPANO AVENUE placeholder 1674 POMPANO AVENUE
3 days
For Sale
House
$599,000
3 bds 2 ba 1,849 sqft
1674 POMPANO AVENUE
2955 N BEACH ROAD UNIT A415 placeholder 2955 N BEACH ROAD UNIT A415
9 days
For Sale
Condo/Co-op
$549,000
2 bds 2 ba 1,237 sqft
2955 N BEACH ROAD UNIT A415
1447 LEMON BAY DRIVE placeholder 1447 LEMON BAY DRIVE
9 days
For Sale
House
$720,000
3 bds 2 ba 1,856 sqft
1447 LEMON BAY DRIVE
1701 PLACIDA AND 1630 MANOR ROAD placeholder 1701 PLACIDA AND 1630 MANOR ROAD
13 days
For Sale
Lots/Land
$499,000
0 room(s)
1701 PLACIDA AND 1630 MANOR ROAD
1781 PLACIDA ROAD placeholder 1781 PLACIDA ROAD
13 days
For Sale
Lots/Land
$499,000
0 room(s)
1781 PLACIDA ROAD

The multiple listing information is provided by the Stellar MLS from a copyrighted compilation of listings. The compilation of listings and each individual listing are ©2025-present Stellar MLS. All Rights Reserved. The information provided is for consumers' personal, noncommercial use and may not be used for any purpose other than to identify prospective properties consumers may be interested in purchasing. All properties are subject to prior sale or withdrawal. All information provided is deemed reliable but is not guaranteed accurate, and should be independently verified. Listing courtesy of: RE/MAX ALLIANCE GROUP