Contact
Tell us about your needs

9915 COUNTY ROAD 44

Commercial For Sale
$1,850,000

BTC: 61.66666667

ETH: 925.00000000

111 days
0 room(s)
Est. Estimated sales range: $0 - $0
$0

Overview

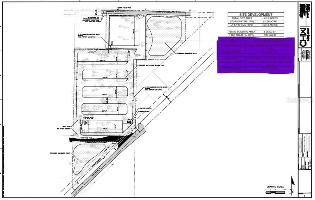
Prime Self-Storage Development Opportunity in Lake County, FL Seize this rare chance to acquire a fully prepared, development-ready parcel in Lake County, Florida, zoned and approved for a state-of-the-art self-storage facility. Comprising four parcels, this property is primed for immediate construction, offering a fast-tracked timeline for investors and developers looking to capitalize on Central Florida’s booming self-storage market. With versatile zoning allowing for multiple uses, this is a unique opportunity in a high-growth region. Property Highlights Development-Ready for Self-Storage: Rezoned to CP (Planned Commercial), with self-storage approved by right, eliminating zoning hurdles. Includes a comprehensive concept plan for a 101,380 sq ft facility (86,175 sq ft net rentable, 95.24 climate-controlled), fully permitted and ready for construction. Completed Due Diligence: Boundary and topographic surveys completed, along with environmental studies, ensuring no delays in development. Strong Financial Projections: Proforma included, projecting a Net Operating Income (NOI) of $994,195. Cap rate valuations: $16.57M (6.0 ), $18.08M (5.5 ), or $19.88M (5.0 ). Gross potential income of $1.58M with a 65.73 cost-to-value ratio at 5.5 cap. Strategic Location: Situated in Lake County, a high-growth area with 4.7 annual population growth, outpacing the national average. Proximity to Orlando, I-75, and the Florida Turnpike ensures excellent accessibility and visibility. Low storage inventory (est. 5.5 sq ft vs. 7–8 sq ft nationally) underscores strong market demand. Versatile Zoning: CP zoning supports self-storage and a variety of other commercial uses, offering flexibility for future development or alternative projects. Business-Friendly Environment: Lake County’s pro-business policies and high-traffic corridors make this an ideal location for a successful self-storage operation. Additional Information Financing Available: Pre-approved financing through Jen Jones Loans LLC; terms and rates vary based on buyer qualifications. Market Advantage: Lake County’s rapid growth and underserved self-storage market create exceptional potential for high returns. This turnkey property offers a unique opportunity to develop a premier self-storage facility in one of Florida’s fastest-growing regions. Don’t miss your chance to invest in a market with strong demand and minimal competition. Contact us today to review the concept plan, proforma, and additional details!

Location

Facts and features

Type:
Commercial Sale
Parking:
No Data
Year Built:
2024
Lot:
3.33 Acres
Heating:
No Data
Price/sqft:
No Data
Cooling:
Other
HOA:
No Data
All facts and features
  • Cooling

    • Other

  • Lot

    • Lot: 3.33 Acres

    Other Property Information

    • Parcel Number: 031925000100001400

    • Zoning: CP

  • Type and style

    • Property Type: Commercial Sale

    • Property Sub Type: Mixed Use

  • Other financial information

    • Annual tax amount: $1,948

  • Source details

    • MLS ID: OM707341

    Other facts

    • Construction Materials: Other

    • Foundation Details: Other

Similar Homes

COUNTY ROAD 44 placeholder COUNTY ROAD 44
143 days
For Sale
Lots/Land
$2,100,000
0 room(s)
COUNTY ROAD 44
 placeholder
284 days
For Sale
Multi-family
$1,295,000
15 bds 7,339 sqft

The multiple listing information is provided by the Stellar MLS from a copyrighted compilation of listings. The compilation of listings and each individual listing are ©2025-present Stellar MLS. All Rights Reserved. The information provided is for consumers' personal, noncommercial use and may not be used for any purpose other than to identify prospective properties consumers may be interested in purchasing. All properties are subject to prior sale or withdrawal. All information provided is deemed reliable but is not guaranteed accurate, and should be independently verified. Listing courtesy of: FLORIDA HOMES REALTY & MORTGAGE