Contact
Tell us about your needs

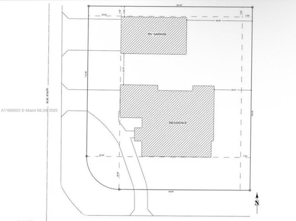
3403 NW 41ST PLACE, Cape Coral FL 33993

Lots/Land For Sale
$69,900

BTC: 0.71997659

ETH: 22.54838710

-$15K (2025/09/29)
133 days
0 room(s)
Est. Estimated sales range: $0 - $0
$0

Overview

Seize the opportunity to own a premium 0.4-acre parcel in one of Cape Coral’s most promising up-and-coming residential neighborhoods. Zoned for residential use, this lot is ideal for custom homes or small-scale developments and comes with the convenience of paved road access and nearby utilities. What sets this property apart is the inclusion of preliminary build plans—giving you a valuable head start on development and helping you capitalize on market trends. Whether you’re an investor, developer, or homebuilder, this lot offers exceptional potential at a compelling price point. Build now, hold for future gains, or reimagine the space—this property offers flexibility, location, and long-term value. Don’t miss out—schedule a viewing or request the plans today!

Location

Facts and features

Type:
Land/Boat Docks
Parking:
No Data
Year Built:
No Data
Lot:
0.40 Acres
Heating:
No Data
Price/sqft:
No Data
Cooling:
No Data
HOA:
No Data
All facts and features
  • Lot

    • Lot: 0.40 Acres

    Other Property Information

    • Parcel Number: 10007174

  • Type and style

    • Property Type: Land/Boat Docks

    • Property Sub Type: Residential

  • Other financial information

    • Annual tax amount: $1,117

  • Source details

    • MLS ID: A11866623

    Other facts

    • Lot Features: No Misc/Improvements

    • Direction Faces: West

    • Other Structures: None

    • Subdivision Name: CAPE CORAL

Similar Homes

2053 Diplomat PKWY W, Other City - In The State Of Florida FL 3844 placeholder 2053 Diplomat PKWY W, Other City - In The State Of Florida FL 3844
3 days
For Sale
Lots/Land
$75,000
0 room(s)
2053 Diplomat PKWY W, Other City - In The State Of Florida FL 3844
2703 Van Buren PKWY, Other City - In The State Of Florida FL 33993 placeholder 2703 Van Buren PKWY, Other City - In The State Of Florida FL 33993
3 days
For Sale
Lots/Land
$80,000
0 room(s)
2703 Van Buren PKWY, Other City - In The State Of Florida FL 33993
2219 NW 26TH STREET placeholder 2219 NW 26TH STREET
14 days
For Sale
Lots/Land
$56,000
0 room(s)
2219 NW 26TH STREET
3923 NW 33RD PL, Cape Coral FL 33993 placeholder 3923 NW 33RD PL, Cape Coral FL 33993
-$5K (2025/12/22)
For Sale
Lots/Land
$55,000
0 room(s)
3923 NW 33RD PL, Cape Coral FL 33993
4336 NW 33rd St, Cape Coral FL 33993 placeholder 4336 NW 33rd St, Cape Coral FL 33993
29 days
For Sale
Lots/Land
$55,000
0 room(s)
4336 NW 33rd St, Cape Coral FL 33993
4341 NW 36th Ave, Cape Coral FL 33993 placeholder 4341 NW 36th Ave, Cape Coral FL 33993
80 days
For Sale
Lots/Land
$69,970
0 room(s)
4341 NW 36th Ave, Cape Coral FL 33993
4341 NW 36TH AVENUE placeholder 4341 NW 36TH AVENUE
80 days
For Sale
Lots/Land
$69,970
0 room(s)
4341 NW 36TH AVENUE
3548 NW 21ST TER, Cape Coral FL 33993 placeholder 3548 NW 21ST TER, Cape Coral FL 33993
+$10K (2025/10/17)
For Sale
Lots/Land
$52,000
0 room(s)
3548 NW 21ST TER, Cape Coral FL 33993

The multiple listing information is provided by the Miami Association of REALTORS® from a copyrighted compilation of listings. The compilation of listings and each individual listing are ©2026-present Miami Association of REALTORS®. All Rights Reserved. The information provided is for consumers' personal, noncommercial use and may not be used for any purpose other than to identify prospective properties consumers may be interested in purchasing. All properties are subject to prior sale or withdrawal. All information provided is deemed reliable but is not guaranteed accurate, and should be independently verified. Listing courtesy of: Lifestyle International Realty