Contact
Tell us about your needs

TBD SE 19TH STREET

House For Sale
$229,900

BTC: 7.66333333

ETH: 114.95000000

86 days
3 bds
2 ba
1,159 sqft
Est. Estimated sales range: $0 - $0
$0

Overview

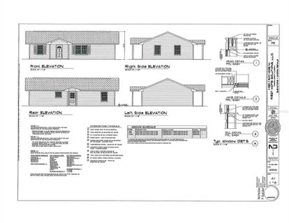
Pre-Construction. To be built. Pre-Construction, To Be Built. Tired of the congested city life? Then come see this cozy 3/2 Frame story book like home out in the country surrounded by the Ocala National Forest, 600 lakes, two rivers and no HOA! The builder will pay $5,000.00 of the buyers closing costs and pre-paids. The photo rendering is approximately and generally how the completed home will look minus shubberies. The home will be situated North and Soth. The front door and 5' x 10'.4" covered front porch will face west towards Ocala. The back door and 5' x 5'.2" back door will face east towards Daytona. The home will ve 1,159 sq ft living area heated and cooled. the total sq ft with covered porches will be 1,256 sq fto. The home will sit on a huge piece of property which is two unpaved lots totalling .60 of an acre . It is two ;75'x150' lots back to back (75'x300) total. This gives you plenty of land to add garages, carports and pole parns for all of your toys! The home itself is an open split bedroom floor plan with a living room//kitchen combination (all electric). Included is a range, refrigerator, range hood, dixhwasher, water heater and four ceiling fans. The ktichen enjoys a pantry and the master beroom a walk-in-closet. The home will have central A/C and Heat, built in pantry and a concrete driveway. This home will be pre-sold and buyers can move in at the certificate of occupancy. Truly a great property at a fair price of just $229,900! Hurry and be the first one to sign up! Home will be located in the Ocala National Forest which affords you almost a ½ million acres of Forest to roam, 600 lakes, 2 rivers, Juniper Springs, Silver Glen Springs, Salt Springs, Swimming, Skiing, Big BASS Fishing, Boating, Camping, Hiking, Horse back riding and some of the best ATV riding anywhere. Daytona Beach is just 1 hour away. Let the fun begin! You need it!

Location

Facts and features

Type:
Residential
Parking:
No Data
Year Built:
2025
Lot:
0.60 Acres
Heating:
Central
Price/sqft:
$198
Cooling:
Central Air
HOA:
No Data
All facts and features
  • Flooring

    • Luxury Vinyl

    Heating

    • Central

    Cooling

    • Central Air

    Appliances

    • Dishwasher

    • Electric Water Heater

    • Exhaust Fan

    • Range

    • Range Hood

    Other interior features

    • Built-in Features

    • Ceiling Fan(s)

    • Living Room/Dining Room Combo

    • Open Floorplan

    • Primary Bedroom Main Floor

    • Solid Wood Cabinets

    • Split Bedroom

    • Thermostat

    • Walk-In Closet(s)

    Bedrooms and bathrooms

    • Bedrooms: 3

    • Full bathrooms: 2

  • Property

    • Levels: One

    • Exterior Features: Lighting / Private Mailbox / Sidewalk

    Lot

    • Lot: 0.60 Acres

    Other Property Information

    • Parcel Number: 3287009007

    • Zoning: R4

  • Type and style

    • Property Type: Residential

    • Property Sub Type: Single Family Residence

  • Utility

    • BB/HS Internet Available

    • Cable Connected

    • Electricity Connected

    • Phone Available

    • Sewer Connected

    • Underground Utilities

    • Water Connected

  • Other financial information

    • Annual tax amount: $168

  • Source details

    • MLS ID: OM709230

    Other facts

    • Construction Materials: Vinyl Siding / Wood Siding

    • Foundation Details: Stem Wall

    • Laundry Features: Electric Dryer Hookup / Inside / Laundry Closet / Washer Hookup

    • Lot Features: Cleared / Level

    • Patio And Porch Features: Covered / Front Porch / Rear Porch

    • Window Features: Aluminum Frames / Double Pane Windows

    • Direction Faces: West

    • Architectural Style: Traditional

    • Living Area: 1159

    • Water Source: Well

    • Lot Size Dimensions: 75 x 150

    • Subdivision Name: HALMOON MINI-FARMS

Similar Homes

1991 SE 170TH AVENUE ROAD placeholder 1991 SE 170TH AVENUE ROAD
6 days
For Sale
$220,000
2 bds 2 ba 1,440 sqft
1991 SE 170TH AVENUE ROAD
240 SE 165TH COURT ROAD placeholder 240 SE 165TH COURT ROAD
9 days
For Sale
House
$199,999
2 bds 1 ba 864 sqft
240 SE 165TH COURT ROAD
1540 SE 187TH AVENUE placeholder 1540 SE 187TH AVENUE
13 days
For Sale
$265,000
3 bds 2 ba 1,244 sqft
1540 SE 187TH AVENUE
1740 SE 164TH CIRCLE placeholder 1740 SE 164TH CIRCLE
18 days
For Sale
House
$297,000
3 bds 3 ba 1,898 sqft
1740 SE 164TH CIRCLE
18015 SE 18TH STREET placeholder 18015 SE 18TH STREET
-$300 (2025/11/28)
For Sale
$265,600
2 bds 2 ba 1,286 sqft
18015 SE 18TH STREET
1830 SE 169TH COURT placeholder 1830 SE 169TH COURT
-$22K (2025/11/07)
For Sale
House
$175,000
2 bds 1 ba 1,040 sqft
1830 SE 169TH COURT
4660 SE 160TH COURT placeholder 4660 SE 160TH COURT
-$20K (2025/10/27)
For Sale
House
$235,000
3 bds 2 ba 1,498 sqft
4660 SE 160TH COURT
18487 SE 18TH STREET ROAD placeholder 18487 SE 18TH STREET ROAD
-$70K (2025/12/01)
For Sale
House
$169,000
3 bds 1 ba 1,288 sqft
18487 SE 18TH STREET ROAD

The multiple listing information is provided by the Stellar MLS from a copyrighted compilation of listings. The compilation of listings and each individual listing are ©2025-present Stellar MLS. All Rights Reserved. The information provided is for consumers' personal, noncommercial use and may not be used for any purpose other than to identify prospective properties consumers may be interested in purchasing. All properties are subject to prior sale or withdrawal. All information provided is deemed reliable but is not guaranteed accurate, and should be independently verified. Listing courtesy of: SUN REALTY & ASSOC