Contact
Tell us about your needs

10339 SE 179TH STREET

House For Sale
$209,000

BTC: 6.96666667

ETH: 104.50000000

37 days
2 bds
2 ba
1,008 sqft
Est. Estimated sales range: $0 - $0
$0

Overview

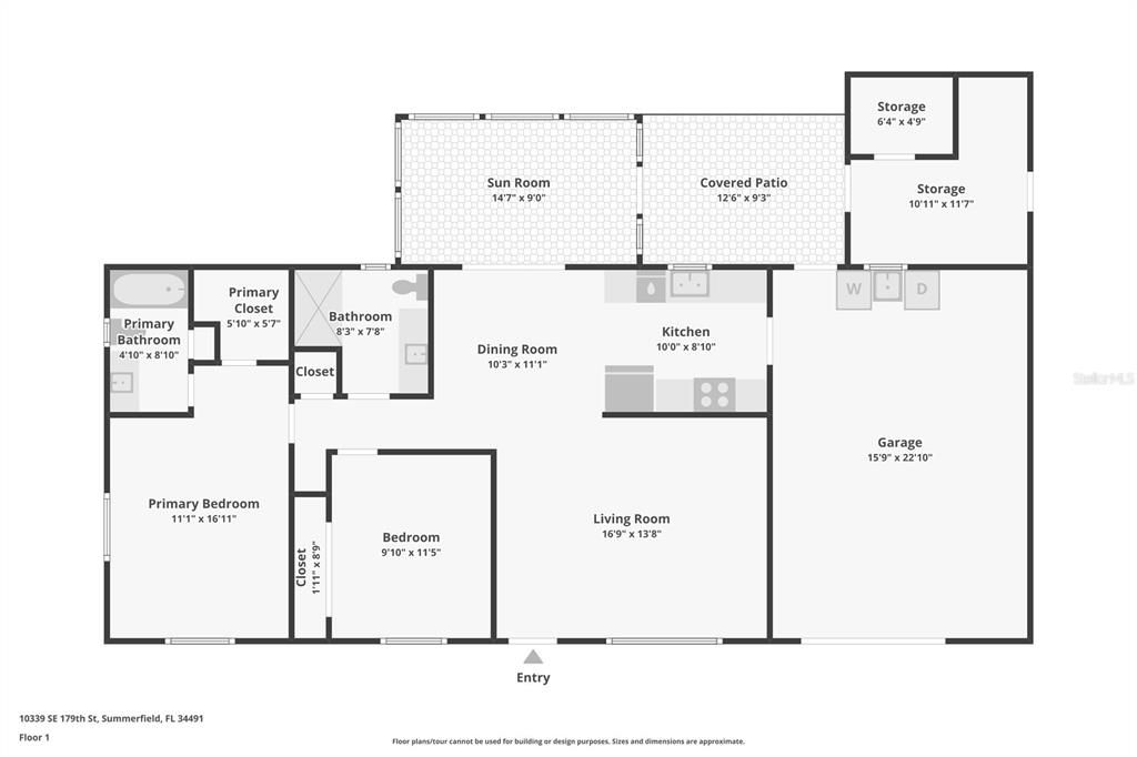
Your Next Adventure Awaits in Spruce Creek South! Welcome home to the coveted Spruce Creek South, a vibrant, securely gated 55+ community in sunny Summerfield, FL. This charming 2-bedroom, 2-bath residence sits on a desirable oversized 1/4-acre lot, offering ample space and privacy for the active lifestyle you've earned. Step inside to a bright, open living room flowing into a dedicated dining area just off the kitchen—a perfect layout for entertaining or quiet evenings. The home features a comfortable primary suite with a walk-in closet and private bath, plus a secondary bedroom and full guest bath. You’ll love expanding your living space year-round with the beautiful sunroom and the relaxing covered lanai, ideal for morning coffee or an evening cocktail. Practicality meets convenience with an extended driveway for extra parking, an oversized main garage, and an indispensable separate golf cart garage for all your storage needs. Enjoy quiet moments on the cozy front porch, too! Live the Unbeatable Golf Cart Lifestyle This is more than a home; it's a gateway to fun! Spruce Creek South is famous for its manned 24/7 gate and legal golf cart access across US-441 to a world of convenience—restaurants, shopping, medical offices, and more are all just a short ride away. Plus, you’re just minutes from The Villages for endless entertainment and dining options. The community amenities are second to none including: Resort-Style Pool & Spa, 18-Hole Golf Course with Pro Shop and on-site restaurant, Massive Clubhouse with fitness center, saunas, huge kitchen, and entertainment stage, RV/Boat Storage (available for a low fee), Softball field, game rooms, and an incredible array of clubs & social events! Everything is here. All that's missing is you!

Location

Facts and features

Type:
Residential
Parking:
Driveway / Golf Cart Garage / Golf Cart Parking
Year Built:
1991
Lot:
0.25 Acres
Heating:
Central / Heat Pump
Price/sqft:
$207
Cooling:
Central Air
HOA:
$175
All facts and features
  • Flooring

    • Carpet

    • Ceramic Tile

    Heating

    • Central

    • Heat Pump

    Cooling

    • Central Air

    Appliances

    • Dishwasher

    • Range

    • Refrigerator

    Other interior features

    • Ceiling Fan(s)

    • Primary Bedroom Main Floor

    • Walk-In Closet(s)

    Bedrooms and bathrooms

    • Bedrooms: 2

    • Full bathrooms: 2

  • Parking

    • Driveway

    • Golf Cart Garage

    • Golf Cart Parking

    Property

    • Levels: One

    • Exterior Features: Awning(s) / Private Mailbox

    Lot

    • Lot: 0.25 Acres

    Other Property Information

    • Parcel Number: 6005007003

    • Zoning: R1

  • Type and style

    • Property Type: Residential

    • Property Sub Type: Single Family Residence

  • Utility

    • Electricity Connected

  • Other financial information

    • HOA: $175

    • HOA Frequency: Monthly

    • Annual tax amount: $2,482

  • Source details

    • MLS ID: TB8442771

    Other facts

    • Construction Materials: Vinyl Siding

    • Foundation Details: Slab

    • Laundry Features: In Garage

    • Direction Faces: South

    • Garage Spaces: 1

    • Attached Garage: Yes

    • Garage: Yes

    • Living Area: 1008

    • Water Source: Public

    • Lot Size Dimensions: 100 x 110

    • Subdivision Name: SPRUCE CRK SOUTH V

Similar Homes

1612 CAMPOS DRIVE placeholder 1612 CAMPOS DRIVE
New
For Sale
House
$239,900
2 bds 2 ba 1,121 sqft
1612 CAMPOS DRIVE
1651 DURAN DRIVE placeholder 1651 DURAN DRIVE
+$8K (2025/12/06)
For Sale
House
$233,000
2 bds 2 ba 1,121 sqft
1651 DURAN DRIVE
1308 OWEN DRIVE placeholder 1308 OWEN DRIVE
-$2K (2025/12/06)
For Sale
$172,500
3 bds 2 ba 1,141 sqft
1308 OWEN DRIVE
2598 HIALEAH AVENUE placeholder 2598 HIALEAH AVENUE
2 days
For Sale
House
$225,000
1 bds 1 ba 875 sqft
2598 HIALEAH AVENUE
16905 SE 81ST ELLERSLIE COURT placeholder 16905 SE 81ST ELLERSLIE COURT
2 days
For Sale
House
$245,000
2 bds 2 ba 1,160 sqft
16905 SE 81ST ELLERSLIE COURT
928 OLEANDER STREET placeholder 928 OLEANDER STREET
4 days
For Sale
$220,000
2 bds 2 ba 1,196 sqft
928 OLEANDER STREET
17520 SE 95TH COURT placeholder 17520 SE 95TH COURT
4 days
For Sale
House
$197,000
2 bds 2 ba 1,008 sqft
17520 SE 95TH COURT
10046 SE 175TH STREET placeholder 10046 SE 175TH STREET
5 days
For Sale
House
$209,000
2 bds 2 ba 1,240 sqft
10046 SE 175TH STREET

The multiple listing information is provided by the Stellar MLS from a copyrighted compilation of listings. The compilation of listings and each individual listing are ©2025-present Stellar MLS. All Rights Reserved. The information provided is for consumers' personal, noncommercial use and may not be used for any purpose other than to identify prospective properties consumers may be interested in purchasing. All properties are subject to prior sale or withdrawal. All information provided is deemed reliable but is not guaranteed accurate, and should be independently verified. Listing courtesy of: KELLER WILLIAMS SUBURBAN TAMPA