Contact
Tell us about your needs

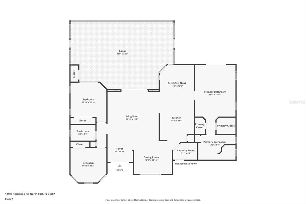
12108 HERNANDO ROAD

House For Sale
$415,000

BTC: 4.77835348

ETH: 207.50000000

54 days
3 bds
2 ba
1,706 sqft
Est. Estimated sales range: $0 - $0
$0

Overview

NOT FLOOD ZONE! NO CDD ! NO HOA! FULLY REMODELED! NEW AC 2025! BACK UP TO THE PRESERVE! FULL PRIVACY! Welcome to a great opportunity to own the home of your dreams in the desirable city of North Port, Florida. Situated in a vibrant and thriving community minutes away from Warm Mineral Springs, this property promises a lifestyle filled with abundant sunshine, natural beauty, and coastal charm. EXECUTIVE CUSTOM built 3BD, 2BA, OVERSIZED 2 car garage, 2,849 sq. ft. total HOME in a tranquil setting with exceptional privacy as it backs up to Deer Prairie Creek Preserve. Enchantment begins the moment you enter through GLASS ETCHED DOUBLE doors: SUPER HIGH 12’ CEILINGS, classy BRAND NEW FLOORING, CROWN MOLDING, DOUBLE-LAYED HIGH-END ceiling fans w/remote control, 8’ interior doors, and custom blinds. Splendor continues in this DREAM kitchen w/TALL SOLID WOOD CABINETS, PULL-OUT DRAWERS for pots & pans, GRANITE counter tops, GRANITE back-splash, SS APPLIANCES, a BREAKFAST BAR & very tall CLOSET PANTRY. Separate BREAKFAST NOOK w/EXPANSIVE AQUARIUM GLASS window for those kick back morning coffee's. The extended master retreat is VERY SPACIOUS & the BEST w/the slider to lanai, OVERSIZED HIS & HERS CLOSETS, master bath w/double GRANITE VANITIES, a large ROMAN shower & LINEN closet. Cozy FLORIDA ROOM w/ a total of 720sqft featuring TILE FLOORING, SLIDING VINYL WINDOWS & storage room is good to RELAX & ENTERTAIN your guests. SECURITY system Always have privacy; no neighbors behind! Quiet, peaceful neighborhood but close to everything: minutes away from shopping, restaurants, beautiful sandy beaches, great schools, golf courses, I-75, & more. FULL PRIVACY! EXTRA LARGE LANAI! NOT FLOOD ZONE! NO HOA OR CDD! Nestled in the heart of North Port, this home benefits from its prime location, offering easy access to an array of amenities and attractions. Discover the nearby pristine Gulf beaches, where you can bask in the sun, partake in water activities, or simply relish the tranquility of the ocean. Embark on nautical adventures from the conveniently located marinas, allowing you to explore the region's captivating waterways and nearby islands. Fishing enthusiasts will delight in the world-class fishing opportunities, while golf aficionados can indulge in a variety of renowned golf courses. North Port is known for its thriving shopping and dining scene, featuring a diverse range of retail centers, boutiques, and restaurants. Immerse yourself in the vibrant downtown area, boasting charming shops, art galleries, and entertainment venues. The city hosts numerous cultural events, festivals, and community gatherings throughout the year, ensuring there's always something exciting happening.North Port also boasts excellent educational institutions, reliable medical facilities, and convenient transportation options. The city's welcoming community and strong sense of belonging make it an ideal place to establish roots and create lasting memories. Do not miss out on this exceptional opportunity to craft your dream home or invest in a prime location. Schedule a showing today and begin envisioning the endless possibilities offered by this remarkable property! Experience the best that Florida living with nearby beaches, golf courses, and outdoor recreational activities just a short drive away. Don't miss out on the chance to own this extraordinary home.

Location

Facts and features

Type:
Residential
Parking:
No Data
Year Built:
2006
Lot:
0.22 Acres
Heating:
Central
Price/sqft:
$243
Cooling:
Central Air
HOA:
No Data
All facts and features
  • Flooring

    • Laminate

    • Tile

    Heating

    • Central

    Cooling

    • Central Air

    Appliances

    • Dishwasher

    • Dryer

    • Electric Water Heater

    • Microwave

    • Range

    • Refrigerator

    • Washer

    Other interior features

    • Cathedral Ceiling(s)

    • Ceiling Fan(s)

    • Crown Molding

    • Eating Space In Kitchen

    • High Ceilings

    • Living Room/Dining Room Combo

    • Open Floorplan

    • Solid Surface Counters

    • Stone Counters

    • Tray Ceiling(s)

    • Walk-In Closet(s)

    Bedrooms and bathrooms

    • Bedrooms: 3

    • Full bathrooms: 2

  • Property

    • Levels: One

    • Exterior Features: Rain Gutters

    Lot

    • Lot: 0.22 Acres

    Other Property Information

    • Parcel Number: 0768140060

    • Zoning: RSF3

  • Type and style

    • Property Type: Residential

    • Property Sub Type: Single Family Residence

  • Utility

    • Electricity Connected

  • Other financial information

    • Annual tax amount: $4,315

  • Source details

    • MLS ID: N6141123

    Other facts

    • Construction Materials: Block / Stucco

    • Foundation Details: Slab

    • Laundry Features: Inside / Laundry Room

    • Direction Faces: North

    • Garage Spaces: 2

    • Attached Garage: Yes

    • Garage: Yes

    • Living Area: 1706

    • Water Source: Well

    • Lot Size Dimensions: 120 x 80

    • Subdivision Name: WARM MINERAL SPGS

Similar Homes

3311 ROGUE STREET placeholder 3311 ROGUE STREET
2 days
For Sale
House
$350,000
3 bds 2 ba 1,670 sqft
3311 ROGUE STREET
8331 COSGROVE ROAD placeholder 8331 COSGROVE ROAD
2 days
For Sale
House
$459,000
3 bds 2 ba 1,730 sqft
8331 COSGROVE ROAD
8867 WAWANA ROAD placeholder 8867 WAWANA ROAD
3 days
For Sale
House
$329,900
4 bds 2 ba 1,810 sqft
8867 WAWANA ROAD
4135 GEOFFREY STREET placeholder 4135 GEOFFREY STREET
5 days
For Sale
House
$369,900
4 bds 2 ba 1,773 sqft
4135 GEOFFREY STREET
6288 DEER RUN RD placeholder 6288 DEER RUN RD
7 days
For Sale
House
$339,000
3 bds 2 ba 1,499 sqft
6288 DEER RUN RD
15 RAMBLEWOOD STREET placeholder 15 RAMBLEWOOD STREET
10 days
For Sale
House
$520,000
4 bds 3 ba 1,795 sqft
15 RAMBLEWOOD STREET
70 MCDILL DRIVE placeholder 70 MCDILL DRIVE
10 days
For Sale
House
$520,000
4 bds 3 ba 1,795 sqft
70 MCDILL DRIVE
49 SANTA FE STREET placeholder 49 SANTA FE STREET
10 days
For Sale
House
$410,000
4 bds 3 ba 1,795 sqft
49 SANTA FE STREET

The multiple listing information is provided by the Stellar MLS from a copyrighted compilation of listings. The compilation of listings and each individual listing are ©2025-present Stellar MLS. All Rights Reserved. The information provided is for consumers' personal, noncommercial use and may not be used for any purpose other than to identify prospective properties consumers may be interested in purchasing. All properties are subject to prior sale or withdrawal. All information provided is deemed reliable but is not guaranteed accurate, and should be independently verified. Listing courtesy of: RE/MAX PALM REALTY OF VENICE