Contact
Tell us about your needs

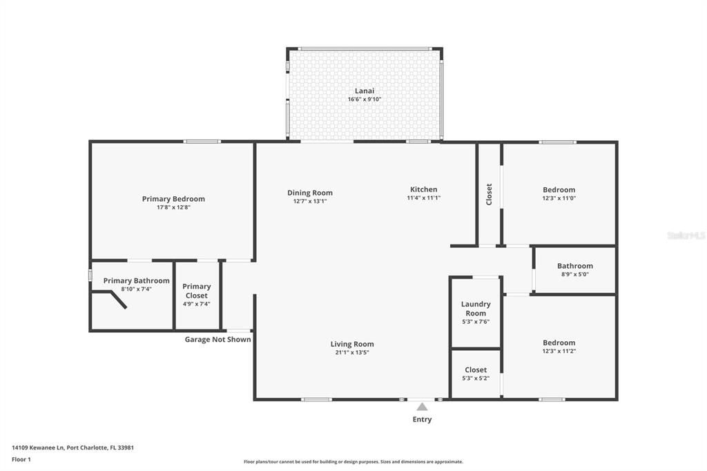
14109 KEWANEE LANE

House For Sale
$325,000

BTC: 4.82432266

ETH: 169.27083333

10 days
3 bds
2 ba
1,639 sqft
Est. Estimated sales range: $0 - $0
$0

Overview

Welcome to this beautifully designed 2021-built single-family home located in the sought-after Port Charlotte community. This spacious 3-bedroom, 2-bath residence offers approximately 1,639 sq. ft. of well-planned living space with an open, functional floor plan ideal for both everyday living and Florida-style entertaining.NO HOA OR CDD! Step inside to soaring cathedral ceilings, tile flooring throughout, and abundant natural light that enhances the open living area. The well-appointed kitchen features a large center island, granite countertops, stainless steel appliances, and seamless flow into the dining space—perfect for family meals or hosting guests. Additional features include a home water filtration system and a 6-camera surveillance system for added comfort and peace of mind. The primary suite serves as a private retreat with a walk-in closet and en-suite bathroom. Two additional bedrooms and a second full bath provide flexibility for family, guests, or a home office. Hurricane/storm shutters, recessed lighting, and ceiling fans in every room add convenience and security. Enjoy outdoor living with an enclosed lanai overlooking a canal-front setting, all situated on a generous 9,999 sq. ft. lot in the established Port Charlotte Sec 058 neighborhood. PUBLIC WATER & PUBLIC SEWER add to the home’s appeal, while a 2-car attached garage and modern construction complete this move-in-ready property. Located near shopping, dining, parks, and local waterways, this home offers the perfect blend of modern design and relaxed Florida living.Conveniently located just minutes from Boca Grande, offering access to world-class fishing, dining, shopping, and Gulf beaches. This property truly captures the best of Florida living.

Location

Facts and features

Type:
Residential
Parking:
No Data
Year Built:
2021
Lot:
0.23 Acres
Heating:
Central
Price/sqft:
$198
Cooling:
Central Air
HOA:
No Data
All facts and features
  • Flooring

    • Tile

    Heating

    • Central

    Cooling

    • Central Air

    Appliances

    • Dishwasher

    • Microwave

    • Range

    • Refrigerator

    Other interior features

    • Cathedral Ceiling(s)

    • Ceiling Fan(s)

    • Open Floorplan

    • Vaulted Ceiling(s)

    • Walk-In Closet(s)

    Bedrooms and bathrooms

    • Bedrooms: 3

    • Full bathrooms: 2

  • Property

    • Levels: One

    • Exterior Features: Hurricane Shutters

    Lot

    • Lot: 0.23 Acres

    Other Property Information

    • Parcel Number: 412116307006

    • Zoning: RSF3.5

  • Type and style

    • Property Type: Residential

    • Property Sub Type: Single Family Residence

  • Utility

    • Cable Available

    • Electricity Connected

    • Phone Available

    • Sewer Connected

    • Water Connected

  • Other financial information

    • Annual tax amount: $4,525

  • Source details

    • MLS ID: N6141963

    Other facts

    • Construction Materials: Block / Stucco

    • Foundation Details: Slab

    • Laundry Features: Inside

    • Direction Faces: North

    • Garage Spaces: 2

    • Attached Garage: Yes

    • Garage: Yes

    • Living Area: 1639

    • Water Source: Public

    • Subdivision Name: PORT CHARLOTTE SEC 058

Similar Homes

129 HERCULES DRIVE placeholder 129 HERCULES DRIVE
New
For Sale
House
$319,499
4 bds 2 ba 1,941 sqft
129 HERCULES DRIVE
12251 FORESMAN BOULEVARD placeholder 12251 FORESMAN BOULEVARD
New
For Sale
House
$230,000
3 bds 2 ba 1,220 sqft
12251 FORESMAN BOULEVARD
15033 SPANISH POINT DRIVE placeholder 15033 SPANISH POINT DRIVE
1 days
For Sale
House
$359,000
3 bds 3 ba 1,857 sqft
15033 SPANISH POINT DRIVE
14059 Barbet Ln, Port Charlotte FL 33981 placeholder 14059 Barbet Ln, Port Charlotte FL 33981
1 days
For Sale
House
$349,000
4 bds 2 ba 1,800 sqft
14059 Barbet Ln, Port Charlotte FL 33981
6204 THORMAN ROAD placeholder 6204 THORMAN ROAD
1 days
For Sale
House
$249,900
3 bds 2 ba 1,148 sqft
6204 THORMAN ROAD
 placeholder
2 days
For Sale
House
$360,000
4 bds 2 ba 1,813 sqft
198 ARCH DRIVE placeholder 198 ARCH DRIVE
2 days
For Sale
House
$309,900
4 bds 2 ba 1,921 sqft
198 ARCH DRIVE
8 and 10 ABAFT PLACE placeholder 8 and 10 ABAFT PLACE
3 days
For Sale
House
$400,000
3 bds 2 ba 2,032 sqft
8 and 10 ABAFT PLACE

The multiple listing information is provided by the Stellar MLS from a copyrighted compilation of listings. The compilation of listings and each individual listing are ©2026-present Stellar MLS. All Rights Reserved. The information provided is for consumers' personal, noncommercial use and may not be used for any purpose other than to identify prospective properties consumers may be interested in purchasing. All properties are subject to prior sale or withdrawal. All information provided is deemed reliable but is not guaranteed accurate, and should be independently verified. Listing courtesy of: RE/MAX PALM REALTY OF VENICE