Contact
Tell us about your needs

18463 VAN NUYS CIRCLE

House For Sale
$299,900

BTC: 3.41451546

ETH: 149.95000000

1 days
3 bds
2 ba
1,574 sqft
Est. Estimated sales range: $0 - $0
$0

Overview

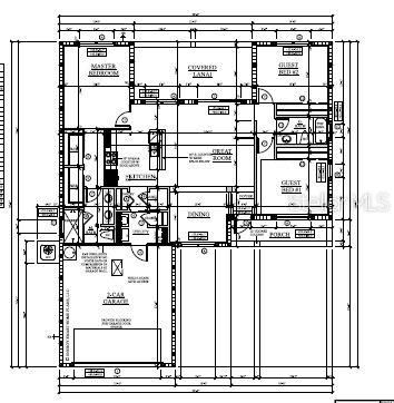
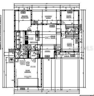
Gorgeous and BRAND NEW 3/2/2, 1548sf, split floorplan home located in a nice neighborhood in Port Charlotte. This home has a grand great room entrance into a beautiful open floor plan. You’ll notice in the foyer, that the home has high (9’4”) ceilings, as well as vaulted ceilings in both the great room and kitchen, luxury vinyl plank flooring in bedrooms and tile in the balance of the home. The house also features granite countertops, stainless appliances, and much more. The Master Suite two walk in closets and leads to the Master Bath with double sinks and an all tile shower. The second and third bedrooms share a “Jack and Jill” style bathroom. All of the rooms are spacious and comfortable. If entertaining is your thing, the back sliders lead out to a huge covered lanai. In Port Charlotte, you are always near world class beaches (Siesta Key, Englewood, etc), surrounded by golf courses, restaurants, shopping, boating, fishing, and even Minor League and Spring Training baseball!

Location

Facts and features

Type:
Residential
Parking:
No Data
Year Built:
2021
Lot:
0.23 Acres
Heating:
Electric
Price/sqft:
$191
Cooling:
Central Air
HOA:
No Data
All facts and features
  • Flooring

    • Ceramic Tile

    • Luxury Vinyl

    Heating

    • Electric

    Cooling

    • Central Air

    Appliances

    • Dishwasher

    • Electric Water Heater

    • Microwave

    • Range

    • Refrigerator

    Other interior features

    • Ceiling Fan(s)

    • High Ceilings

    • Open Floorplan

    • Stone Counters

    • Window Treatments

    Bedrooms and bathrooms

    • Bedrooms: 3

    • Full bathrooms: 2

  • Property

    • Levels: One

    • Exterior Features: Other / Private Mailbox / Sliding Doors

    Lot

    • Lot: 0.23 Acres

    Other Property Information

    • Parcel Number: 402231128020

    • Zoning: RSF3.5

  • Type and style

    • Property Type: Residential

    • Property Sub Type: Single Family Residence

  • Utility

    • Electricity Connected

  • Other financial information

    • Annual tax amount: $4,576

  • Source details

    • MLS ID: C7519062

    Other facts

    • Construction Materials: Block / Stucco

    • Foundation Details: Stem Wall

    • Laundry Features: Inside

    • Direction Faces: South

    • Garage Spaces: 2

    • Attached Garage: Yes

    • Garage: Yes

    • Living Area: 1574

    • Water Source: Public

    • Lot Size Dimensions: 80 x 125

    • Subdivision Name: PORT CHARLOTTE SEC 079

Similar Homes

18386 LOCKLANE AVENUE placeholder 18386 LOCKLANE AVENUE
1 days
For Sale
House
$279,900
3 bds 2 ba 1,182 sqft
18386 LOCKLANE AVENUE
3276 PINETREE STREET placeholder 3276 PINETREE STREET
1 days
For Sale
House
$289,000
3 bds 2 ba 1,750 sqft
3276 PINETREE STREET
551 W TARPON BOULEVARD NW placeholder 551 W TARPON BOULEVARD NW
4 days
For Sale
$315,000
3 bds 2 ba 1,050 sqft
551 W TARPON BOULEVARD NW
18374 ELGIN AVENUE placeholder 18374 ELGIN AVENUE
5 days
For Sale
House
$379,900
4 bds 2 ba 1,695 sqft
18374 ELGIN AVENUE
719 HALEYBURY STREET placeholder 719 HALEYBURY STREET
5 days
For Sale
House
$289,900
3 bds 2 ba 1,563 sqft
719 HALEYBURY STREET
18382 ELGIN AVENUE placeholder 18382 ELGIN AVENUE
5 days
For Sale
House
$379,900
4 bds 2 ba 1,695 sqft
18382 ELGIN AVENUE
1049 TROPICAL AVENUE NW placeholder 1049 TROPICAL AVENUE NW
6 days
For Sale
House
$319,000
3 bds 2 ba 1,521 sqft
1049 TROPICAL AVENUE NW
3100 COMO STREET placeholder 3100 COMO STREET
8 days
For Sale
Lots/Land
$220,000
0 room(s)
3100 COMO STREET

The multiple listing information is provided by the Stellar MLS from a copyrighted compilation of listings. The compilation of listings and each individual listing are ©2025-present Stellar MLS. All Rights Reserved. The information provided is for consumers' personal, noncommercial use and may not be used for any purpose other than to identify prospective properties consumers may be interested in purchasing. All properties are subject to prior sale or withdrawal. All information provided is deemed reliable but is not guaranteed accurate, and should be independently verified. Listing courtesy of: GULF GATEWAY REALTY, INC.