Contact
Tell us about your needs

19331 SANDY SPRINGS CIRCLE

House Active With Contract
$690,000

BTC: 7.99073538

ETH: 235.81681476

15 days
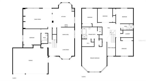
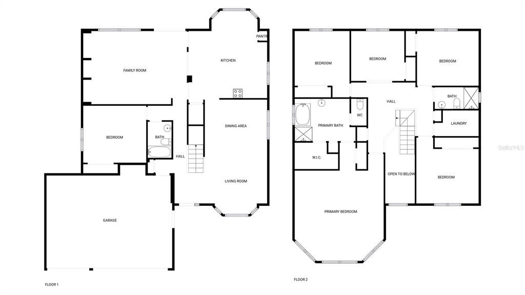
6 bds
3 ba
3,064 sqft
Est. Estimated sales range: $0 - $0
$0

Overview

One or more photo(s) has been virtually staged. Welcome to your dream home! The home boasts a neutral color paint scheme, new interior and exterior paint, new roof, new laminate and carpet flooring and all new light fixtures. The kitchen is a chef's delight with an accent backsplash, a center island, new stainless steel appliances and new countertops. The primary bedroom features a spacious walk-in closet and an en-suite bathroom with double sinks, a separate tub, and new shower. Outside, you'll find a covered patio overlooking a private in-ground pool, perfect for entertaining. This property is a must-see, offering a blend of style and convenience. Included 100-Day Home Warranty with buyer activation

Location

Facts and features

Type:
Residential
Parking:
Tandem
Year Built:
2002
Lot:
0.21 Acres
Heating:
Central
Price/sqft:
$225
Cooling:
None
HOA:
$125
All facts and features
  • Flooring

    • Carpet

    Heating

    • Central

    Cooling

    • None

    Appliances

    • Electric Water Heater

    • Other

    • Range

    Other interior features

    • Ceiling Fan(s)

    • L Dining

    • Primary Bedroom Main Floor

    Bedrooms and bathrooms

    • Bedrooms: 6

    • Full bathrooms: 3

  • Parking

    • Tandem

    Property

    • Levels: Two

    • Pool Private: Yes

    • Exterior Features: Other

    Lot

    • Lot: 0.21 Acres

    Other Property Information

    • Parcel Number: U0427185FQ00001600012.0

    • Zoning: PD

  • Type and style

    • Property Type: Residential

    • Property Sub Type: Single Family Residence

  • Utility

    • Electricity Available

    • Water Available

  • Other financial information

    • HOA: $125

    • HOA Frequency: Monthly

    • Annual tax amount: $10,488

  • Source details

    • MLS ID: O6357878

    Other facts

    • Construction Materials: Block / Stucco

    • Foundation Details: Slab

    • Laundry Features: Upper Level

    • Pool Features: In Ground

    • Direction Faces: South

    • Garage Spaces: 3

    • Attached Garage: Yes

    • Garage: Yes

    • Living Area: 3064

    • Water Source: Public

    • Subdivision Name: HERITAGE HARBOR PH 2C

Similar Homes

18103 CLEAR LAKE DRIVE placeholder 18103 CLEAR LAKE DRIVE
3 days
Active With Contract
House
$525,000
3 bds 3 ba 2,848 sqft
18103 CLEAR LAKE DRIVE
18952 MAISONS DRIVE placeholder 18952 MAISONS DRIVE
4 days
Active With Contract
House
$669,000
4 bds 3 ba 2,281 sqft
18952 MAISONS DRIVE
4309 WATERFORD LANDING DRIVE placeholder 4309 WATERFORD LANDING DRIVE
5 days
Active With Contract
House
$759,900
4 bds 3 ba 2,971 sqft
4309 WATERFORD LANDING DRIVE
18810 PLACE ANTIBES placeholder 18810 PLACE ANTIBES
34 days
Active With Contract
House
$785,000
5 bds 3 ba 3,251 sqft
18810 PLACE ANTIBES
19296 LEONARD ROAD placeholder 19296 LEONARD ROAD
44 days
Active With Contract
House
$538,000
3 bds 2 ba 2,115 sqft
19296 LEONARD ROAD
19906 STRATHMORE PLACE placeholder 19906 STRATHMORE PLACE
-$25K (2025/11/26)
Active With Contract
House
$875,000
4 bds 3 ba 3,374 sqft
19906 STRATHMORE PLACE
18425 BITTERN AVENUE placeholder 18425 BITTERN AVENUE
-$25K (2025/12/08)
Active With Contract
House
$744,900
5 bds 2 ba 3,232 sqft
18425 BITTERN AVENUE
4233 SANDY SHORES DRIVE placeholder 4233 SANDY SHORES DRIVE
-$10K (2025/10/06)
Active With Contract
House
$609,900
5 bds 3 ba 2,976 sqft
4233 SANDY SHORES DRIVE

The multiple listing information is provided by the Stellar MLS from a copyrighted compilation of listings. The compilation of listings and each individual listing are ©2025-present Stellar MLS. All Rights Reserved. The information provided is for consumers' personal, noncommercial use and may not be used for any purpose other than to identify prospective properties consumers may be interested in purchasing. All properties are subject to prior sale or withdrawal. All information provided is deemed reliable but is not guaranteed accurate, and should be independently verified. Listing courtesy of: OPENDOOR BROKERAGE LLC