Contact
Tell us about your needs

19333 AQUA SPRINGS DRIVE

House Active With Contract
$599,000

BTC: 8.14680571

ETH: 297.33687424

68 days
4 bds
3 ba
2,842 sqft
Est. Estimated sales range: $0 - $0
$0

Overview

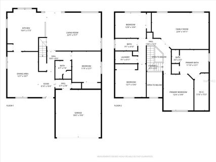
Under contract-accepting backup offers. ***Sellers offering $5,000 toward Buyer's rate buy down with the use of Sellers' preferred lender*** Welcome to this beautiful, move-in-ready, 4 bedroom 3 full bathroom home located on a quiet cul-de-sac in the highly sought-after Heritage Harbor community! Located in a top-rated A+ school district of McKitrick, Martinez, Steinbrenner, this home offers the an ideal combination of location, space, and convenience. Step inside to discover an open and inviting floor plan with plenty of natural light with indoor and outdoor entertaining areas. The home features a bedroom/bathroom combination downstairs and a split floor concept upstairs. Upstairs the home offers a spacious loft, ideal for a game room, home office, or additional living area - and with its generous layout, it can easily be converted into two additional bedrooms, making this a potential 6-bedroom home! Enjoy all the resort-style amenities Heritage Harbor has to offer, including a golf course, Double Bogeys Restaurant, huge community pool with a splash pad and water slide, fitness center, tennis courts, basketball court, hockey court, sand volleyball court, playground, and more. Conveniently located just minutes from Veterans Expressway, Dale Mabry Highway, and Gunn Highway, you'll have quick access to shopping, dining, airport, and everything Tampa Bay has to offer. With new flooring, freshly painted interior, a built-in home security system, new vinyl privacy fence and so much more, you will not want to miss the opportunity to make this beautiful home yours!

Location

Facts and features

Type:
Residential
Parking:
No Data
Year Built:
1999
Lot:
0.13 Acres
Heating:
Central / Electric
Price/sqft:
$211
Cooling:
Central Air
HOA:
$125
All facts and features
  • Flooring

    • Carpet

    • Luxury Vinyl

    Heating

    • Central

    • Electric

    Cooling

    • Central Air

    Appliances

    • Dishwasher

    • Disposal

    • Electric Water Heater

    • Microwave

    • Range

    Other interior features

    • Ceiling Fan(s)

    • Pest Guard System

    • PrimaryBedroom Upstairs

    • Solid Surface Counters

    • Solid Wood Cabinets

    • Split Bedroom

    • Thermostat

    • Vaulted Ceiling(s)

    Bedrooms and bathrooms

    • Bedrooms: 4

    • Full bathrooms: 3

  • Property

    • Levels: Two

    • Exterior Features: French Doors / Irrigation System / Private Mailbox

    Lot

    • Lot: 0.13 Acres

    Other Property Information

    • Parcel Number: U0427180H800001300033.0

    • Zoning: PD

  • Type and style

    • Property Type: Residential

    • Property Sub Type: Single Family Residence

  • Utility

    • Cable Connected

    • Electricity Connected

    • Public

    • Sewer Connected

    • Sprinkler Recycled

    • Water Connected

  • Other financial information

    • HOA: $125

    • HOA Frequency: Monthly

    • Annual tax amount: $8,778

  • Source details

    • MLS ID: TB8440852

    Other facts

    • Construction Materials: Stucco

    • Foundation Details: Slab

    • Laundry Features: Electric Dryer Hookup / Inside / Laundry Room / Upper Level

    • Lot Features: Cul-De-Sac / Sidewalk

    • Patio And Porch Features: Covered / Patio / Porch / Screened

    • Direction Faces: West

    • Garage Spaces: 2

    • Attached Garage: Yes

    • Garage: Yes

    • Living Area: 2842

    • Water Source: Public

    • Lot Size Dimensions: 50 x 117

    • Subdivision Name: HERITAGE HARBOR PH 1B

Similar Homes

18952 MAISONS DRIVE placeholder 18952 MAISONS DRIVE
4 days
Active With Contract
House
$669,000
4 bds 3 ba 2,281 sqft
18952 MAISONS DRIVE
19421 BLUE POND DRIVE placeholder 19421 BLUE POND DRIVE
5 days
Active With Contract
Townhouse
$475,000
4 bds 3 ba 2,574 sqft
19421 BLUE POND DRIVE
4309 WATERFORD LANDING DRIVE placeholder 4309 WATERFORD LANDING DRIVE
5 days
Active With Contract
House
$759,900
4 bds 3 ba 2,971 sqft
4309 WATERFORD LANDING DRIVE
3207 PRAIRIE IRIS DRIVE placeholder 3207 PRAIRIE IRIS DRIVE
12 days
Active With Contract
House
$460,000
4 bds 2 ba 2,138 sqft
3207 PRAIRIE IRIS DRIVE
19296 LEONARD ROAD placeholder 19296 LEONARD ROAD
44 days
Active With Contract
House
$538,000
3 bds 2 ba 2,115 sqft
19296 LEONARD ROAD
19415 MONARCH WIND WAY placeholder 19415 MONARCH WIND WAY
49 days
Active With Contract
Townhouse
$440,000
3 bds 2 ba 2,230 sqft
19415 MONARCH WIND WAY
18756 WIMBLEDON CIRCLE placeholder 18756 WIMBLEDON CIRCLE
-$5K (2025/12/03)
Active With Contract
Townhouse
$544,900
3 bds 2 ba 2,480 sqft
18756 WIMBLEDON CIRCLE
18425 BITTERN AVENUE placeholder 18425 BITTERN AVENUE
-$25K (2025/12/08)
Active With Contract
House
$744,900
5 bds 2 ba 3,232 sqft
18425 BITTERN AVENUE

The multiple listing information is provided by the Stellar MLS from a copyrighted compilation of listings. The compilation of listings and each individual listing are ©2026-present Stellar MLS. All Rights Reserved. The information provided is for consumers' personal, noncommercial use and may not be used for any purpose other than to identify prospective properties consumers may be interested in purchasing. All properties are subject to prior sale or withdrawal. All information provided is deemed reliable but is not guaranteed accurate, and should be independently verified. Listing courtesy of: MIHARA & ASSOCIATES INC.