Contact
Tell us about your needs

2012 FERN RIDGE COURT

House For Sale
$500,000

BTC: 5.79038796

ETH: 170.88174983

22 days
4 bds
3 ba
2,768 sqft
Est. Estimated sales range: $0 - $0
$0

Overview

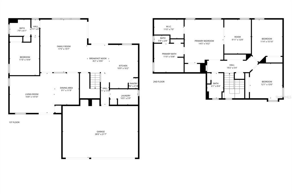
Located in the gated community of Key Vista, this well-maintained 4-bedroom, 3-bathroom home offers a 3-car garage, sits on a cul-de-sac, and occupies a desirable corner lot with a fully fenced backyard. Inside, you’ll find spacious living areas, a designated dining room, and a kitchen with wood cabinetry, granite countertops, and stainless steel appliances. The primary suite provides generous space with an adjoining bonus room ideal for a sitting area, nursery, or office, along with dual vanities and a walk-in shower. Additional features include an in-wall vacuum system, two utility sinks (one in the laundry room and one in the garage), an irrigation system, and a newer roof (2023). Residents of Key Vista enjoy resort-style amenities, including pools, hot tubs, clubhouses, Volleyball court, a fitness center, tennis and pickleball courts, several fishing lakes, and RV/boat parking. With no CDD required, this home offers comfort, convenience, and peace of mind. Just minutes from parks and nature trails.

Location

Facts and features

Type:
Residential
Parking:
No Data
Year Built:
2004
Lot:
0.19 Acres
Heating:
Central / Electric
Price/sqft:
$181
Cooling:
Central Air
HOA:
$154
All facts and features
  • Flooring

    • Carpet

    • Laminate

    • Tile

    Heating

    • Central

    • Electric

    Cooling

    • Central Air

    Appliances

    • Dishwasher

    • Microwave

    • Range

    • Refrigerator

    Other interior features

    • Ceiling Fan(s)

    • High Ceilings

    • Open Floorplan

    • PrimaryBedroom Upstairs

    • Stone Counters

    • Thermostat

    • Vaulted Ceiling(s)

    • Walk-In Closet(s)

    Bedrooms and bathrooms

    • Bedrooms: 4

    • Full bathrooms: 3

  • Property

    • Levels: Two

    • Exterior Features: Other / Private Mailbox / Private Yard / Sidewalk / Sliding Doors

    Lot

    • Lot: 0.19 Acres

    Other Property Information

    • Parcel Number: 2626150070000007090

    • Zoning: MPUD

  • Type and style

    • Property Type: Residential

    • Property Sub Type: Single Family Residence

  • Utility

    • BB/HS Internet Available

    • Electricity Connected

    • Sewer Connected

    • Water Connected

  • Other financial information

    • HOA: $154

    • HOA Frequency: Monthly

    • Annual tax amount: $8,138

  • Source details

    • MLS ID: TB8452629

    Other facts

    • Construction Materials: Block / Stucco

    • Foundation Details: Slab

    • Laundry Features: Inside / Laundry Room

    • Lot Features: Cul-De-Sac

    • Patio And Porch Features: Covered / Patio

    • Direction Faces: East

    • Other Structures: Shed(s)

    • Garage Spaces: 3

    • Attached Garage: Yes

    • Garage: Yes

    • Living Area: 2768

    • Water Source: Public

    • Subdivision Name: KEY VISTA PRCL 18

Similar Homes

1498 N BEND placeholder 1498 N BEND
2 days
For Sale
Lots/Land
$350,000
0 room(s)
1498 N BEND
656 SPRING LAKE CIRCLE placeholder 656 SPRING LAKE CIRCLE
2 days
For Sale
House
$375,000
3 bds 2 ba 1,590 sqft
656 SPRING LAKE CIRCLE
1512 N BEND DRIVE placeholder 1512 N BEND DRIVE
2 days
For Sale
Lots/Land
$350,000
0 room(s)
1512 N BEND DRIVE
1028 ORCA COURT placeholder 1028 ORCA COURT
6 days
For Sale
House
$350,000
3 bds 2 ba 1,740 sqft
1028 ORCA COURT
2810 RAVENDALE LANE placeholder 2810 RAVENDALE LANE
8 days
For Sale
House
$463,000
3 bds 2 ba 1,953 sqft
2810 RAVENDALE LANE
2749 BIG PINE DRIVE placeholder 2749 BIG PINE DRIVE
9 days
For Sale
House
$419,000
3 bds 2 ba 1,510 sqft
2749 BIG PINE DRIVE
1112 N FLORIDA AVENUE placeholder 1112 N FLORIDA AVENUE
13 days
For Sale
House
$625,000
4 bds 3 ba 2,444 sqft
1112 N FLORIDA AVENUE
2232 PARROT FISH DRIVE placeholder 2232 PARROT FISH DRIVE
14 days
For Sale
House
$354,900
3 bds 2 ba 1,745 sqft
2232 PARROT FISH DRIVE

The multiple listing information is provided by the Stellar MLS from a copyrighted compilation of listings. The compilation of listings and each individual listing are ©2025-present Stellar MLS. All Rights Reserved. The information provided is for consumers' personal, noncommercial use and may not be used for any purpose other than to identify prospective properties consumers may be interested in purchasing. All properties are subject to prior sale or withdrawal. All information provided is deemed reliable but is not guaranteed accurate, and should be independently verified. Listing courtesy of: PINEYWOODS REALTY LLC