Contact
Tell us about your needs

315 SWEET BAY AVENUE

House For Sale
$599,000

BTC: 8.89159777

ETH: 311.97916667

15 days
6 bds
3 ba
3,487 sqft
Est. Estimated sales range: $0 - $0
$0

Overview

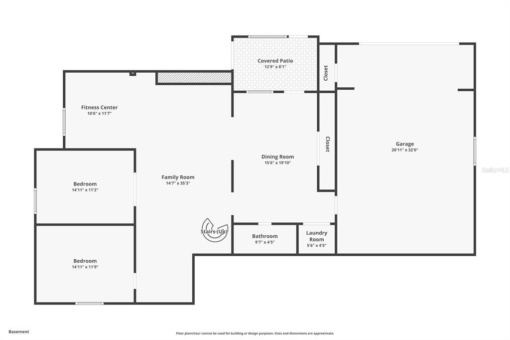
Welcome to 315 Sweet Bay Avenue, tucked inside one of New Smyrna Beach’s most sought-after golf and country club communities. This is more than a home—it’s a story of design, space, and lifestyle. From the moment you step inside, mid-century modern character unfolds through a multi-level floor plan, soaring ceilings, and exposed architectural beams that create volume, warmth, and unmistakable style. The open-concept living spaces are designed for entertaining, flowing seamlessly into a modern chef’s kitchen where form meets function. Rich wood flooring runs throughout, complemented by outdoor balconies and multiple gathering spaces, offering room for everyone to relax, connect, or retreat. The main level features four spacious bedrooms and two bathrooms, delivering effortless everyday living. Downstairs, the home reveals its most compelling surprise: a fully independent second living space complete with two additional bedrooms, a dining area, and a full bathroom. Whether used as a guest suite, private in-law quarters, rental opportunity, or the ultimate den for family, the flexibility here is exceptional. An oversized garage and dual driveways provide abundant parking—perfect for gatherings, toys, and everything coastal living brings. Residents have the option to join Sugar Mill Country Club, enjoying access to premier amenities including golf, tennis, a driving range, resort-style pool, and an inviting country club restaurant. All of this just 10 minutes from the beach and historic downtown New Smyrna Beach, and 20 minutes from Daytona Beach Airport. 315 Sweet Bay Avenue is timeless, flexible, and elevated—a home that adapts to your lifestyle and grows with your vision. This is mid-century modern living, reimagined for today.

Location

Facts and features

Type:
Residential
Parking:
No Data
Year Built:
1979
Lot:
0.26 Acres
Heating:
Central / Electric / Heat Pump
Price/sqft:
$172
Cooling:
Central Air
HOA:
$591
All facts and features
  • Flooring

    • Carpet

    • Hardwood

    Heating

    • Central

    • Electric

    • Heat Pump

    Cooling

    • Central Air

    Appliances

    • Dishwasher

    • Dryer

    • Electric Water Heater

    • Microwave

    • Range

    • Refrigerator

    • Washer

    Other interior features

    • Cathedral Ceiling(s)

    • Ceiling Fan(s)

    • High Ceilings

    Bedrooms and bathrooms

    • Bedrooms: 6

    • Full bathrooms: 3

  • Property

    • Levels: Two

    • Exterior Features: Irrigation System

    Lot

    • Lot: 0.26 Acres

    Other Property Information

    • Parcel Number: 734203000280

    • Zoning: 10R3

  • Type and style

    • Property Type: Residential

    • Property Sub Type: Single Family Residence

  • Utility

    • Electricity Connected

  • Other financial information

    • HOA: $591

    • HOA Frequency: Annually

    • Annual tax amount: $101

  • Source details

    • MLS ID: NS1086868

    Other facts

    • Construction Materials: HardiPlank Type

    • Foundation Details: Slab

    • Fireplace Features: Stone / Wood Burning

    • Laundry Features: Laundry Room

    • Direction Faces: North

    • Fireplace: Yes

    • Garage Spaces: 2

    • Attached Garage: Yes

    • Garage: Yes

    • Living Area: 3487

    • Water Source: Public

    • Subdivision Name: SUGAR MILL COUNTRY CLUB & ESTATES UNIT 02

Similar Homes

2576 SUNSET DRIVE placeholder 2576 SUNSET DRIVE
New
For Sale
House
$617,000
3 bds 1 ba 1,968 sqft
2576 SUNSET DRIVE
740 GRAPE IVY LANE placeholder 740 GRAPE IVY LANE
2 days
For Sale
House
$470,000
4 bds 2 ba 2,024 sqft
740 GRAPE IVY LANE
407 PALM DRIVE placeholder 407 PALM DRIVE
4 days
For Sale
House
$498,900
4 bds 2 ba 1,928 sqft
407 PALM DRIVE
2134 SWOOPE DRIVE placeholder 2134 SWOOPE DRIVE
-$19K (2026/01/03)
For Sale
House
$769,900
3 bds 3 ba 2,880 sqft
2134 SWOOPE DRIVE
712 S TIMBERLANE DRIVE placeholder 712 S TIMBERLANE DRIVE
-$5K (2026/01/06)
For Sale
House
$725,000
4 bds 3 ba 3,397 sqft
712 S TIMBERLANE DRIVE
116 OAKMONT LANE placeholder 116 OAKMONT LANE
24 days
For Sale
House
$525,000
4 bds 3 ba 3,564 sqft
116 OAKMONT LANE
831 JUNONIA BOULEVARD placeholder 831 JUNONIA BOULEVARD
29 days
For Sale
House
$645,789
5 bds 4 ba 3,191 sqft
831 JUNONIA BOULEVARD
664 JUNONIA BOULEVARD placeholder 664 JUNONIA BOULEVARD
30 days
For Sale
House
$753,248
4 bds 3 ba 3,221 sqft
664 JUNONIA BOULEVARD

The multiple listing information is provided by the Stellar MLS from a copyrighted compilation of listings. The compilation of listings and each individual listing are ©2026-present Stellar MLS. All Rights Reserved. The information provided is for consumers' personal, noncommercial use and may not be used for any purpose other than to identify prospective properties consumers may be interested in purchasing. All properties are subject to prior sale or withdrawal. All information provided is deemed reliable but is not guaranteed accurate, and should be independently verified. Listing courtesy of: THE HIGH TIDE GROUP