Contact
Tell us about your needs

45 W MARTIN LUTHER KING JR STREET UNIT 60

House For Sale
$75,000

BTC: 1.11330523

ETH: 39.06250000

15 days
3 bds
2 ba
1,800 sqft
Est. Estimated sales range: $0 - $0
$0

Overview

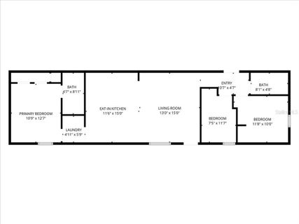
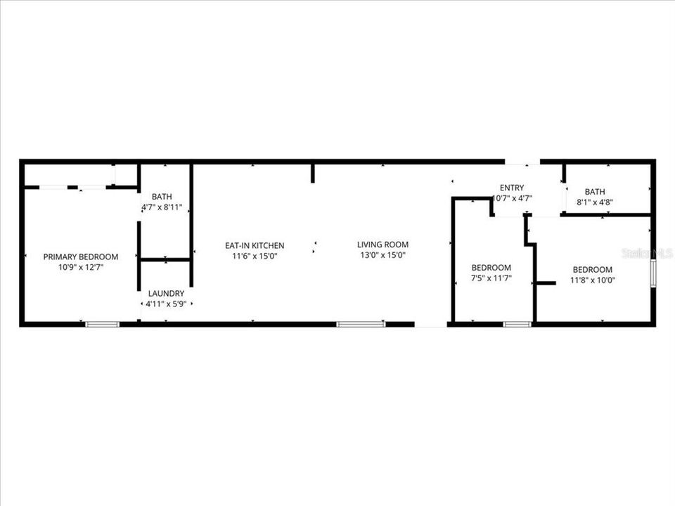
Welcome to the friendly Arcadia community of Park Place Estates—ideal for year-round living or a seasonal winter retreat. This 2023 mobile home, which can be relocated if desired, offers flexibility along with comfort. The spacious 3-bedroom, 2-bath home provides approximately 1,800 square feet of living space and is situated on a leased lot. Buyer approval is required. The 2026 lot rent is $784.00 per month, plus a monthly pass-through charge that varies and includes community electric, water, sewer, and community lawn care. No ad valorem taxes apply. The open-concept living area flows seamlessly into the kitchen and dining space, creating a comfortable and functional layout. The living room features ceiling fans, neutral finishes, and easy-care flooring throughout. The kitchen offers abundant wood cabinetry for ample storage, generous counter space, and includes a range and refrigerator. Recessed lighting and a practical design make this space well suited for everyday living, relaxing, or casual entertaining. The primary bedroom is nicely sized and located at one end of the home, featuring double-door closets and an attached full bathroom with a single-sink vanity and additional storage. The guest bedrooms are located at the opposite end of the home, providing privacy for visiting friends or family, and share a full bathroom. The laundry area, complete with a washer and dryer (2023), is conveniently located in the guest hallway. Additional features include a new A/C system and hot water heater (2023), a new roof (2023), gutters and downspouts, and a new 8x10 wood storage shed—offering added value and peace of mind. Centrally located about one hour north of Fort Myers and one hour east of Sarasota, Arcadia is a welcoming small town known for its rich history and relaxed lifestyle. The area features a historic downtown with antique shops, local restaurants, and specialty stores, along with a calendar of community events including the DeSoto County Fair and Watermelon Festival. Residents enjoy easy access to outdoor recreation at the Peace River, Morgan Park, and nearby Myakka River State Park. With convenient access to U.S. 17 and State Road 70, traveling throughout the region is simple while still enjoying the charm and slower pace of small-town living. **PLEASE ENJOY THE 3D INTERACTIVE VIRTUAL TOUR ASSOCIATED WITH THIS LISTING**

Location

Facts and features

Type:
Residential
Parking:
Driveway / Off Street
Year Built:
2023
Lot:
No Data
Heating:
Central
Price/sqft:
$42
Cooling:
Central Air
HOA:
No Data
All facts and features
  • Flooring

    • Linoleum

    Heating

    • Central

    Cooling

    • Central Air

    Appliances

    • Range

    • Range Hood

    • Refrigerator

    Other interior features

    • Ceiling Fan(s)

    • Crown Molding

    • Eating Space In Kitchen

    • High Ceilings

    • Living Room/Dining Room Combo

    • Open Floorplan

    • Solid Wood Cabinets

    Bedrooms and bathrooms

    • Bedrooms: 3

    • Full bathrooms: 2

  • Parking

    • Driveway

    • Off Street

    Property

    • Levels: One

    • Exterior Features: Lighting / Rain Gutters / Storage

    Other Property Information

    • Parcel Number: 3637240A0007800000

    • Zoning: MHP

  • Type and style

    • Property Type: Residential

    • Property Sub Type: Single Family Residence

  • Utility

    • BB/HS Internet Available

    • Cable Available

    • Cable Connected

    • Electricity Available

    • Electricity Connected

    • Public

    • Sewer Connected

    • Water Connected

  • Source details

    • MLS ID: C7519297

    Other facts

    • Construction Materials: Metal Frame / Metal Siding

    • Foundation Details: Crawlspace

    • Laundry Features: Electric Dryer Hookup / Inside / Washer Hookup

    • Direction Faces: South

    • Other Structures: Shed(s) / Storage

    • Living Area: 1800

    • Water Source: Public

    • Subdivision Name: ARCADIA ESTATES

Similar Homes

27 S MANATEE AVENUE placeholder 27 S MANATEE AVENUE
75 days
For Sale
Lots/Land
$59,000
0 room(s)
27 S MANATEE AVENUE
219 ALABAMA AVENUE placeholder 219 ALABAMA AVENUE
-$15K (2025/10/16)
For Sale
House
$85,000
3 bds 1 ba 1,242 sqft
219 ALABAMA AVENUE
1298 SE LAKE ROAD placeholder 1298 SE LAKE ROAD
-$3K (2025/07/31)
For Sale
$82,000
2 bds 2 ba 843 sqft
1298 SE LAKE ROAD
2350 SE RACKEWEG STREET placeholder 2350 SE RACKEWEG STREET
-$40K (2025/12/31)
For Sale
$59,900
2 bds 1 ba 728 sqft
2350 SE RACKEWEG STREET
1703 E OAK STREET UNIT 1735 placeholder 1703 E OAK STREET UNIT 1735
3886 days
For Sale
$60,000
0 room(s) 53,433 sqft
1703 E OAK STREET UNIT 1735

The multiple listing information is provided by the Stellar MLS from a copyrighted compilation of listings. The compilation of listings and each individual listing are ©2026-present Stellar MLS. All Rights Reserved. The information provided is for consumers' personal, noncommercial use and may not be used for any purpose other than to identify prospective properties consumers may be interested in purchasing. All properties are subject to prior sale or withdrawal. All information provided is deemed reliable but is not guaranteed accurate, and should be independently verified. Listing courtesy of: MARINA PARK REALTY LLC