Contact
Tell us about your needs

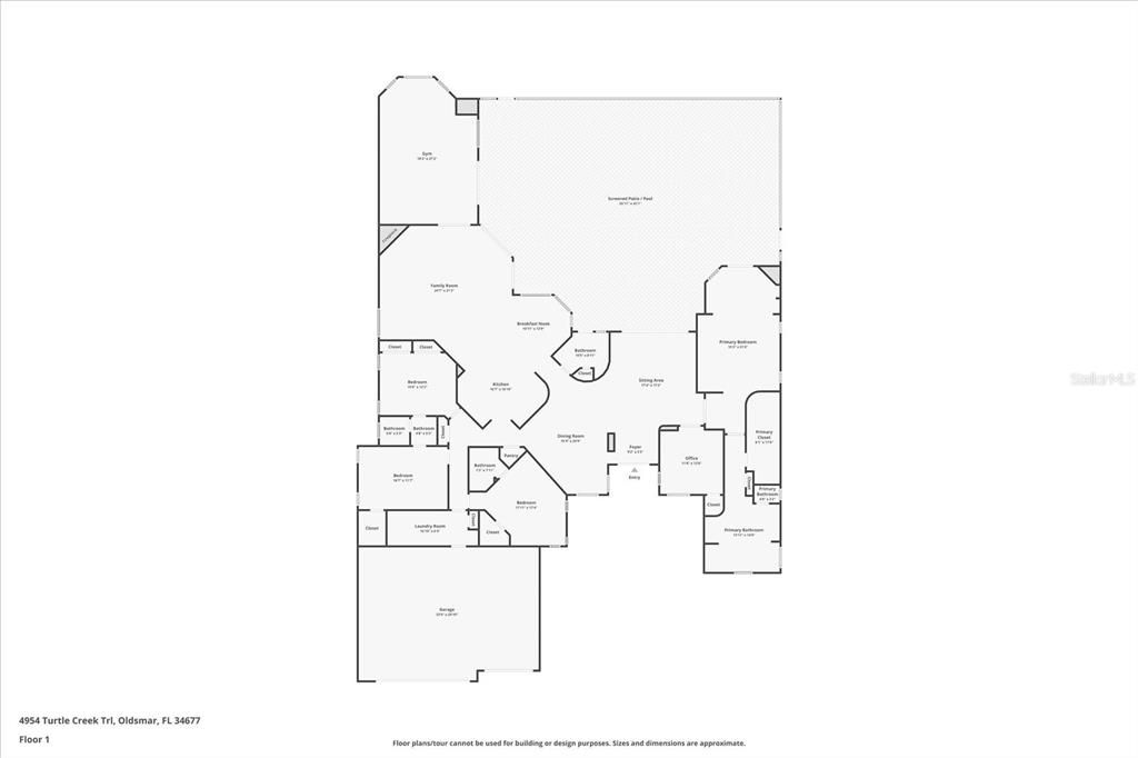
4954 TURTLE CREEK TRAIL

House For Sale
$1,389,000

BTC: 20.61841285

ETH: 723.43750000

-$36K (2026/01/06)
69 days
5 bds
4 ba
4,144 sqft
Est. Estimated sales range: $0 - $0
$0

Overview

Welcome to this exceptional Costanza custom-built home, perfectly situated on over one acre of private conservation land in the prestigious gated community of East Lake Woodlands. This residence beautifully combines luxury, privacy, and nature, offering the ideal Florida lifestyle. From the moment you enter through the leaded-glass double doors, you’ll be impressed by the soaring ceilings, open layout, and natural light that highlight the home’s thoughtful design and quality craftsmanship — and the stunning conservation and pool views will further impress you as you explore the living spaces designed to capture the beauty of the surroundings. The primary suite is a true retreat — privately positioned with peaceful views of the lush conservation area and pool, creating a serene backdrop to start and end each day. The spa-inspired bath is filled with natural light and features a massive walk-in shower, an elegant soaking tub, a private water closet, and two large vanities offering both space and style. Just outside the suite is the fifth bedroom, ideal for a home office or nursery. The three additional bedrooms are all generously sized — two share a Jack-and-Jill bath, and the fourth features its own ensuite. A fourth full bath conveniently serves both guests and the pool area. At the heart of the home is a spacious kitchen designed for both function and entertaining, featuring abundant cabinets, extensive counter space, and a large dining area overlooking the pool and lanai. The formal living and dining rooms offer elegant spaces for gatherings, while the huge family room provides a warm, inviting area for everyday living. An additional bonus room with direct access to the pool and lanai offers endless options—perfect as a billiard room, game room, or media room. Step outside to your screened lanai and enjoy the sparkling saltwater pool and spa, surrounded by tropical landscaping and sweeping conservation views that provide privacy and tranquility. Recent updates include a new pool pump, tile roof replaced in 2014, A/C systems installed in 2024, 2022, and 2016, and a five-year-old hot water heater. Additional highlights include a massive laundry room, abundant storage and closet space, and an oversized three-car garage with epoxy flooring. Residents have the option to join the East Lake Woodlands Country Club, offering an exceptional lifestyle with golf, tennis, pickleball, fitness, dining, and social activities—all within this vibrant gated community. Ideally located near top-rated schools, shopping, dining, and Florida’s award-winning beaches. This Costanza-built masterpiece on over one acre of conservation embodies comfort, sophistication, and effortless Florida living—a must-see opportunity.

Location

Facts and features

Type:
Residential
Parking:
No Data
Year Built:
1994
Lot:
1.09 Acres
Heating:
Central
Price/sqft:
$335
Cooling:
Central Air
HOA:
$2,170
All facts and features
  • Flooring

    • Carpet

    • Ceramic Tile

    • Hardwood

    Heating

    • Central

    Cooling

    • Central Air

    Appliances

    • Built-In Oven

    • Cooktop

    • Dishwasher

    • Disposal

    • Microwave

    • Refrigerator

    Other interior features

    • Ceiling Fan(s)

    • Eating Space In Kitchen

    • High Ceilings

    • Kitchen/Family Room Combo

    • Open Floorplan

    • Primary Bedroom Main Floor

    • Solid Wood Cabinets

    • Split Bedroom

    • Stone Counters

    • Tray Ceiling(s)

    • Walk-In Closet(s)

    • Wet Bar

    • Window Treatments

    Bedrooms and bathrooms

    • Bedrooms: 5

    • Full bathrooms: 4

  • Property

    • Levels: One

    • Pool Private: Yes

    • Exterior Features: Irrigation System / Lighting / Sliding Doors / Storage

    Lot

    • Lot: 1.09 Acres

    Other Property Information

    • Parcel Number: 032816926800000180

    • Zoning: RPD-2.5_1.0

  • Type and style

    • Property Type: Residential

    • Property Sub Type: Single Family Residence

  • Utility

    • Public

  • Other financial information

    • HOA: $2,170

    • HOA Frequency: Annually

    • Annual tax amount: $14,479

  • Source details

    • MLS ID: TB8443039

    Other facts

    • Construction Materials: Block / Stucco

    • Foundation Details: Slab

    • Fireplace Features: Family Room / Wood Burning

    • Laundry Features: Laundry Room

    • Pool Features: Gunite / Heated / Salt Water / Screen Enclosure

    • Direction Faces: Northeast

    • Fireplace: Yes

    • Garage Spaces: 3

    • Attached Garage: Yes

    • Garage: Yes

    • Living Area: 4144

    • Water Source: Public

    • Lot Size Dimensions: 117 x 163

    • Subdivision Name: TURTLE CREEK UNIT FOUR

Similar Homes

3716 JANUS WAY placeholder 3716 JANUS WAY
35 days
For Sale
House
$1,200,000
4 bds 4 ba 3,924 sqft
3716 JANUS WAY
2928 WATERS EDGE ROAD placeholder 2928 WATERS EDGE ROAD
54 days
For Sale
House
$1,149,000
4 bds 4 ba 3,541 sqft
2928 WATERS EDGE ROAD
2151 DIAMOND COURT placeholder 2151 DIAMOND COURT
-$75K (2025/12/19)
For Sale
House
$1,425,000
4 bds 3 ba 3,850 sqft
2151 DIAMOND COURT
3498 SHORELINE CIRCLE placeholder 3498 SHORELINE CIRCLE
84 days
For Sale
House
$1,299,000
5 bds 4 ba 4,437 sqft
3498 SHORELINE CIRCLE
1244 GREYBROOKE PLACE placeholder 1244 GREYBROOKE PLACE
-$50K (2025/11/06)
For Sale
House
$1,100,000
5 bds 3 ba 3,450 sqft
1244 GREYBROOKE PLACE
3550 JUSTIN DRIVE placeholder 3550 JUSTIN DRIVE
-$51K (2025/11/28)
For Sale
House
$1,049,000
5 bds 3 ba 3,223 sqft
3550 JUSTIN DRIVE
3472 SHORELINE CIRCLE placeholder 3472 SHORELINE CIRCLE
-$25K (2025/11/06)
For Sale
House
$1,075,000
4 bds 3 ba 3,617 sqft
3472 SHORELINE CIRCLE
85 KELLEYS TRAIL placeholder 85 KELLEYS TRAIL
141 days
For Sale
House
$1,150,000
5 bds 3 ba 3,390 sqft
85 KELLEYS TRAIL

The multiple listing information is provided by the Stellar MLS from a copyrighted compilation of listings. The compilation of listings and each individual listing are ©2026-present Stellar MLS. All Rights Reserved. The information provided is for consumers' personal, noncommercial use and may not be used for any purpose other than to identify prospective properties consumers may be interested in purchasing. All properties are subject to prior sale or withdrawal. All information provided is deemed reliable but is not guaranteed accurate, and should be independently verified. Listing courtesy of: KELLER WILLIAMS REALTY- PALM H