Contact
Tell us about your needs

7701 SE 170TH AVENUE ROAD

House For Sale
$699,000

BTC: 10.37600474

ETH: 364.06250000

-$100K (2025/11/19)
142 days
Waterfront
6 bds
4 ba
3,304 sqft
Est. Estimated sales range: $0 - $0
$0

Overview

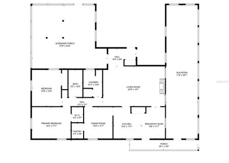
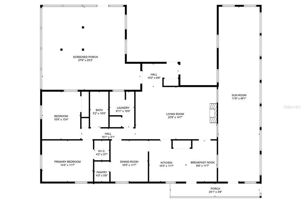
2 Homes on 10 acres of lakefront property. Elegance awaits on your privately gated Lake Bessiola estate on 10 ACRES of pristine lakefront, perfect for recreational opportunities such as fishing, kayaking, and other lake activities. Conveniently Located near The Villages, Lake Weir, and Ocala. Main residence offers 3 bedrooms, 2 baths with tranquil views to the lake. Primary Residence) -Custom Built in 2004 -3 bedrooms 2 baths, 1,896 sq feet -Each bedroom is oversized and can each fit a King size bed -Large screened in front porch -Bonus room on the back of the home (not included in sq ft) -All new stainless steel appliances, A/C 2013, ROOF 2012, Water softener 2019, Generac generator 2019 -Fireplace, wood floors throughout 2nd home- 3/2 Guest or in-law residence. Or even a potential income property! Manufactured Home built in 2017 -3 bedrooms 2 bathrooms. 1,408 sq ft -Large kitchen/living room combo with large kitchen island and open concept floorplan -Wood deck overlooking Lake Bessiola -Well/septic -Water softener 2019. -Inside laundry room. -Spacious master bedroom suite with walk in closet. (Other Structures and Features) -2 detached metal garages that will hold 3+ cars each -Covered area for grilling -Koi Pond -Private entrance from road with gate and fence. The list of upgrades or improvements just goes on and on! Property offers endless opportunities while enjoying the sunsets, wildlife and peaceful setting all on the privacy of your own property! Home is located in the Ocala National Forest which affords you almost a ½ million acres of Forest to roam, 600 lakes, 2 rivers, Juniper Springs, Silver Glen Springs, Salt Springs, Swimming, Skiing, Big BASS Fishing, Boating, Camping, Hiking, Horseback riding and some of the best ATV riding anywhere. Daytona Beach is just 1 hour away. True elegance awaits on your privately gated Lake Bessiola estate, let the fun begin! Every inch of this one-of-a-kind estate has been personally designed and landscaped with such a "homey" feeling to enjoy with your family for years to come. If you’re dreaming of waterfront living at its finest, look no further! This private estate is the ultimate dream!

Location

Facts and features

Type:
Residential
Parking:
Boat / Covered / Open / Oversized
Year Built:
2004
Lot:
10.00 Acres
Heating:
Central / Electric
Price/sqft:
$212
Cooling:
Central Air
HOA:
No Data
All facts and features
  • Flooring

    • Carpet

    • Luxury Vinyl

    • Tile

    Heating

    • Central

    • Electric

    Cooling

    • Central Air

    Appliances

    • Dishwasher

    • Disposal

    • Dryer

    • Microwave

    • Range

    • Refrigerator

    • Washer

    • Water Softener

    Other interior features

    • Built-in Features

    • Ceiling Fan(s)

    • Open Floorplan

    • Primary Bedroom Main Floor

    • Solid Wood Cabinets

    • Thermostat

    • Walk-In Closet(s)

    Bedrooms and bathrooms

    • Bedrooms: 6

    • Full bathrooms: 4

  • Parking

    • Boat

    • Covered

    • Open

    • Oversized

    Property

    • Levels: One

    • Exterior Features: Garden / Other / Private Mailbox / Rain Gutters / Storage

    Lot

    • Lot: 10.00 Acres

    Other Property Information

    • Parcel Number: 3953700300

    • Zoning: R1

  • Type and style

    • Property Type: Residential

    • Property Sub Type: Single Family Residence

  • Utility

    • Electricity Connected

    • Water Connected

  • Other financial information

    • Annual tax amount: $2,565

  • Source details

    • MLS ID: G5100869

    Other facts

    • Construction Materials: Cement Siding

    • Foundation Details: Slab

    • Fireplace Features: Family Room / Living Room / Stone

    • Laundry Features: Inside

    • Lot Features: Drainage Canal / Pasture / Private / Zoned for Horses

    • Patio And Porch Features: Covered / Enclosed / Front Porch / Screened

    • Direction Faces: North

    • Other Structures: Additional Single Family Home / Guest House / Shed(s) / Storage / Workshop

    • Waterfront: Yes

    • Fireplace: Yes

    • Water Body Name: LAKE BESSIOLA

    • Garage Spaces: 2

    • Attached Garage: Yes

    • Garage: Yes

    • Living Area: 3304

    • Water Source: Well

    • Lot Size Dimensions: 330 x 1320

    • Subdivision Name: N/A

Similar Homes

SE 74TH LANE ROAD UNIT 8-WEST placeholder SE 74TH LANE ROAD UNIT 8-WEST
-$62K (2024/12/23)
For Sale
Lots/Land
$561,150
0 room(s)
SE 74TH LANE ROAD UNIT 8-WEST

The multiple listing information is provided by the Stellar MLS from a copyrighted compilation of listings. The compilation of listings and each individual listing are ©2026-present Stellar MLS. All Rights Reserved. The information provided is for consumers' personal, noncommercial use and may not be used for any purpose other than to identify prospective properties consumers may be interested in purchasing. All properties are subject to prior sale or withdrawal. All information provided is deemed reliable but is not guaranteed accurate, and should be independently verified. Listing courtesy of: LPT REALTY, LLC