Contact
Tell us about your needs

814 W BRADDOCK STREET

House For Sale
$1,900,000

BTC: 63.33333333

ETH: 950.00000000

28 days
5 bds
4 ba
4,084 sqft
Est. Estimated sales range: $0 - $0
$0

Overview

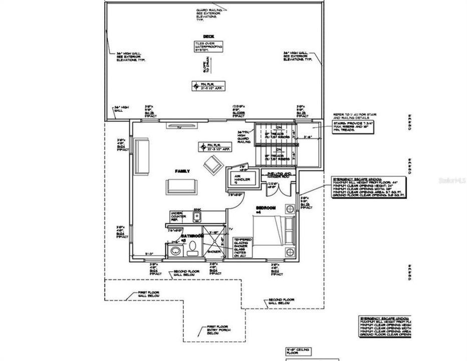
Under Construction. Welcome to this architecturally striking, three-level home constructed by Bay to Bay Group offering 4,084 square feet of thoughtfully designed living space. Upon entry, you’re greeted by a stunning archway above the foyer that opens to an expansive open-concept living area featuring a fireplace and a stylish dry bar — creating a warm and inviting atmosphere ideal for everyday living and social gatherings alike. The chef’s kitchen is truly an entertainer’s dream, showcasing an oversized island, stainless steel appliances, a custom walk in pantry and custom cabinetry throughout — beautifully curated to inspire gatherings of all kinds. Seamless access to the living, dining, and outdoor spaces makes this floor plan both functional and inviting. A half bathroom downstairs adds extra comfort and convenience for guests. Upstairs, you’ll find the impressive primary suite — a peaceful retreat filled with natural light, featuring a generous walk-in closet and a luxurious spa-inspired bath with dual shower entry and a soaking tub — the perfect place to unwind at the end of the day. The second level also includes two additional bedrooms, a guest bathroom, and a conveniently located laundry room for added functionality. The third level showcases a spacious bonus entertainment and family room complete with a full bathroom, a private bedroom, a custom built-in wet bar, and a massive balcony — the ideal space for entertaining guests or enjoying Tampa’s beautiful sunsets. The outdoor space is equally captivating, featuring an outdoor kitchen, pool, and a detached guest house with one bedroom, one full bathroom and a fully equipped kitchen — ideal for extended family, guests, or a private office. Nestled in the highly desirable Riverside Heights neighborhood, this residence offers the best of Tampa living — just minutes from Downtown Tampa, Armature Works, Michelin-starred restaurants, the Tampa Riverwalk, TGH, and Tampa International Airport

Location

Florida TAMPA 33603 House For Sale

Facts and features

Type:
Residential
Parking:
No Data
Year Built:
2025
Lot:
0.14 Acres
Heating:
Electric
Price/sqft:
$465
Cooling:
Central Air
HOA:
No Data
All facts and features
  • Flooring

    • Engineered Hardwood

    • Tile

    Heating

    • Electric

    Cooling

    • Central Air

    Appliances

    • Dishwasher

    • Disposal

    • Microwave

    • Range

    • Range Hood

    • Refrigerator

    • Wine Refrigerator

    Other interior features

    • Ceiling Fan(s)

    • Open Floorplan

    • PrimaryBedroom Upstairs

    • Stone Counters

    • Thermostat

    • Walk-In Closet(s)

    Bedrooms and bathrooms

    • Bedrooms: 5

    • Bathrooms: 1

    • Full bathrooms: 4

  • Property

    • Levels: Three Or More

    • Pool Private: Yes

    • Exterior Features: Balcony / Private Mailbox / Sliding Doors

    Lot

    • Lot: 0.14 Acres

    Other Property Information

    • Parcel Number: A1129184QE00001000008.0

    • Zoning: RS-50

  • Type and style

    • Property Type: Residential

    • Property Sub Type: Single Family Residence

  • Utility

    • Public

  • Other financial information

    • Annual tax amount: $2,943

  • Source details

    • MLS ID: TB8439696

    Other facts

    • Construction Materials: Block / Other / Wood Frame

    • Foundation Details: Slab

    • Fireplace Features: Electric

    • Laundry Features: Laundry Room

    • Pool Features: In Ground

    • Direction Faces: North

    • Fireplace: Yes

    • Garage Spaces: 2

    • Attached Garage: Yes

    • Garage: Yes

    • Living Area: 4084

    • Water Source: Public

    • Lot Size Dimensions: 50 x 120

    • Subdivision Name: SUBURB ROYAL

Similar Homes

3002 W PLATT UNIT 1 placeholder 3002 W PLATT UNIT 1
New
For Sale
Townhouse
$1,399,000
4 bds 3 ba 3,313 sqft
3002 W PLATT UNIT 1
3002 W PLATT UNIT 10 placeholder 3002 W PLATT UNIT 10
New
For Sale
Townhouse
$1,350,000
4 bds 3 ba 3,313 sqft
3002 W PLATT UNIT 10
449 S 12TH STREET UNIT 2602 placeholder 449 S 12TH STREET UNIT 2602
2 days
For Sale
Condo/Co-op
$2,395,000
3 bds 3 ba 2,985 sqft
449 S 12TH STREET UNIT 2602
708 W KENTUCKY AVENUE placeholder 708 W KENTUCKY AVENUE
6 days
For Sale
House
$1,800,000
4 bds 4 ba 3,298 sqft
708 W KENTUCKY AVENUE
706 W AMELIA AVENUE placeholder 706 W AMELIA AVENUE
12 days
For Sale
House
$1,950,000
5 bds 3 ba 3,741 sqft
706 W AMELIA AVENUE
2306 N MORGAN STREET placeholder 2306 N MORGAN STREET
15 days
For Sale
Multi-family
$1,600,000
47 bds 1,372 sqft
2306 N MORGAN STREET
106 S DELAWARE AVENUE placeholder 106 S DELAWARE AVENUE
-$200K (2025/12/01)
For Sale
Commercial
$2,295,000
0 room(s) 3,860 sqft
106 S DELAWARE AVENUE
371 CHANNELSIDE WALK WAY UNIT 1503 placeholder 371 CHANNELSIDE WALK WAY UNIT 1503
-$54K (2025/11/26)
For Sale
Condo/Co-op
$1,395,000
2 bds 2 ba 1,821 sqft
371 CHANNELSIDE WALK WAY UNIT 1503

The multiple listing information is provided by the Stellar MLS from a copyrighted compilation of listings. The compilation of listings and each individual listing are ©2025-present Stellar MLS. All Rights Reserved. The information provided is for consumers' personal, noncommercial use and may not be used for any purpose other than to identify prospective properties consumers may be interested in purchasing. All properties are subject to prior sale or withdrawal. All information provided is deemed reliable but is not guaranteed accurate, and should be independently verified. Listing courtesy of: KELLER WILLIAMS TAMPA CENTRAL