Contact
Tell us about your needs

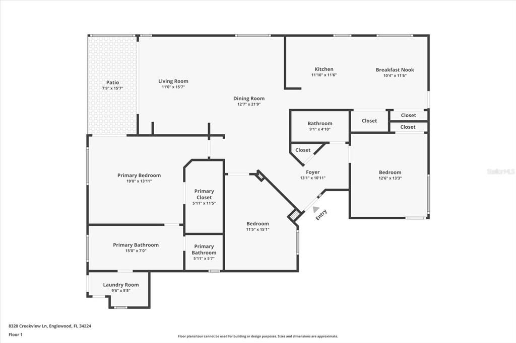
8320 CREEKVIEW LANE

House Active With Contract
$359,000

BTC: 5.23078851

ETH: 178.20356904

10 days
2 bds
2 ba
1,886 sqft
Est. Estimated sales range: $0 - $0
$0

Overview

Under contract-accepting backup offers. Nestled at the end of a peaceful cul-de-sac in OYSTER CREEK (one of Englewood’s most sought-after gated golf communities), this CHARMING 2 bed/2 bath home WITH a PRIVATE POOL AND a DEN/OFFICE space (can easily be used as a 3rd bedroom!) offers the PERFECT blend of comfort, convenience, and PRIVACY!! Designed for easy, everyday living & entertaining, this TURNKEY FURNISHED home greets you with a large foyer that leads to your large living and dining room spaces filled with vaulted ceilings and natural light! The heart of the home is an expansive dine-in kitchen, perfect for both casual meals and social gatherings. It features a central cooking island, a breakfast room ideal for family meals or morning coffee, a generous pantry for all your storage needs, and a discreet built-in office nook complete with desk and shelving—ideal for working from home or managing household tasks. In addition, the primary suite is a peaceful retreat with a large walk-in closet equipped with custom built-in shelves and an ensuite bathroom. The second bedroom and full bath provide comfort and privacy for guests! The spacious DEN/OFFICE with built-in bookshelves offers great flexibility and can easily be transformed into a 3rd bedroom. UPGRADES include tile throughout the home, 2021 NEW TILE ROOF, 2023 NEW POOL CAGE, 2022 NEW GARAGE DOOR, a spacious indoor laundry room, and 2-car garage with sliding screen! Spend your days out on your screened-in lanai enjoying your sparkling private pool surrounded by lush landscaping! It's the perfect setting to enjoy your morning coffee or to unwind at the end of the day! The home is built with storm safety in mind featuring hurricane-rated windows (installed in 2013) and accordion hurricane shutters on the sliders for added protection. Residents of Oyster Creek enjoy a vibrant and active community with LOW HOA FEES, access to a wide range of amenities including pickleball, tennis courts, a community pool, clubhouse with social events, and access to a private golf course where membership is optional! The community is gated with a guard on duty and beautifully landscaped. Whether you’re looking for a seasonal retreat, a full-time residence, or a low-maintenance home base with resort-style amenities, this home offers everything you need—and more. With thoughtful updates, quality furnishings, and a prime location in one of Englewood’s most desirable communities, this is a rare opportunity to own a slice of paradise. Location is key! This home is situated just minutes from Englewood's Historic Dearborn Street, where you'll find charming boutiques, delicious restaurants, weekly farmers markets, and local music festivals that highlight the vibrant culture of the area. Additionally, the beautiful beaches of Englewood Beach, Manasota Key, and Boca Grande are just a short drive away giving you endless opportunities for outdoor recreation, relaxation, and coastal fun. Don't miss out on this stunning home in a prime location—schedule your tour today and experience the perfect blend of comfort, style, and coastal living!!

Location

Facts and features

Type:
Residential
Parking:
Driveway / Garage Door Opener
Year Built:
1992
Lot:
0.25 Acres
Heating:
Central / Electric
Price/sqft:
$190
Cooling:
Central Air
HOA:
$335
All facts and features
  • Flooring

    • Tile

    Heating

    • Central

    • Electric

    Cooling

    • Central Air

    Appliances

    • Dishwasher

    • Dryer

    • Range

    • Refrigerator

    • Washer

    Other interior features

    • Cathedral Ceiling(s)

    • Ceiling Fan(s)

    • Eating Space In Kitchen

    • High Ceilings

    • Living Room/Dining Room Combo

    • Walk-In Closet(s)

    Bedrooms and bathrooms

    • Bedrooms: 2

    • Full bathrooms: 2

  • Parking

    • Driveway

    • Garage Door Opener

    Property

    • Levels: One

    • Pool Private: Yes

    • Exterior Features: Irrigation System / Lighting / Rain Gutters / Sliding Doors

    Lot

    • Lot: 0.25 Acres

    Other Property Information

    • Parcel Number: 412009204001

    • Zoning: PD

  • Type and style

    • Property Type: Residential

    • Property Sub Type: Single Family Residence

  • Utility

    • BB/HS Internet Available

    • Cable Available

    • Electricity Connected

    • Phone Available

    • Sewer Connected

    • Water Connected

  • Other financial information

    • HOA: $335

    • HOA Frequency: Monthly

    • Annual tax amount: $5,344

  • Source details

    • MLS ID: D6144812

    Other facts

    • Construction Materials: Block / Stucco

    • Foundation Details: Slab

    • Laundry Features: Laundry Room

    • Lot Features: Cul-De-Sac / Near Golf Course

    • Patio And Porch Features: Covered / Rear Porch / Screened

    • Pool Features: Heated / Screen Enclosure

    • Direction Faces: Northeast

    • Architectural Style: Florida

    • Garage Spaces: 2

    • Attached Garage: Yes

    • Garage: Yes

    • Living Area: 1886

    • Water Source: Public

    • Subdivision Name: OYSTER CREEK PH 01

Similar Homes

285 S OXFORD DRIVE placeholder 285 S OXFORD DRIVE
8 days
Active With Contract
House
$369,900
2 bds 1 ba 1,020 sqft
285 S OXFORD DRIVE
9264 ANITA AVENUE UNIT A & B placeholder 9264 ANITA AVENUE UNIT A & B
-$5K (2025/12/19)
Active With Contract
Multi-family
$304,900
4 bds 2,016 sqft
9264 ANITA AVENUE UNIT A & B
8087 SAINT KITTS CIRCLE placeholder 8087 SAINT KITTS CIRCLE
24 days
Active With Contract
House
$349,597
3 bds 3 ba 1,849 sqft
8087 SAINT KITTS CIRCLE
10512 EUSTON AVENUE placeholder 10512 EUSTON AVENUE
28 days
Active With Contract
House
$340,000
3 bds 2 ba 1,626 sqft
10512 EUSTON AVENUE
8074 SAINT KITTS CIRCLE placeholder 8074 SAINT KITTS CIRCLE
30 days
Active With Contract
House
$354,597
4 bds 3 ba 2,032 sqft
8074 SAINT KITTS CIRCLE
398 SUNSET ROAD N placeholder 398 SUNSET ROAD N
-$20K (2025/12/10)
Active With Contract
House
$379,000
4 bds 2 ba 1,923 sqft
398 SUNSET ROAD N
8662 SAINT KITTS CIRCLE placeholder 8662 SAINT KITTS CIRCLE
34 days
Active With Contract
House
$299,997
3 bds 2 ba 1,417 sqft
8662 SAINT KITTS CIRCLE
10059 BARKER AVENUE placeholder 10059 BARKER AVENUE
-$8K (2025/12/12)
Active With Contract
House
$308,990
3 bds 2 ba 1,550 sqft
10059 BARKER AVENUE

The multiple listing information is provided by the Stellar MLS from a copyrighted compilation of listings. The compilation of listings and each individual listing are ©2026-present Stellar MLS. All Rights Reserved. The information provided is for consumers' personal, noncommercial use and may not be used for any purpose other than to identify prospective properties consumers may be interested in purchasing. All properties are subject to prior sale or withdrawal. All information provided is deemed reliable but is not guaranteed accurate, and should be independently verified. Listing courtesy of: PARADISE EXCLUSIVE INC