Contact
Tell us about your needs

9806 SE 175TH STREET

House For Sale
$269,900

BTC: 4.15230769

ETH: 142.05263158

New
2 bds
2 ba
1,688 sqft
Est. Estimated sales range: $0 - $0
$0

Overview

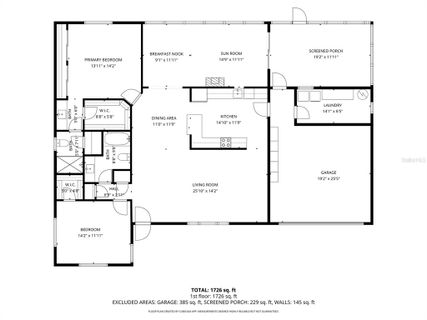
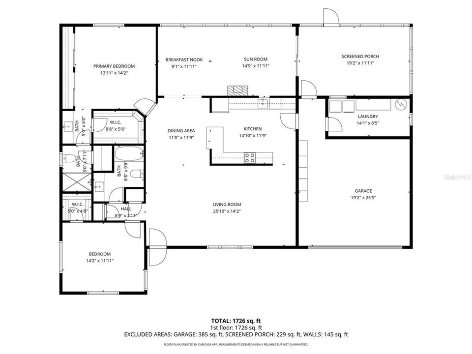
If you’re looking for a home with plenty of storage then you Don’t want to miss this 2/2 Palm model located in the desirable 55+ community, Spruce Creek South. As you enter the home from the covered front entry you will notice the vaulted ceilings and large living room and dining room combo with beautiful Italian porcelain tile. To the right of the dining room you will enter your nicely sized galley kitchen with an abundance of updated cabinets for all of your kitchen necessities and all with granite counter tops. The same cabinets and granite counter tops have also been carried through to both bathrooms, giving a cohesive touch. The kitchen leads to the oversized 20’x26’ two car garage which includes a separate laundry area equipped with brand new washer & dryer. The Florida room is right off the dining room & under heat and air with all glass windows and LVP flooring. At the end of the Florida room, you have a 12 x 20 screened lanai providing a great space to enjoy your morning coffee or grill your evening meal. The large master bedroom is very spacious with two built-in closets that also have separate overhead storage. The master bathroom has a walk-in closet and a separate area with the walk-in shower, toilet and another large linen closet. The guest bedroom & bathroom are in the front of the home which allows your guest plenty of privacy. The guest bedroom is spacious and has a walk-in closet. In the hallway leading to the guest room is another linen closet and to the right you will find a nice sized guest bath with a tub/shower combo. Spruce Creek South, 55+ Gated Golf Course Community just 2 miles north of The Villages. Close to doctors and shopping. Call me for your private showing today! Roof 2025; HVAC 2025; HWH 2025.

Location

Facts and features

Type:
Residential
Parking:
No Data
Year Built:
1995
Lot:
0.20 Acres
Heating:
Electric / Heat Pump
Price/sqft:
$160
Cooling:
Central Air
HOA:
$180
All facts and features
  • Flooring

    • Carpet

    • Ceramic Tile

    • Luxury Vinyl

    Heating

    • Electric

    • Heat Pump

    Cooling

    • Central Air

    Appliances

    • Dishwasher

    • Disposal

    • Dryer

    • Electric Water Heater

    • Microwave

    • Range

    • Refrigerator

    • Washer

    Other interior features

    • Ceiling Fan(s)

    • Living Room/Dining Room Combo

    • Stone Counters

    • Vaulted Ceiling(s)

    • Walk-In Closet(s)

    Bedrooms and bathrooms

    • Bedrooms: 2

    • Full bathrooms: 2

  • Property

    • Levels: One

    • Exterior Features: Irrigation System / Lighting / Private Mailbox / Rain Gutters

    Lot

    • Lot: 0.20 Acres

    Other Property Information

    • Parcel Number: 6012003021

    • Zoning: PUD

  • Type and style

    • Property Type: Residential

    • Property Sub Type: Single Family Residence

  • Utility

    • BB/HS Internet Available

    • Cable Available

    • Electricity Connected

    • Phone Available

    • Private

    • Public

    • Sewer Connected

    • Underground Utilities

    • Water Connected

  • Other financial information

    • HOA: $180

    • HOA Frequency: Monthly

    • Annual tax amount: $1,485

  • Source details

    • MLS ID: OM716011

    Other facts

    • Construction Materials: Vinyl Siding / Wood Frame

    • Foundation Details: Slab

    • Laundry Features: In Garage

    • Direction Faces: North

    • Garage Spaces: 2

    • Attached Garage: Yes

    • Garage: Yes

    • Living Area: 1688

    • Water Source: None

    • Lot Size Dimensions: 85 x 100

    • Subdivision Name: SPRUCE CRK SOUTH 12

Similar Homes

9375 SE 159TH PLACE placeholder 9375 SE 159TH PLACE
New
For Sale
House
$299,900
3 bds 2 ba 1,557 sqft
9375 SE 159TH PLACE
9309 SE HIGHWAY 42 placeholder 9309 SE HIGHWAY 42
1 days
For Sale
House
$284,450
3 bds 2 ba 1,468 sqft
9309 SE HIGHWAY 42
8528 SE 177TH BARTRAM LOOP placeholder 8528 SE 177TH BARTRAM LOOP
1 days
For Sale
House
$299,000
2 bds 2 ba 1,400 sqft
8528 SE 177TH BARTRAM LOOP
17716 SE 89TH MILFORD AVENUE placeholder 17716 SE 89TH MILFORD AVENUE
1 days
For Sale
House
$349,000
3 bds 2 ba 1,527 sqft
17716 SE 89TH MILFORD AVENUE
17554 SE 104TH CIRCLE placeholder 17554 SE 104TH CIRCLE
2 days
For Sale
House
$265,000
2 bds 2 ba 1,296 sqft
17554 SE 104TH CIRCLE
11268 SE 175TH LANE placeholder 11268 SE 175TH LANE
2 days
For Sale
House
$288,935
2 bds 2 ba 1,560 sqft
11268 SE 175TH LANE
3622 CAMBRIA CIRCLE placeholder 3622 CAMBRIA CIRCLE
2 days
For Sale
House
$275,000
2 bds 2 ba 1,156 sqft
3622 CAMBRIA CIRCLE
17973 SE 104TH TERRACE placeholder 17973 SE 104TH TERRACE
2 days
For Sale
House
$255,000
3 bds 2 ba 1,526 sqft
17973 SE 104TH TERRACE

The multiple listing information is provided by the Stellar MLS from a copyrighted compilation of listings. The compilation of listings and each individual listing are ©2026-present Stellar MLS. All Rights Reserved. The information provided is for consumers' personal, noncommercial use and may not be used for any purpose other than to identify prospective properties consumers may be interested in purchasing. All properties are subject to prior sale or withdrawal. All information provided is deemed reliable but is not guaranteed accurate, and should be independently verified. Listing courtesy of: DALTON WADE INC