Contact
Tell us about your needs

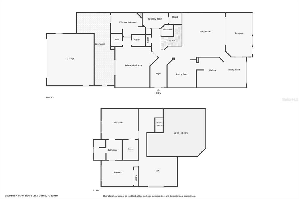
3800 BAL HARBOR BOULEVARD UNIT 212

Townhouse Active With Contract
$419,000

BTC: 4.60439560

ETH: 209.50000000

36 days
Waterfront
3 bds
2 ba
2,224 sqft
Est. Estimated sales range: $0 - $0
$0

Overview

Under contract-accepting backup offers. Welcome to refined coastal living in this beautifully appointed 3-bedroom, 2.5-bath condominium, offering over 2,200 square feet of elegant space and direct sailboat access with no bridges—an ideal setup for boating enthusiasts. This light-filled home features a private dock complete with water and electric hookups, perfect for launching your next adventure. Enjoy breathtaking canal views from nearly every room, with the back of the home showcasing expansive windows that bring the outside in. Relax in your enclosed Florida room or entertain guests in the private courtyard. Inside, you'll find a bright, open layout with tile flooring, some new carpeting, neutral colors (kitchen newly painted) and vaulted ceilings all highlighted by transom windows that flood the space with natural light. A tiered grand staircase leads to a spacious loft, 2 bedrooms with a shared bathroom and again an abundance of natural light with window views highlighting the canal in the back yard. The spacious main-floor includes an open foyer, a large dining room, a great room with vaulted ceilings, and the Florida room with beautiful views of the canal. This spacious home has a first floor primary suite with new carpet, a walk-in closet, a full bathroom en-suite that includes a separate soaking tub, all with direct access to the private courtyard. The kitchen is outfitted with contemporary cabinets, granite countertops and stainless steel appliances, as well as a RO filter conveniently located at the double stainless steel sink. Additional features include a private courtyard, an attached 2-car (oversized) garage, a separate laundry room, a powder room, a covered walkway to the front door, a dry bar in the Florida room, and additional cabinets for storage (or space for your hobbies) in the attached garage. Enjoy peace of mind with low-cost insurance and easy maintenance in a well-kept community (fully funded reserves). Located just minutes from downtown Punta Gorda, waterfront dining, and world-class boating, this deeded property offers everything you need for a relaxed and refined coastal lifestyle. Schedule a private tour today and keep chasing summer!

Location

Facts and features

Type:
Residential
Parking:
No Data
Year Built:
1994
Lot:
0.06 Acres
Heating:
Central
Price/sqft:
$188
Cooling:
Central Air
HOA:
$987
All facts and features
  • Flooring

    • Carpet

    • Tile

    Heating

    • Central

    Cooling

    • Central Air

    Appliances

    • Built-In Oven

    • Cooktop

    • Dishwasher

    • Refrigerator

    Other interior features

    • Ceiling Fan(s)

    • Eating Space In Kitchen

    • High Ceilings

    • Other

    • Primary Bedroom Main Floor

    • Walk-In Closet(s)

    Bedrooms and bathrooms

    • Bedrooms: 3

    • Bathrooms: 1

    • Full bathrooms: 2

  • Property

    • Levels: Two

    • Exterior Features: Lighting

    Lot

    • Lot: 0.06 Acres

    Other Property Information

    • Parcel Number: 412224577003

    • Zoning: GM-15

  • Type and style

    • Property Type: Residential

    • Property Sub Type: Townhouse

  • Utility

    • Cable Connected

    • Electricity Connected

    • Sewer Connected

    • Water Connected

  • Other financial information

    • HOA: $987

    • HOA Frequency: Monthly

    • Annual tax amount: $3,680

  • Source details

    • MLS ID: C7515288

    Other facts

    • Construction Materials: Stucco

    • Foundation Details: Slab

    • Laundry Features: Inside

    • Window Features: Window Treatments

    • Direction Faces: South

    • Waterfront: Yes

    • Garage Spaces: 2

    • Attached Garage: Yes

    • Garage: Yes

    • Living Area: 2224

    • Water Source: Public

    • Subdivision Name: HARBOR LADING PH 02 BLDG 02

Similar Homes

324 TARPON WAY placeholder 324 TARPON WAY
3 days
Active With Contract
House
$400,000
3 bds 2 ba 1,821 sqft
324 TARPON WAY
926 GENOA COURT placeholder 926 GENOA COURT
+$20K (2025/12/03)
Active With Contract
House
$495,000
3 bds 2 ba 2,123 sqft
926 GENOA COURT
808 SANTA MARGERITA LANE placeholder 808 SANTA MARGERITA LANE
4 days
Active With Contract
House
$499,000
3 bds 2 ba 1,790 sqft
808 SANTA MARGERITA LANE
711 BIMINI LANE placeholder 711 BIMINI LANE
6 days
Active With Contract
House
$479,000
3 bds 2 ba 2,401 sqft
711 BIMINI LANE
1624 COMPASS POINTE COURT UNIT 202 placeholder 1624 COMPASS POINTE COURT UNIT 202
23 days
Active With Contract
Condo/Co-op
$375,000
4 bds 3 ba 1,867 sqft
1624 COMPASS POINTE COURT UNIT 202
429 W ANN STREET placeholder 429 W ANN STREET
33 days
Active With Contract
House
$439,000
3 bds 3 ba 1,768 sqft
429 W ANN STREET
418 DURRANCE STREET placeholder 418 DURRANCE STREET
41 days
Active With Contract
Multi-family
$350,000
4 bds 2,016 sqft
418 DURRANCE STREET
1250 W MARION AVENUE UNIT 323 placeholder 1250 W MARION AVENUE UNIT 323
-$50K (2025/12/02)
Active With Contract
Condo/Co-op
$450,000
3 bds 2 ba 1,988 sqft
1250 W MARION AVENUE UNIT 323

The multiple listing information is provided by the Stellar MLS from a copyrighted compilation of listings. The compilation of listings and each individual listing are ©2025-present Stellar MLS. All Rights Reserved. The information provided is for consumers' personal, noncommercial use and may not be used for any purpose other than to identify prospective properties consumers may be interested in purchasing. All properties are subject to prior sale or withdrawal. All information provided is deemed reliable but is not guaranteed accurate, and should be independently verified. Listing courtesy of: COLDWELL BANKER REALTY