Contact
Tell us about your needs

3800 BAL HARBOR BOULEVARD UNIT 312

Townhouse For Sale
$425,000

BTC: 14.16666667

ETH: 212.50000000

39 days
Waterfront
3 bds
2 ba
2,224 sqft
Est. Estimated sales range: $0 - $0
$0

Overview

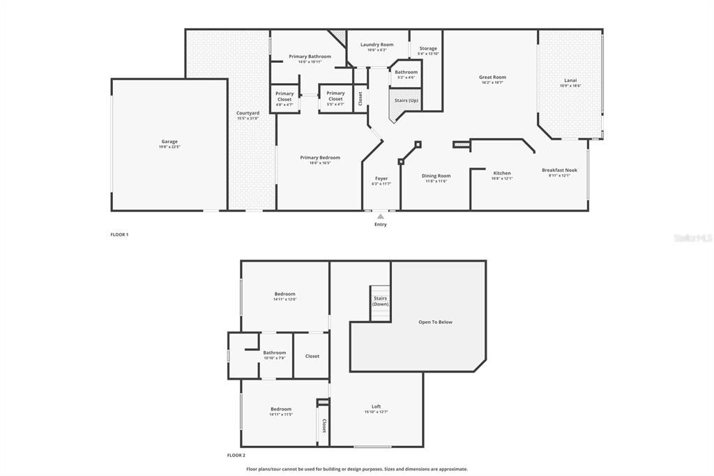
WATERFRONT TOWNHOME IN PGI W/DEEDED DOCK, SAIL ACCESS & ELECTRIC HURRICANE SHUTTERS - Discover this spacious, furnished, 3 bed/2.5 bath waterfront townhome in the desirable Harbor Landing community of Punta Gorda Isles. With deeded dockage offering sailboat access to Charlotte Harbor and beyond, a private 2-car garage, and electric hurricane shutters, this residence delivers both peace of mind and an exceptional boating lifestyle. Step inside to soaring two-story ceilings, a wall of natural light, and an open floor plan that includes a great room, formal dining area, and kitchen with an eat-in breakfast nook. Architectural details include decorative columns, plant shelves, and a loft overlooking the main living space. The kitchen is well-equipped with abundant cabinetry, an updated refrigerator, built-in pantry, under-cabinet lighting, and a corner appliance garage for easy storage. The first-floor master suite offers private access to the enclosed front courtyard, two walk-in closets, and a spacious bath with dual sinks, seated vanity, jetted tub, and corner shower. Nestled in the corner of the front courtyard is a hot tub. Upstairs, two guest bedrooms share a Jack-and-Jill bath, while the loft provides flexible space for a home office, media room, or gym. One guest bedroom includes a walk-in closet. Additional features include a large laundry room with adjacent storage and a screened lanai that steps directly out to your dock. Enjoy boating right from your backyard—water and electric hook-ups are available dockside. Complex amenities include a solar-heated community pool, while sidewalks across the street connect you to St. Andrews South Golf Club, the Isles Yacht Club, Fishermen’s Village, and Punta Gorda’s many waterfront parks. Punta Gorda is consistently ranked as one of Florida’s most desirable small towns, celebrated for its boating culture, lively arts and music scene, waterfront dining, and year-round festivals and farmers markets. Condo is being sold FURNISHED. Claim your spot in paradise today and start enjoying the best of Florida living.

Location

Facts and features

Type:
Residential
Parking:
Garage Door Opener
Year Built:
1994
Lot:
No Data
Heating:
Central / Electric
Price/sqft:
$191
Cooling:
Central Air
HOA:
$987
All facts and features
  • Flooring

    • Carpet

    • Linoleum

    • Tile

    Heating

    • Central

    • Electric

    Cooling

    • Central Air

    Appliances

    • Dishwasher

    • Disposal

    • Dryer

    • Electric Water Heater

    • Microwave

    • Range

    • Refrigerator

    • Washer

    Other interior features

    • Ceiling Fan(s)

    • High Ceilings

    • Open Floorplan

    • Primary Bedroom Main Floor

    • Walk-In Closet(s)

    Bedrooms and bathrooms

    • Bedrooms: 3

    • Bathrooms: 1

    • Full bathrooms: 2

  • Parking

    • Garage Door Opener

    Property

    • Levels: Two

    • Exterior Features: Hurricane Shutters / Sliding Doors

    Other Property Information

    • Parcel Number: 412224577009

    • Zoning: GM-15

  • Type and style

    • Property Type: Residential

    • Property Sub Type: Townhouse

  • Utility

    • BB/HS Internet Available

    • Cable Available

    • Electricity Connected

    • Phone Available

    • Sewer Connected

    • Water Connected

  • Other financial information

    • HOA: $987

    • HOA Frequency: Monthly

    • Annual tax amount: $3,717

  • Source details

    • MLS ID: C7515760

    Other facts

    • Construction Materials: Block / Stucco

    • Foundation Details: Stem Wall

    • Laundry Features: Inside / Laundry Room

    • Lot Features: FloodZone / City Lot / Near Golf Course

    • Patio And Porch Features: Enclosed / Rear Porch

    • Pool Features: Gunite / In Ground / Solar Cover / Solar Heat

    • Window Features: Blinds

    • Direction Faces: South

    • Architectural Style: Custom / Florida

    • Waterfront: Yes

    • Garage Spaces: 2

    • Garage: Yes

    • Living Area: 2224

    • Water Source: Public

    • Subdivision Name: HARBOR LANDING PH 03 BLDG 03

Similar Homes

1344 MEDITERRANEAN DRIVE UNIT 121 placeholder 1344 MEDITERRANEAN DRIVE UNIT 121
New
For Sale
Condo/Co-op
$479,000
3 bds 2 ba 2,034 sqft
1344 MEDITERRANEAN DRIVE UNIT 121
324 TARPON WAY placeholder 324 TARPON WAY
New
For Sale
House
$400,000
3 bds 2 ba 1,821 sqft
324 TARPON WAY
1600 W MARION AVENUE UNIT 234 placeholder 1600 W MARION AVENUE UNIT 234
1 days
For Sale
Condo/Co-op
$547,000
3 bds 2 ba 2,200 sqft
1600 W MARION AVENUE UNIT 234
2846 DON QUIXOTE DRIVE placeholder 2846 DON QUIXOTE DRIVE
1 days
For Sale
Lots/Land
$375,000
0 room(s)
2846 DON QUIXOTE DRIVE
739 MONACO DRIVE placeholder 739 MONACO DRIVE
2 days
For Sale
House
$529,000
3 bds 2 ba 2,319 sqft
739 MONACO DRIVE
3818 BORDEAUX DRIVE placeholder 3818 BORDEAUX DRIVE
4 days
For Sale
House
$460,000
3 bds 2 ba 2,459 sqft
3818 BORDEAUX DRIVE
290 LEWIS CIRCLE UNIT 121 placeholder 290 LEWIS CIRCLE UNIT 121
5 days
For Sale
Condo/Co-op
$365,000
3 bds 2 ba 1,872 sqft
290 LEWIS CIRCLE UNIT 121
3500 MONDOVI COURT UNIT 1012 placeholder 3500 MONDOVI COURT UNIT 1012
6 days
For Sale
House
$399,999
3 bds 2 ba 1,596 sqft
3500 MONDOVI COURT UNIT 1012

The multiple listing information is provided by the Stellar MLS from a copyrighted compilation of listings. The compilation of listings and each individual listing are ©2025-present Stellar MLS. All Rights Reserved. The information provided is for consumers' personal, noncommercial use and may not be used for any purpose other than to identify prospective properties consumers may be interested in purchasing. All properties are subject to prior sale or withdrawal. All information provided is deemed reliable but is not guaranteed accurate, and should be independently verified. Listing courtesy of: RE/MAX HARBOR REALTY