Contacto
Cuéntenos sobre sus necesidades

2030 SW 3rd Ave, Miami FL 33129

Multifamiliar En Venta
$8,500,000

BTC: 90.71504803

ETH: 2,786.88524590

174 días
0 room(s)
12,362 sqft
Est. Rango de ventas estimado: $0 - $0
$0

Visión general

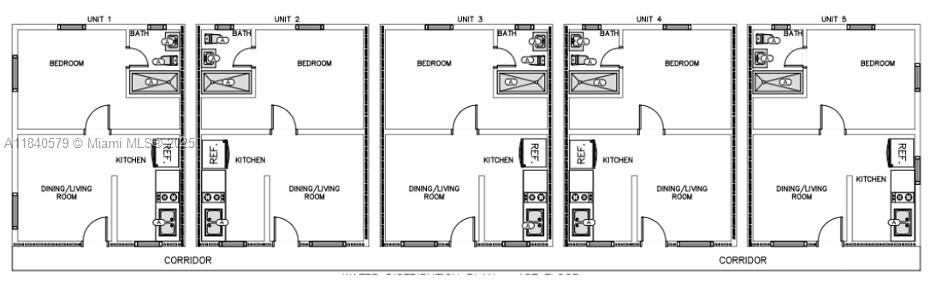
Fully renovated 20-unit multifamily in a high-demand Miami rental market. Each 1-bed/1-bath unit is being completely rebuilt with new roof, impact windows, kitchens, baths, and electrical. A true renovation—like new construction. Located minutes from Brickell and Coral Gables in a rapidly transitioning neighborhood with strong tenant demand and redevelopment upside. Turnkey investment with excellent long-term potential. Zoned T6-8-O—Miami’s highest density—ideal for future redevelopment. Contact listing owner for pro forma and OM.

Ubicación

Hechos y características

Tipo:
Residential Income
Estacionamiento:
Sin datos
Año de construcción:
1950
Lote:
Sin datos
Calefacción:
Window/Wall
precio por sq. medidor:
$688
Enfriamiento:
Wall/Window Unit(s)
HOA:
Sin datos
Más hechos y características
  • Piso

    • Tile

    Calefacción

    • Window/Wall

    Enfriamiento

    • Wall/Window Unit(s)

    Otras características interiores

    • Stairs

  • Otra Información de Propiedad

    • Número de Parcela: 01-41-38-001-1430

    • Zonificación: 6100

  • Tipo y estilo

    • Tipo de propiedad: Residential Income

    • Subtipo de propiedad: Quadruplex

  • Otra información financiera

    • Importe anual de impuestos: $59,155

  • Detalles de la fuente

    • MLS ID: A11840579

    Otros hechos

    • Materiales de construcción: CBS Construction

    • Características del lote: 1/4 To Less Than 1/2 Acre Lot

    • Salón: 12362

    • Fuente de agua: Municipal Water

    • Nombre de subdivisión: HOLLEMAN PARK

Casas similares

2655 S Bayshore Dr # 1602, Coconut Grove FL 33133 placeholder 2655 S Bayshore Dr # 1602, Coconut Grove FL 33133
Nuevo
En Venta
Condo / Coop
$6,390,000
3 camas 4 baños
2655 S Bayshore Dr # 1602, Coconut Grove FL 33133
858 NW 3rd St, Miami FL 33128 placeholder 858 NW 3rd St, Miami FL 33128
4 días
En Venta
Comercial
$7,140,000
0 room(s)
858 NW 3rd St, Miami FL 33128
300 Biscayne Boulevard Way # 1901, Miami FL 33131 placeholder 300 Biscayne Boulevard Way # 1901, Miami FL 33131
7 días
En Venta
Condo / Coop
$6,950,000
5 camas 5 baños 3,560 sqft
300 Biscayne Boulevard Way # 1901, Miami FL 33131
175 SE 25th Rd # 4201, Miami FL 33129 placeholder 175 SE 25th Rd # 4201, Miami FL 33129
8 días
En Venta
Condo / Coop
$10,800,000
5 camas 6 baños 4,725 sqft
175 SE 25th Rd # 4201, Miami FL 33129
300 Biscayne Boulevard Way # 3704C, Miami FL 33131 placeholder 300 Biscayne Boulevard Way # 3704C, Miami FL 33131
9 días
En Venta
Condo / Coop
$5,950,000
4 camas 5 baños 3,214 sqft
300 Biscayne Boulevard Way # 3704C, Miami FL 33131
200 Biscayne Boulevard Way # 5404, Miami FL 33131 placeholder 200 Biscayne Boulevard Way # 5404, Miami FL 33131
17 días
En Venta
Ático
$7,790,000
3 camas 5 baños 3,889 sqft
200 Biscayne Boulevard Way # 5404, Miami FL 33131
1616 Onaway Dr, Miami FL 33133 placeholder 1616 Onaway Dr, Miami FL 33133
21 días
En Venta
Casa
$9,950,000
8 camas 8 baños
1616 Onaway Dr, Miami FL 33133
1000 Biscayne Blvd # 3902, Miami FL 33132 placeholder 1000 Biscayne Blvd # 3902, Miami FL 33132
22 días
En Venta
Condo / Coop
$7,495,000
4 camas 5 baños 4,600 sqft
1000 Biscayne Blvd # 3902, Miami FL 33132

The multiple listing information is provided by the Miami Association of REALTORS® from a copyrighted compilation of listings. The compilation of listings and each individual listing are ©2026-present Miami Association of REALTORS®. All Rights Reserved. The information provided is for consumers' personal, noncommercial use and may not be used for any purpose other than to identify prospective properties consumers may be interested in purchasing. All properties are subject to prior sale or withdrawal. All information provided is deemed reliable but is not guaranteed accurate, and should be independently verified. Listing courtesy of: LoKation