Contacto
Cuéntenos sobre sus necesidades

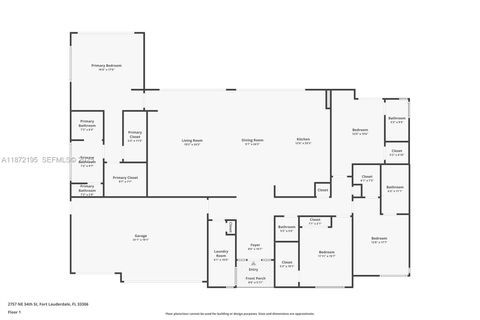
2757 NE 34th Street, Fort Lauderdale FL 33306

Casa En Venta
$3,690,000

BTC: 123.00000000

ETH: 1,845.00000000

69 días
4 camas
4 baños
3,140 sqft
Est. Rango de ventas estimado: $0 - $0
$0

Visión general

Discover a newly completed furnished custom estate in Coral Ridge Country Club Estates, masterfully designed for both elegance & ease of living. Soaring 12’ ceilings & walls of glass flood the home with natural light, while an 11’ Golden Belly quartz island anchors a chef’s kitchen with Miele Kitchen Suite appliances. Two 16’ sliding glass doors dissolve the boundary between indoors & outdoors, leading to a resort-style pool, jacuzzi, cabana bath & summer kitchen for al fresco dining. The spa-inspired primary suite features a wet room with soaking tub & shower, while three additional suites ensure privacy for guests. 3-car garage with lift potential & a total smart home system complete this rare opportunity to own a true modern masterpiece in one of Ft Lauderdale’s most prestigious neighborhoods.

Ubicación

Hechos y características

Tipo:
Residential
Estacionamiento:
Driveway / Guest
Año de construcción:
2025
Lote:
10002 Pies Cuadrados
Calefacción:
Central
precio por sq. medidor:
$1,175
Enfriamiento:
Central Air
HOA:
Sin datos
Más hechos y características
  • Piso

    • Tile

    Calefacción

    • Central

    Enfriamiento

    • Central Air

    Accesorios

    • Dishwasher

    • Disposal

    • Dryer

    • Refrigerator

    • Washer

    Otras características interiores

    • First Floor Entry

    • Den/Library/Office

    • Family Room

    • Great Room

    • Media Room

    • Utility Room/Laundry

    Dormitorios y baños

    • Dormitorios: 4

    • Baños: 1

    • Baños completos: 4

  • Estacionamiento

    • Driveway

    • Guest

    Propiedad

    • Características Exteriores: Barbeque / Built-In Grill

    Lote

    • Lote: 10002 Pies Cuadrados

    Otra Información de Propiedad

    • Número de Parcela: 494224030390

    • Zonificación: RS-4.4

  • Tipo y estilo

    • Tipo de propiedad: Residential

    • Subtipo de propiedad: Single Family Residence

  • Otra información financiera

    • Importe anual de impuestos: $15,956

  • Detalles de la fuente

    • MLS ID: A11872195

    Otros hechos

    • Materiales de construcción: Concrete Block Construction / CBS Construction

    • Características de lavandería: Utility Room/Laundry

    • Características del lote: Less Than 1/4 Acre Lot

    • Características del patio y el porche: Open Porch / Patio

    • Características de la piscina: In Ground

    • Características de la ventana: Clear Impact Glass / Complete Impact Glass

    • Caras de dirección: South

    • Estilo arquitectónico: Detached / One Story

    • Espacios de garaje: 3

    • Garaje adjunto: Si

    • Garaje: Si

    • Salón: 3140

    • Fuente de agua: Municipal Water

    • Nombre de subdivisión: CORAL RIDGE GALT ADD NO 3,CRCC Estates

Casas similares

2700 NE 18th St, Fort Lauderdale FL 33305 placeholder 2700 NE 18th St, Fort Lauderdale FL 33305
1 días
En Venta
Casa
$4,700,000
5 camas 5 baños 4,380 sqft
2700 NE 18th St, Fort Lauderdale FL 33305
2839 NE 35th St, Fort Lauderdale FL 33306 placeholder 2839 NE 35th St, Fort Lauderdale FL 33306
6 días
En Venta
Casa
$3,795,000
4 camas 3 baños 3,261 sqft
2839 NE 35th St, Fort Lauderdale FL 33306
637 NE 4th Ave, Fort Lauderdale FL 33304 placeholder 637 NE 4th Ave, Fort Lauderdale FL 33304
6 días
En Venta
Comercial
$3,990,000
0 room(s)
637 NE 4th Ave, Fort Lauderdale FL 33304
618 NE 17th Way, Fort Lauderdale FL 33304 placeholder 618 NE 17th Way, Fort Lauderdale FL 33304
7 días
En Venta
Casa
$3,195,000
4 camas 4 baños 3,804 sqft
618 NE 17th Way, Fort Lauderdale FL 33304
325 21st, Wilton Manors, FL 33305 placeholder 325 21st, Wilton Manors, FL 33305
18 días
En Venta
Casa
$4,200,000
4 camas 5 baños 3,918 sqft
325 21st, Wilton Manors, FL 33305
2409 12th, Fort Lauderdale, FL 33304 placeholder 2409 12th, Fort Lauderdale, FL 33304
27 días
En Venta
Casa
$3,265,000
5 camas 5 baños 4,182 sqft
2409 12th, Fort Lauderdale, FL 33304
3040 40th, Fort Lauderdale, FL 33308 placeholder 3040 40th, Fort Lauderdale, FL 33308
37 días
En Venta
Casa
$3,100,000
4 camas 3 baños 3,921 sqft
3040 40th, Fort Lauderdale, FL 33308
2200 N Ocean Blvd # S306, Fort Lauderdale FL 33305 placeholder 2200 N Ocean Blvd # S306, Fort Lauderdale FL 33305
49 días
En Venta
Condo / Coop
$3,900,000
3 camas 3 baños 2,635 sqft
2200 N Ocean Blvd # S306, Fort Lauderdale FL 33305

The multiple listing information is provided by the Miami Association of REALTORS® from a copyrighted compilation of listings. The compilation of listings and each individual listing are ©2025-present Miami Association of REALTORS®. All Rights Reserved. The information provided is for consumers' personal, noncommercial use and may not be used for any purpose other than to identify prospective properties consumers may be interested in purchasing. All properties are subject to prior sale or withdrawal. All information provided is deemed reliable but is not guaranteed accurate, and should be independently verified. Listing courtesy of: Douglas Elliman