特性
探索我们的清单
聯繫
告诉我们您的需求

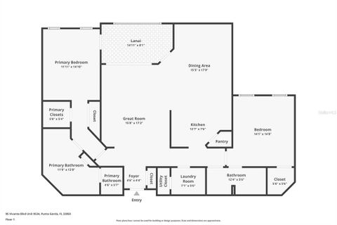
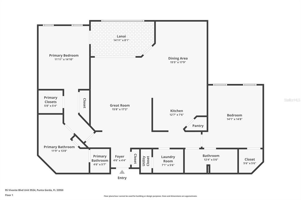
95 VIVANTE BOULEVARD UNIT 9534

公寓/合作社 最近售出
$215,000

BTC: 2.40912554

ETH: 107.50000000

发售日期: 2025-12-18
32 天
2 贝兹
2 浴室
1,485 平方英尺
Est. 预计销售范围: $0 - $0
$0

总览

HOA MONTHLY FEE REDUCED BY $500 IN AUGUST 2025. Building has all new PGT impact windows and sliders. Exterior has new paint, lanai railings and screening. Also, significant funds exist in reserve for future use. Just a 200-foot walk to all amenities. Only building 95 has ALL this! Unit comes with a private, two-car tandem garage under the building. The condo has an open floor plan w/tile flooring throughout, an updated kitchen & screened balcony/lanai. The kitchen offers quartz counters, wood cabinetry, breakfast bar, a recipe desk & walk-in closet pantry. The split bedroom design offers a spacious, master suite & separate guest suite. Master bedroom has private access to the screened lanai, two closets including an oversized walk-in & a spa-like master bath. The master bath offers a split vanity, dual sinks, corner tub & glass-enclosed, tile shower plus a private WC. The guest suite features a private bath & oversized walk-in closet. An en-suite laundry/utility room has full-sized washer & dryer. Unit is a short walk from the 12,000 sq ft clubhouse that features a fitness center, billiards room, sauna plus two, in-ground heated pools (an infinity edge & separate lap pool), heated spa & six tennis courts. Vivante boasts an active tennis community & social calendar plus an on-site spa, group classes & seasonal tennis pro. The Punta Gorda area also features a vibrant art & music scene. Claim your spot in paradise & take advantage of everything the area has to offer including boating, fishing, biking, tennis & golf. Make an appointment today!

位置

详情与特色

类型:
Residential
停车:
Garage Door Opener / Guest / Tandem / Under Building
建造年份:
2006
地段:
0.04 英亩
暖气:
Central / Electric
价格/平方英尺:
$152
冷气:
Central Air
HOA:
$1,384
更多事实和特点
  • 地板

    • Luxury Vinyl

    • Tile

    暖气

    • Central

    • Electric

    冷气

    • Central Air

    设备

    • Dishwasher

    • Disposal

    • Dryer

    • Electric Water Heater

    • Microwave

    • Range

    • Refrigerator

    • Washer

    其他室内特点

    • Ceiling Fan(s)

    • Open Floorplan

    • Split Bedroom

    • Walk-In Closet(s)

    卧室和浴室

    • 卧室: 2

    • 完整的浴室: 2

  • 停车

    • Garage Door Opener

    • Guest

    • Tandem

    • Under Building

    房屋

    • 等级: One

    • 外观特征: Hurricane Shutters / Sliding Doors

    地段

    • 地段: 0.04 英亩

    其他财产信息

    • 包裹编号: 412210879100

    • 分区: GM-15

  • 类型与风格

    • 财产种类: Residential

    • 属性子类型: Condominium

  • 公益

    • BB/HS Internet Available

    • Cable Available

    • Electricity Connected

    • Phone Available

    • Sewer Connected

    • Street Lights

    • Water Connected

  • 其他财政信息

    • HOA: $1,384

    • HOA频率: Monthly

    • 年税额: $2,772

  • 来源细节

    • MLS ID: C7516060

    其他详情

    • 建筑材料: Block / Stucco

    • 基金会详情: Slab

    • 洗衣功能: Inside / Laundry Room

    • 地段特征: FloodZone / City Lot

    • 天井和门廊特色: Screened

    • 泳池特色: Gunite / Heated / In Ground / Lap / Outside Bath Access

    • 窗户功能: Storm Window(s)

    • 方向面: Northeast

    • 建筑风格: Custom / Mediterranean

    • 车库空间: 1

    • 车库: 是

    • 生活区域: 1485

    • 水源: Public

    • 细分名称: BOCA LAGO/VIVANTE 04

类似房屋

5119 MELBOURNE STREET UNIT C-104 placeholder 5119 MELBOURNE STREET UNIT C-104
最近售出
公寓/合作社
$235,000
3 贝兹 2 浴室 1,831 平方英尺
5119 MELBOURNE STREET UNIT C-104
255 W END DRIVE UNIT 2211 placeholder 255 W END DRIVE UNIT 2211
最近售出
公寓/合作社
$255,000
2 贝兹 2 浴室 1,351 平方英尺
255 W END DRIVE UNIT 2211
283 COLDEWAY DRIVE UNIT E1 placeholder 283 COLDEWAY DRIVE UNIT E1
最近售出
公寓/合作社
$249,900
2 贝兹 2 浴室 1,111 平方英尺
283 COLDEWAY DRIVE UNIT E1
409 W ANN STREET placeholder 409 W ANN STREET
最近售出
$200,000
2 贝兹 1 浴室 1,206 平方英尺
409 W ANN STREET
2001 BAL HARBOR BOULEVARD UNIT 2312 placeholder 2001 BAL HARBOR BOULEVARD UNIT 2312
最近售出
公寓/合作社
$184,000
2 贝兹 2 浴室 1,351 平方英尺
2001 BAL HARBOR BOULEVARD UNIT 2312
2217 VIA VENETO DRIVE placeholder 2217 VIA VENETO DRIVE
最近售出
地段/土地
$225,000
0 room(s)
2217 VIA VENETO DRIVE
255 W END DRIVE UNIT 4402 placeholder 255 W END DRIVE UNIT 4402
最近售出
公寓/合作社
$265,000
2 贝兹 2 浴室 1,351 平方英尺
255 W END DRIVE UNIT 4402
2000 BAL HARBOR BOULEVARD UNIT 721 placeholder 2000 BAL HARBOR BOULEVARD UNIT 721
最近售出
公寓/合作社
$280,000
3 贝兹 2 浴室 1,517 平方英尺
2000 BAL HARBOR BOULEVARD UNIT 721

The multiple listing information is provided by the Stellar MLS from a copyrighted compilation of listings. The compilation of listings and each individual listing are ©2025-present Stellar MLS. All Rights Reserved. The information provided is for consumers' personal, noncommercial use and may not be used for any purpose other than to identify prospective properties consumers may be interested in purchasing. All properties are subject to prior sale or withdrawal. All information provided is deemed reliable but is not guaranteed accurate, and should be independently verified. Listing courtesy of: RE/MAX HARBOR REALTY