特性
探索我们的清单
聯繫
告诉我们您的需求

12484 CURRY DRIVE

房屋 待售
$238,000

BTC: 2.74035694

ETH: 119.00000000

3 贝兹
1 浴室
990 平方英尺
Est. 预计销售范围: $0 - $0
$0

总览

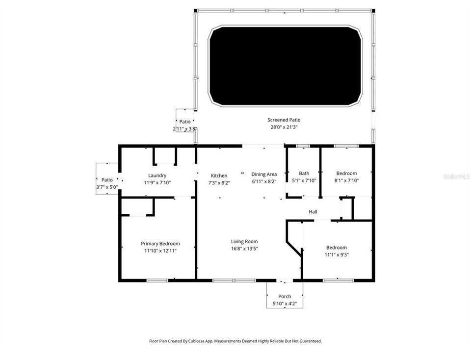
One or more photo(s) has been virtually staged. Charming POOL Home in a PRIME Spring Hill LOCATION! Welcome home to this inviting 3-bedroom, 1-bath pool home tucked away in the heart of Spring Hill. Whether you're running errands, meeting friends for dinner, or heading out for a day of fun, you'll love being just 10-15 minutes from Highway 598, shopping, dining, and local attractions. As you step inside, you're greeted by a BRIGHT, OPEN living space that flows effortlessly into the dining area and kitchen—perfect for cozy nights in or hosting friends and family. The SPLIT FLOOR PLAN offers a thoughtful layout, with the primary bedroom set apart for added privacy, two additional bedrooms, and the bathroom conveniently located down the hall. Walk outside and imagine your mornings or evenings in the SPACIOUS, FULLY FENCED BACKYARD, offering both privacy and peace of mind. The true showstopper is the SPARKLING POOL and covered lanai—an ideal spot to unwind, entertain, or cool off during sunny Florida afternoons. This home is full of charm and comfort, offering a relaxed lifestyle that truly captures the best of Florida living. Schedule your private showing today and see why this could be the perfect place to call home!

位置

佛罗里达 SPRING HILL 34609 房屋 待售

详情与特色

类型:
Residential
停车:
没有数据
建造年份:
1984
地段:
0.25 英亩
暖气:
Central / Electric
价格/平方英尺:
$240
冷气:
Central Air
HOA:
没有数据
更多事实和特点
  • 地板

    • Ceramic Tile

    • Laminate

    暖气

    • Central

    • Electric

    冷气

    • Central Air

    设备

    • Electric Water Heater

    • Exhaust Fan

    • Freezer

    • Range

    • Range Hood

    • Refrigerator

    其他室内特点

    • Ceiling Fan(s)

    • Open Floorplan

    • Split Bedroom

    • Thermostat

    • Window Treatments

    卧室和浴室

    • 卧室: 3

    • 完整的浴室: 1

  • 房屋

    • 等级: One

    • 私人泳池: 是

    • 外观特征: Private Yard / Sliding Doors

    地段

    • 地段: 0.25 英亩

    其他财产信息

    • 包裹编号: R3232317520013100070

    • 分区: PDP

  • 类型与风格

    • 财产种类: Residential

    • 属性子类型: Single Family Residence

  • 公益

    • BB/HS Internet Available

    • Cable Available

    • Electricity Connected

    • Fiber Optics

    • Street Lights

    • Water Connected

  • 其他财政信息

    • 年税额: $2,678

  • 来源细节

    • MLS ID: A4675791

    其他详情

    • 建筑材料: Block / Stucco

    • 基金会详情: Slab

    • 洗衣功能: Electric Dryer Hookup / Inside / Laundry Room / Washer Hookup

    • 泳池特色: In Ground / Screen Enclosure

    • 窗户功能: Shutters

    • 方向面: Northwest

    • 生活区域: 990

    • 水源: Public

    • 地块大小: 88 x 125

    • 细分名称: SPRING HILL

类似房屋

5505 OCEAN BREEZE DRIVE placeholder 5505 OCEAN BREEZE DRIVE
待售
房屋
$303,950
3 贝兹 2 浴室 1,512 平方英尺
5505 OCEAN BREEZE DRIVE
3250 AMBASSADOR AVENUE placeholder 3250 AMBASSADOR AVENUE
1 天
待售
房屋
$220,000
2 贝兹 2 浴室 846 平方英尺
3250 AMBASSADOR AVENUE
10290 ADLER STREET placeholder 10290 ADLER STREET
1 天
待售
房屋
$298,500
3 贝兹 2 浴室 1,585 平方英尺
10290 ADLER STREET
12424 PENTON STREET placeholder 12424 PENTON STREET
2 天
待售
房屋
$259,000
3 贝兹 2 浴室 1,539 平方英尺
12424 PENTON STREET
8532 SOUTHERN CHARM CIRCLE placeholder 8532 SOUTHERN CHARM CIRCLE
6 天
待售
房屋
$275,000
3 贝兹 2 浴室 1,724 平方英尺
8532 SOUTHERN CHARM CIRCLE
14040 BROOKRIDGE BOULEVARD placeholder 14040 BROOKRIDGE BOULEVARD
6 天
待售
$178,000
2 贝兹 2 浴室 1,300 平方英尺
14040 BROOKRIDGE BOULEVARD
5664 LEGEND HILLS LANE placeholder 5664 LEGEND HILLS LANE
8 天
待售
房屋
$300,000
3 贝兹 2 浴室 1,997 平方英尺
5664 LEGEND HILLS LANE
11641 MEMORIAL DRIVE placeholder 11641 MEMORIAL DRIVE
8 天
待售
房屋
$299,990
4 贝兹 2 浴室 1,665 平方英尺
11641 MEMORIAL DRIVE

The multiple listing information is provided by the Stellar MLS from a copyrighted compilation of listings. The compilation of listings and each individual listing are ©2025-present Stellar MLS. All Rights Reserved. The information provided is for consumers' personal, noncommercial use and may not be used for any purpose other than to identify prospective properties consumers may be interested in purchasing. All properties are subject to prior sale or withdrawal. All information provided is deemed reliable but is not guaranteed accurate, and should be independently verified. Listing courtesy of: 365 REALTY GROUP INC