特性
探索我们的清单
聯繫
告诉我们您的需求

12824 SETTLERS DRIVE

房屋 待售
$285,999

BTC: 9.53330000

ETH: 142.99950000

1 天
3 贝兹
2 浴室
1,732 平方英尺
Est. 预计销售范围: $0 - $0
$0

总览

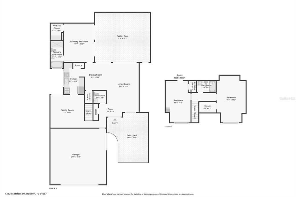
Charming Pool Home Just 3.5 Miles From Hudson Beach located in an X-Flood Zone, this beautifully maintained 3-bedroom, 2.5-bath single-family home is the perfect place to settle in and make your own. Even better come assume this incredible 4.5 interest rate! This home offers a wonderful blend of vintage character and modern upgrades. Recent improvements include new vinyl flooring, a remodeled primary bathroom with modern stylish tile floors, new staircase, and fresh interior paint throughout. Major updates are already complete with a NEW roof, NEW water heater, NEW gutters, NEW ceiling fans throughout and lanai, New Drywall ceiling in garage, New Garage door opener with remote access and keyless entry access. The pool pump is approximately 2 years old, giving peace of mind for years to come. As you step through the elegant double doors, you're greeted by a bright family and dining room combo with full views of the sparkling pool and spacious backyard. The home features a unique focal-point atrium, filling the interior with natural light and creating an inviting, open atmosphere. The conveniently located half bathroom sits near the entrance. The kitchen is positioned to the left and flows perfectly toward the sliding doors and outdoor space. The primary suite is on the first floor, offering privacy and comfort, complete with a beautifully remodeled bathroom featuring an elegant garden tub. Upstairs, you’ll find two generously sized bedrooms and a full bathroom showcasing charming vintage tile. The bedroom to the left includes an air handler inside the closet, yet still offers plenty of space to add an armoire or wardrobe if desired. With so many upgrades already completed, there’s still room for your personal touches and creativity. This home truly offers the perfect balance of style, comfort, and potential. Come schedule a private tour because this is a RARE FIND.

位置

佛罗里达 HUDSON 34667 房屋 待售

详情与特色

类型:
Residential
停车:
Driveway
建造年份:
1976
地段:
0.07 英亩
暖气:
Central
价格/平方英尺:
$165
冷气:
Central Air
HOA:
$28
更多事实和特点
  • 地板

    • Luxury Vinyl

    暖气

    • Central

    冷气

    • Central Air

    设备

    • Cooktop

    • Dishwasher

    • Disposal

    • Microwave

    • Refrigerator

    其他室内特点

    • Ceiling Fan(s)

    • High Ceilings

    • Primary Bedroom Main Floor

    • Walk-In Closet(s)

    卧室和浴室

    • 卧室: 3

    • 洗手间: 1

    • 完整的浴室: 2

  • 停车

    • Driveway

    房屋

    • 等级: Two

    • 私人泳池: 是

    • 外观特征: Courtyard / Rain Gutters / Sliding Doors

    地段

    • 地段: 0.07 英亩

    其他财产信息

    • 包裹编号: 162503051K00005700

    • 分区: PUD

  • 类型与风格

    • 财产种类: Residential

    • 属性子类型: Single Family Residence

  • 公益

    • Cable Available

    • Electricity Available

  • 其他财政信息

    • HOA: $28

    • HOA频率: Monthly

    • 年税额: $2,263

  • 来源细节

    • MLS ID: TB8453063

    其他详情

    • 建筑材料: Block / Stucco

    • 基金会详情: Slab

    • 洗衣功能: In Garage

    • 地段特征: Landscaped

    • 天井和门廊特色: Front Porch / Patio

    • 泳池特色: Auto Cleaner / In Ground / Screen Enclosure

    • 方向面: West

    • 车库空间: 1

    • 附属车库: 是

    • 车库: 是

    • 生活区域: 1732

    • 水源: Public

    • 细分名称: BEACON WOODS VILLAGE

类似房屋

7705 BIRCHWOOD DRIVE placeholder 7705 BIRCHWOOD DRIVE
待售
房屋
$259,000
2 贝兹 2 浴室 1,064 平方英尺
7705 BIRCHWOOD DRIVE
11623 ALPINE PARKWAY placeholder 11623 ALPINE PARKWAY
待售
房屋
$239,900
3 贝兹 1 浴室 1,128 平方英尺
11623 ALPINE PARKWAY
8613 STONEHEDGE WAY placeholder 8613 STONEHEDGE WAY
1 天
待售
房屋
$250,000
2 贝兹 2 浴室 1,615 平方英尺
8613 STONEHEDGE WAY
12303 FIELDSTONE LANE placeholder 12303 FIELDSTONE LANE
1 天
待售
房屋
$225,000
2 贝兹 2 浴室 1,519 平方英尺
12303 FIELDSTONE LANE
13004 SPICEBOX WAY placeholder 13004 SPICEBOX WAY
1 天
待售
房屋
$249,000
2 贝兹 1 浴室 1,068 平方英尺
13004 SPICEBOX WAY
10218 BARNETT LOOP placeholder 10218 BARNETT LOOP
2 天
待售
房屋
$340,000
3 贝兹 2 浴室 1,754 平方英尺
10218 BARNETT LOOP
13820 MELANIE AVENUE placeholder 13820 MELANIE AVENUE
2 天
待售
房屋
$285,000
2 贝兹 2 浴室 1,271 平方英尺
13820 MELANIE AVENUE
9043 TOURNAMENT DRIVE placeholder 9043 TOURNAMENT DRIVE
3 天
待售
房屋
$290,000
3 贝兹 2 浴室 1,438 平方英尺
9043 TOURNAMENT DRIVE

The multiple listing information is provided by the Stellar MLS from a copyrighted compilation of listings. The compilation of listings and each individual listing are ©2025-present Stellar MLS. All Rights Reserved. The information provided is for consumers' personal, noncommercial use and may not be used for any purpose other than to identify prospective properties consumers may be interested in purchasing. All properties are subject to prior sale or withdrawal. All information provided is deemed reliable but is not guaranteed accurate, and should be independently verified. Listing courtesy of: LPT REALTY, LLC