特性
探索我们的清单
聯繫
告诉我们您的需求

14707 CANOPY DRIVE

房屋 合同活跃
$1,349,000

BTC: 19.27142857

ETH: 656.44768856

29 天
5 贝兹
3 浴室
3,689 平方英尺
Est. 预计销售范围: $0 - $0
$0

总览

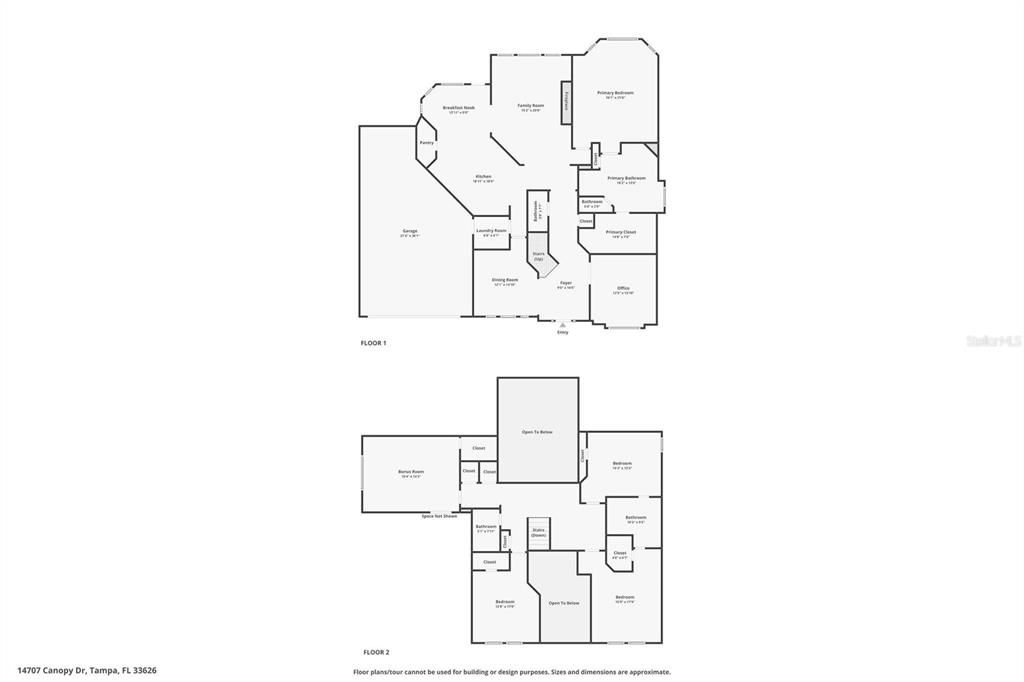
Under contract-accepting backup offers. Stunning 5-bedroom, 3.5-bathroom pool home in the highly sought-after Highland Park community. This beautifully updated residence offers a very spacious and open floorplan, newly painted interior and exterior, new luxury vinyl flooring, a new downstairs AC, and a new roof installed in November 2021. The expansive chef’s kitchen features quartz countertops, 42-inch cabinetry, stainless steel appliances, a gas cooktop, a large center island, and a walk-in pantry, all overlooking the bright and open family room complete with a custom-built fireplace and elegant woodwork. The first-floor primary suite offers tranquil views of the pool and conservation area, along with a fully updated master bathroom featuring a walk-in shower, jetted garden tub, dual granite vanities, and a huge walk-in closet. Upstairs you will find four additional full bedrooms and two bathrooms, providing ample space for family and guests. The backyard features a beautifully refinished pool and spa and a sprawling, fully fenced yard overlooking peaceful conservation—perfect for entertaining and enjoying Florida living. Highland Park offers exceptional resort-style amenities including a lakeside clubhouse, a stunning pool overlooking Galt Lake, a renovated fitness center, playground, Atlas Pizza, a neighborhood wine and beer bar, and a variety of community events throughout the year. Ideally located just minutes from shopping, dining, the Ed Radice Sports soccer and baseball complex, Tampa International Airport, Downtown Tampa, and Florida’s award-winning Gulf beaches, this home truly combines luxury, comfort, and convenience in one of Tampa’s most desirable communities.

位置

佛罗里达 TAMPA 33626 房屋 合同活跃

详情与特色

类型:
Residential
停车:
没有数据
建造年份:
2006
地段:
0.21 英亩
暖气:
Central
价格/平方英尺:
$366
冷气:
Central Air
HOA:
$109
更多事实和特点
  • 地板

    • Vinyl

    暖气

    • Central

    冷气

    • Central Air

    设备

    • Built-In Oven

    • Cooktop

    • Dishwasher

    • Disposal

    • Range Hood

    • Refrigerator

    其他室内特点

    • Ceiling Fan(s)

    • Thermostat

    • Walk-In Closet(s)

    卧室和浴室

    • 卧室: 5

    • 洗手间: 1

    • 完整的浴室: 3

  • 房屋

    • 等级: Two

    • 私人泳池: 是

    • 外观特征: Garden

    地段

    • 地段: 0.21 英亩

    其他财产信息

    • 包裹编号: U04281770K00000500003.0

    • 分区: PD

  • 类型与风格

    • 财产种类: Residential

    • 属性子类型: Single Family Residence

  • 公益

    • BB/HS Internet Available

  • 其他财政信息

    • HOA: $109

    • HOA频率: Monthly

    • 年税额: $9,639

  • 来源细节

    • MLS ID: TB8447346

    其他详情

    • 建筑材料: Stucco

    • 基金会详情: Block

    • 壁炉功能: Electric

    • 洗衣功能: Inside

    • 泳池特色: In Ground

    • 方向面: South

    • 壁炉: 是

    • 车库空间: 3

    • 附属车库: 是

    • 车库: 是

    • 生活区域: 3689

    • 水源: Public

    • 地块大小: 70 x 130

    • 细分名称: HIGHLAND PARK PH 1

类似房屋

16715 EAGLE OAK DRIVE placeholder 16715 EAGLE OAK DRIVE
-$23K (2025/12/16)
合同活跃
房屋
$974,900
4 贝兹 3 浴室 3,085 平方英尺
16715 EAGLE OAK DRIVE
12514 EAGLES ENTRY DRIVE placeholder 12514 EAGLES ENTRY DRIVE
57 天
合同活跃
房屋
$965,000
4 贝兹 3 浴室 3,271 平方英尺
12514 EAGLES ENTRY DRIVE
12029 BREWSTER DRIVE placeholder 12029 BREWSTER DRIVE
-$55K (2025/10/10)
合同活跃
房屋
$1,195,000
3 贝兹 3 浴室 3,214 平方英尺
12029 BREWSTER DRIVE
16240 ALPHA GROVE PLACE placeholder 16240 ALPHA GROVE PLACE
+$9K (2025/01/19)
合同活跃
房屋
$1,041,348
5 贝兹 4 浴室 3,461 平方英尺
16240 ALPHA GROVE PLACE
11172 MANOR HOUSE LANE placeholder 11172 MANOR HOUSE LANE
-$901 (2025/01/21)
合同活跃
房屋
$1,122,328
4 贝兹 3 浴室 3,221 平方英尺
11172 MANOR HOUSE LANE
14677 CANOPY DRIVE placeholder 14677 CANOPY DRIVE
-$65K (2025/10/27)
合同活跃
房屋
$1,230,000
4 贝兹 3 浴室 3,472 平方英尺
14677 CANOPY DRIVE
9401 GREENPOINTE DRIVE placeholder 9401 GREENPOINTE DRIVE
-$200K (2025/12/15)
合同活跃
房屋
$999,990
5 贝兹 5 浴室 3,720 平方英尺
9401 GREENPOINTE DRIVE
16227 ALPHA GROVE PLACE placeholder 16227 ALPHA GROVE PLACE
-$67K (2025/03/13)
合同活跃
房屋
$1,174,332
5 贝兹 4 浴室 3,835 平方英尺
16227 ALPHA GROVE PLACE

The multiple listing information is provided by the Stellar MLS from a copyrighted compilation of listings. The compilation of listings and each individual listing are ©2026-present Stellar MLS. All Rights Reserved. The information provided is for consumers' personal, noncommercial use and may not be used for any purpose other than to identify prospective properties consumers may be interested in purchasing. All properties are subject to prior sale or withdrawal. All information provided is deemed reliable but is not guaranteed accurate, and should be independently verified. Listing courtesy of: CHARLES RUTENBERG REALTY INC