特性
探索我们的清单
聯繫
告诉我们您的需求

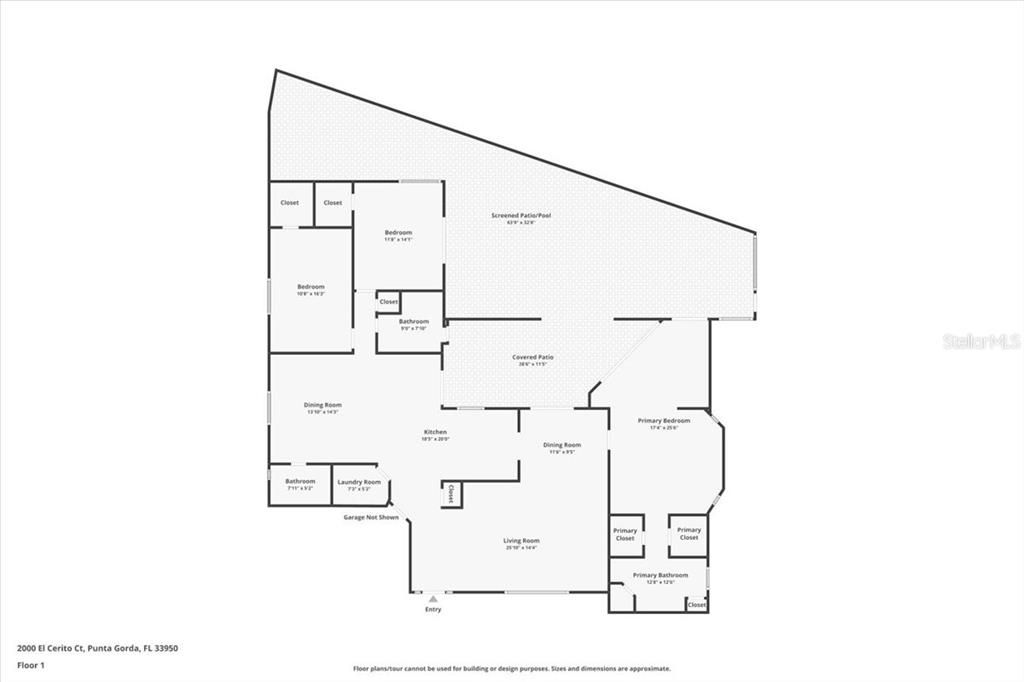
2000 EL CERITO COURT

房屋 待售
$649,000

BTC: 7.47265400

ETH: 324.50000000

1 天
滨水区
3 贝兹
3 浴室
2,177 平方英尺
Est. 预计销售范围: $0 - $0
$0

总览

Waterfront Pool Home in Punta Gorda Isles! Nestled on a spacious tip lot at the end of a quiet cul-de-sac, this nicely maintained single-family residence offers 2,177 square feet of thoughtfully designed living space, ideal for both everyday living and entertaining. Built in 1986, the home features three bedrooms, three bathrooms, and a comfortable family room that enhances the open and inviting layout. Exceptional curb appeal welcomes you with lush landscaping, a covered front entryway, a new 2024 cement tile roof, and an attached two-car garage. Boating enthusiasts will appreciate the impressive 159 feet of waterfront, complete with a city-maintained concrete seawall, a newer 42-foot concrete dock with pilings, dockside water and electric hook-ups, and a 20,000-lb boat lift. Enjoy quick and easy access to open water—reaching Charlotte Harbor and the Gulf of Mexico in 15 minutes or less—making this home a true boater’s paradise. Inside, the bright and open floor plan showcases an L-shaped formal living and dining room, along with a separate family room, both highlighted by soaring cathedral ceilings. Architectural details include gleaming Pergo and tile flooring, skylights, modern baths, and abundant natural light throughout. The gourmet kitchen is well appointed with granite countertops, wood cabinetry, a mosaic tile backsplash, and updated appliances. Additional features include a breakfast bar with pendant lighting, a closet pantry, and a convenient pass-through window to the lanai, ideal for seamless indoor-outdoor entertaining. The spacious primary suite offers a private reading nook or office and direct access to the lanai, where tranquil pool and canal views await. The en-suite bath features dual sinks, two walk-in closets, and a glass-enclosed tiled shower. A desirable split-bedroom floor plan provides generously sized guest bedrooms, each with walk-in closets and ample storage. One guest bath conveniently doubles as a pool bath with direct lanai access. Step outside to your own private oasis, where a covered lanai with ceiling fans offers year-round comfort. Brick paver flooring extends throughout the outdoor living area, overlooking a sparkling, refinished heated swimming pool enclosed within a large extended 2024 screened cage. This inviting space also features an outdoor shower and plenty of room for sunning. Additional highlights include an interior laundry room with utility sink, washer and dryer, hurricane shutters, a 2019 water heater, a new water softener in 2023, a 2019 pool heat pump, 2019 resurfaced pool and a 2011 air-conditioning system. Conveniently located near I-75 and US-41, and just minutes from Fishermen’s Village, downtown Punta Gorda shops and restaurants, St. Andrews Golf Course, and world-class boating, fishing, and sailing. This home is move-in ready and waiting for you. **PLEASE ENJOY THE 3D INTERACTIVE VIRTUAL TOUR ASSOCIATED WITH THIS LISTING**

位置

详情与特色

类型:
Residential
停车:
Driveway / Garage Door Opener
建造年份:
1986
地段:
0.27 英亩
暖气:
Central
价格/平方英尺:
$298
冷气:
Central Air / Humidity Control
HOA:
没有数据
更多事实和特点
  • 地板

    • Carpet

    • Ceramic Tile

    • Laminate

    暖气

    • Central

    冷气

    • Central Air

    • Humidity Control

    设备

    • Dishwasher

    • Disposal

    • Dryer

    • Electric Water Heater

    • Microwave

    • Range

    • Refrigerator

    • Washer

    • Water Softener

    其他室内特点

    • Cathedral Ceiling(s)

    • Ceiling Fan(s)

    • Kitchen/Family Room Combo

    • L Dining

    • Living Room/Dining Room Combo

    • Open Floorplan

    • Primary Bedroom Main Floor

    • Skylight(s)

    • Solid Wood Cabinets

    • Split Bedroom

    • Stone Counters

    • Vaulted Ceiling(s)

    • Walk-In Closet(s)

    卧室和浴室

    • 卧室: 3

    • 完整的浴室: 3

  • 停车

    • Driveway

    • Garage Door Opener

    房屋

    • 等级: One

    • 私人泳池: 是

    • 外观特征: Hurricane Shutters / Irrigation System / Lighting / Outdoor Shower / Sliding Doors

    地段

    • 地段: 0.27 英亩

    其他财产信息

    • 包裹编号: 412214230013

    • 分区: GS-3.5

  • 类型与风格

    • 财产种类: Residential

    • 属性子类型: Single Family Residence

  • 公益

    • BB/HS Internet Available

    • Cable Available

    • Electricity Available

    • Electricity Connected

    • Public

  • 其他财政信息

    • 年税额: $7,469

  • 来源细节

    • MLS ID: C7519126

    其他详情

    • 建筑材料: Block / Stucco

    • 基金会详情: Slab

    • 洗衣功能: Electric Dryer Hookup / Inside / Laundry Room / Washer Hookup

    • 地段特征: Cul-De-Sac / City Lot / Key Lot / Landscaped / Near Golf Course / Near Marina / Oversized Lot / Street Dead-End / Tip Lot

    • 天井和门廊特色: Covered / Enclosed / Screened

    • 泳池特色: Child Safety Fence / Gunite / In Ground / Outside Bath Access / Screen Enclosure

    • 窗户功能: Blinds

    • 方向面: West

    • 建筑风格: Florida

    • 滨水区: 是

    • 水体名称: SAILFISH ESTUARY CANAL

    • 车库空间: 2

    • 附属车库: 是

    • 车库: 是

    • 生活区域: 2177

    • 水源: Public

    • 地块大小: 44 x 116 x 159 x 143

    • 细分名称: PUNTA GORDA ISLES SEC 05

类似房屋

1428 KITTIWAKE DRIVE placeholder 1428 KITTIWAKE DRIVE
待售
房屋
$724,900
3 贝兹 2 浴室 1,802 平方英尺
1428 KITTIWAKE DRIVE
262 LIDO DRIVE placeholder 262 LIDO DRIVE
待售
房屋
$636,000
3 贝兹 2 浴室 2,469 平方英尺
262 LIDO DRIVE
1119 VIA FORMIA placeholder 1119 VIA FORMIA
1 天
待售
房屋
$685,000
3 贝兹 2 浴室 2,137 平方英尺
1119 VIA FORMIA
221 DI VINCI DRIVE placeholder 221 DI VINCI DRIVE
6 天
待售
房屋
$669,000
3 贝兹 2 浴室 2,337 平方英尺
221 DI VINCI DRIVE
1315 W MARION AVE, Punta Gorda FL 33950 placeholder 1315 W MARION AVE, Punta Gorda FL 33950
6 天
待售
商业的
$650,000
0 room(s)
1315 W MARION AVE, Punta Gorda FL 33950
1310 MONTE CARLO COURT placeholder 1310 MONTE CARLO COURT
6 天
待售
房屋
$799,000
3 贝兹 3 浴室 2,513 平方英尺
1310 MONTE CARLO COURT
649 MACEDONIA DRIVE placeholder 649 MACEDONIA DRIVE
7 天
待售
房屋
$685,000
3 贝兹 2 浴室 2,160 平方英尺
649 MACEDONIA DRIVE
641 BAL HARBOR BOULEVARD placeholder 641 BAL HARBOR BOULEVARD
7 天
待售
房屋
$549,000
4 贝兹 3 浴室 2,164 平方英尺
641 BAL HARBOR BOULEVARD

The multiple listing information is provided by the Stellar MLS from a copyrighted compilation of listings. The compilation of listings and each individual listing are ©2025-present Stellar MLS. All Rights Reserved. The information provided is for consumers' personal, noncommercial use and may not be used for any purpose other than to identify prospective properties consumers may be interested in purchasing. All properties are subject to prior sale or withdrawal. All information provided is deemed reliable but is not guaranteed accurate, and should be independently verified. Listing courtesy of: MARINA PARK REALTY LLC