特性
探索我们的清单
聯繫
告诉我们您的需求

2162 STRATTEN DRIVE

房屋 待售
$643,740

BTC: 21.45800000

ETH: 321.87000000

3 天
5 贝兹
4 浴室
3,975 平方英尺
Est. 预计销售范围: $0 - $0
$0

总览

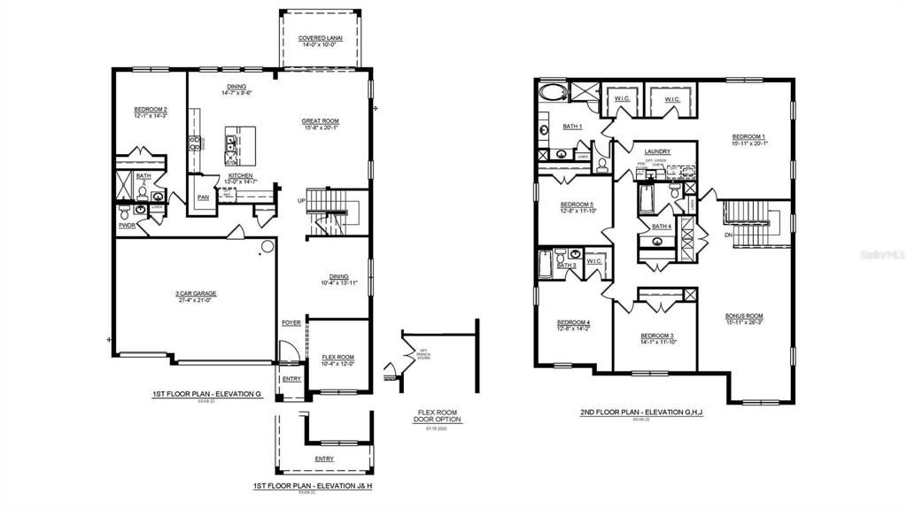
One or more photo(s) has been virtually staged. Under Construction. The builder is offering buyers up to $25,000 towards closing costs with the use of a preferred lender and title company. Archer at Two Rivers is a vibrant new home community in Zephyrhills, Florida, conveniently located off SR-56. This exceptional location places you at the heart of a growing city, with easy access to major roadways such as Morris Bridge Road and I-75, just 15 minutes away. Living at Two Rivers means being close to endless entertainment, dining, and shopping options. Explore The Grove, featuring a movie theater and game center, or visit KRATES for unique local shops and dining. Just minutes away, you’ll find the Tampa Premium Outlets and the Wiregrass Mall, home to a variety of restaurants like GrillSmith, Noble Crust, and The Living Room, along with other dining and retail establishments. For family-friendly fun, the Main Event Entertainment Center offers bowling, laser tag, and arcade games. This community also provides proximity to premier healthcare facilities, including St. Joseph’s Hospital and AdventHealth Wesley Chapel, as well as top-rated Pasco County Schools. Sports enthusiasts will appreciate being near the Wesley Chapel Sports Complex and AdventHealth Center Ice, offering ice skating and other activities. Two Rivers homes are thoughtfully designed with modern features, including all gas appliances, such as tankless gas water heater and gas stoves ensuring energy efficiency and convenience. Homes are constructed with concrete block on both the first and second stories for durability and come equipped with D.R. Horton’s Smart Home System. Backed by America’s #1 Builder since 2002, Two Rivers combines quality, style, and an unbeatable location. Other inventory options may be available in this community. Please reach out for list of availability. Pictures, photographs, colors, features, and sizes are for illustration purposes only and will vary from the homes as built. Home and community information, including pricing, included features, terms, availability, and amenities, are subject to change and prior sale at any time without notice or obligation. Materials may vary based on availability. D.R. Horton Reserves all Rights.

位置

佛罗里达 ZEPHYRHILLS 33541 房屋 待售

详情与特色

类型:
Residential
停车:
没有数据
建造年份:
2026
地段:
0.32 英亩
暖气:
Central
价格/平方英尺:
$162
冷气:
Central Air
HOA:
$70
更多事实和特点
  • 地板

    • Carpet

    • Other

    暖气

    • Central

    冷气

    • Central Air

    设备

    • Dishwasher

    • Microwave

    • Range

    其他室内特点

    • Open Floorplan

    卧室和浴室

    • 卧室: 5

    • 洗手间: 1

    • 完整的浴室: 4

  • 房屋

    • 等级: Two

    • 外观特征: Sliding Doors

    地段

    • 地段: 0.32 英亩

    其他财产信息

    • 包裹编号: 28 26 21 0050 00600 0110

    • 分区: MPUD

  • 类型与风格

    • 财产种类: Residential

    • 属性子类型: Single Family Residence

  • 公益

    • Natural Gas Available

    • Natural Gas Connected

    • Underground Utilities

  • 其他财政信息

    • HOA: $70

    • HOA频率: Monthly

  • 来源细节

    • MLS ID: TB8452609

    其他详情

    • 建筑材料: Block / Stucco

    • 基金会详情: Slab

    • 洗衣功能: Laundry Room

    • 窗户功能: Double Pane Windows / Low-Emissivity Windows

    • 方向面: Northeast

    • 车库空间: 3

    • 附属车库: 是

    • 车库: 是

    • 生活区域: 3975

    • 水源: Public

    • 细分名称: TWO RIVERS

类似房屋

2389 STRATTEN DRIVE placeholder 2389 STRATTEN DRIVE
待售
房屋
$536,740
4 贝兹 3 浴室 3,313 平方英尺
2389 STRATTEN DRIVE
36759 SAGEMOOR DRIVE placeholder 36759 SAGEMOOR DRIVE
待售
房屋
$541,190
5 贝兹 3 浴室 3,182 平方英尺
36759 SAGEMOOR DRIVE
36751 SAGEMOOR DRIVE placeholder 36751 SAGEMOOR DRIVE
待售
房屋
$494,990
5 贝兹 3 浴室 2,892 平方英尺
36751 SAGEMOOR DRIVE
2408 STRATTEN DRIVE placeholder 2408 STRATTEN DRIVE
3 天
待售
房屋
$462,990
4 贝兹 2 浴室 2,045 平方英尺
2408 STRATTEN DRIVE
2377 STRATTEN DRIVE placeholder 2377 STRATTEN DRIVE
3 天
待售
房屋
$541,740
4 贝兹 3 浴室 3,313 平方英尺
2377 STRATTEN DRIVE
2223 STRATTEN DRIVE placeholder 2223 STRATTEN DRIVE
-$17K (2025/12/03)
待售
房屋
$559,990
4 贝兹 3 浴室 2,794 平方英尺
2223 STRATTEN DRIVE
2388 STRATTEN DRIVE placeholder 2388 STRATTEN DRIVE
3 天
待售
房屋
$519,740
5 贝兹 3 浴室 2,934 平方英尺
2388 STRATTEN DRIVE
37868 SPRINGDALE ROAD placeholder 37868 SPRINGDALE ROAD
9 天
待售
地段/土地
$695,000
0 room(s)
37868 SPRINGDALE ROAD

The multiple listing information is provided by the Stellar MLS from a copyrighted compilation of listings. The compilation of listings and each individual listing are ©2025-present Stellar MLS. All Rights Reserved. The information provided is for consumers' personal, noncommercial use and may not be used for any purpose other than to identify prospective properties consumers may be interested in purchasing. All properties are subject to prior sale or withdrawal. All information provided is deemed reliable but is not guaranteed accurate, and should be independently verified. Listing courtesy of: D R HORTON REALTY OF TAMPA LLC