特性
探索我们的清单
聯繫
告诉我们您的需求

3572 PEACE RIVER DRIVE

房屋 待售
$1,325,000

BTC: 15.34452808

ETH: 452.83663705

21 天
滨水区
4 贝兹
3 浴室
2,802 平方英尺
Est. 预计销售范围: $0 - $0
$0

总览

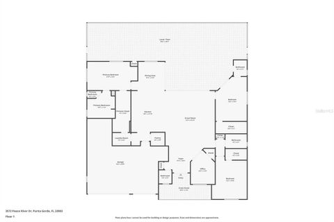
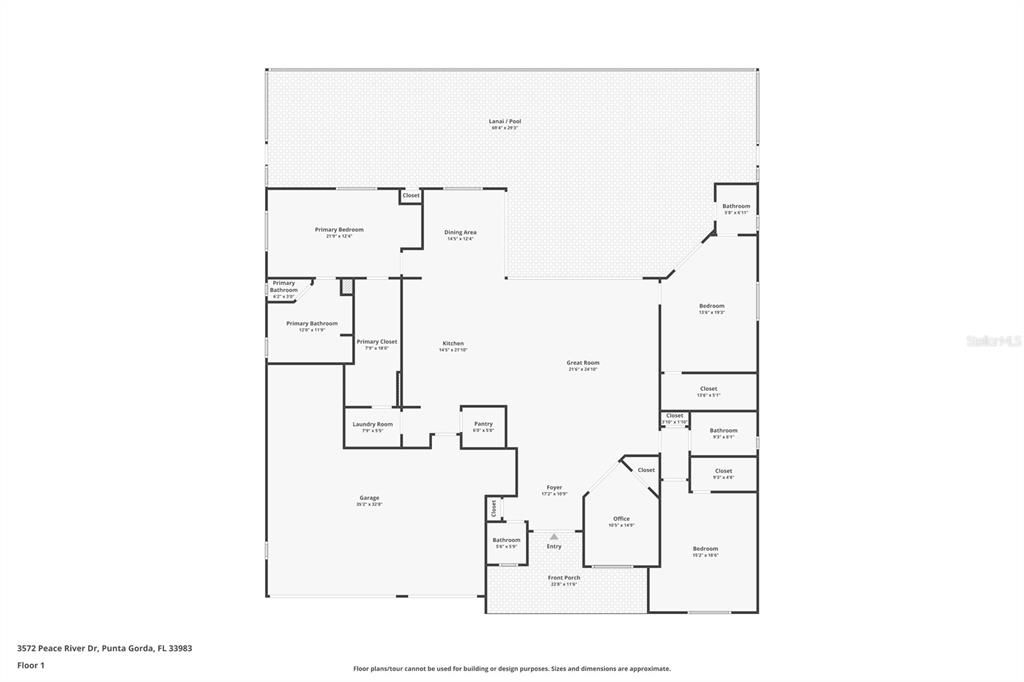
PEACE RIVER WATERFRONT LIVING W/108FT SEAWALL, LAP POOL, SOLAR POWER & 10,000LB LIFT - Set along an exceptional stretch of the Peace River, this custom, 4 bed/3.5 bath home blends refined waterfront living with premium boating access and modern energy efficiency. In Harbour Heights, a non-deed-restricted community, you will enjoy unobstructed wide-water views, and an elevated Florida lifestyle without HOA limitations. Inside, the home showcases soaring ceilings, crown molding, porcelain flooring throughout, and dramatic zero-corner sliders that open the great room entirely to the lanai. Natural light and river views define the space. The gourmet kitchen is designed for both daily use as well as entertaining, featuring rich wood cabinetry, granite counters, a large center island with seating, stainless-steel appliances, and a custom tile backsplash. Kitchen has large walk-in pantry and tons of cabinet & counter space. The owner's suite features a tray ceiling, and a spa-like bath with dual vanities, frameless glass shower with rainfall head, and deep soaking tub. Two guest suites, each with en-suite baths and generous closets, provide a luxurious experience for visitors. 4th bedroom is used as home office w/French doors but easily converts to full bedroom, if needed. Outdoor living here is exceptional with the 50-foot heated PebbleTec lap pool, surrounded by a spacious lanai designed for entertaining. An electric retractable cover enhances energy efficiency and ease of use, while the panoramic river backdrop offers a captivating, wide-water view that you can enjoy from sunrise to sunset. For boaters, the property includes 108 feet of seawall, a private dock with 10,000-pound, walk around lift, offering direct access to Charlotte Harbor and the Gulf beyond. Whether cruising, fishing, or heading to downtown Punta Gorda by water, this location is ideal. A standout of this home is its commitment to energy efficiency and storm readiness. A 10kW solar power system with 20 kWh backup battery provides substantial utility savings and uninterrupted service during outages. Complementing this is full hurricane protection, ensuring peace of mind throughout the storm season. Upgrades include new A/C in 2023 & security system. Other amenities include a brick paver driveway that leads to the air-conditioned 4-car garage with 9,000-pound lift and epoxy flooring. Harbour Heights offers a waterfront park with boat or kayak launch, pickleball, tennis, playground, picnic areas, and more, all without HOA fees. Quick access to I-75 places Sarasota, Fort Myers, Downtown Punta Gorda, and historic Arcadia within easy reach. Experience the best of luxury, energy-efficient living, and world-class boating on the Peace River. Schedule your appointment today.

位置

详情与特色

类型:
Residential
停车:
Oversized / Tandem
建造年份:
2017
地段:
0.29 英亩
暖气:
Central / Electric
价格/平方英尺:
$473
冷气:
Central Air / Mini-Split Unit(s)
HOA:
没有数据
更多事实和特点
  • 地板

    • Porcelain Tile

    暖气

    • Central

    • Electric

    冷气

    • Central Air

    • Mini-Split Unit(s)

    设备

    • Convection Oven

    • Cooktop

    • Dishwasher

    • Disposal

    • Dryer

    • Electric Water Heater

    • Microwave

    • Range Hood

    • Refrigerator

    • Washer

    其他室内特点

    • Crown Molding

    • High Ceilings

    • Open Floorplan

    • Split Bedroom

    • Stone Counters

    • Tray Ceiling(s)

    • Walk-In Closet(s)

    卧室和浴室

    • 卧室: 4

    • 洗手间: 1

    • 完整的浴室: 3

  • 停车

    • Oversized

    • Tandem

    房屋

    • 等级: One

    • 私人泳池: 是

    • 外观特征: Hurricane Shutters / Irrigation System / Rain Gutters / Sliding Doors

    地段

    • 地段: 0.29 英亩

    其他财产信息

    • 包裹编号: 402322356008

    • 分区: RSF3.5

  • 类型与风格

    • 财产种类: Residential

    • 属性子类型: Single Family Residence

  • 公益

    • BB/HS Internet Available

    • Cable Available

    • Electricity Connected

    • Water Connected

  • 其他财政信息

    • 年税额: $9,704

  • 来源细节

    • MLS ID: C7518724

    其他详情

    • 建筑材料: Block / Stucco

    • 基金会详情: Stem Wall

    • 洗衣功能: Inside / Laundry Room

    • 地段特征: FloodZone / In County

    • 天井和门廊特色: Screened

    • 泳池特色: Gunite / Heated / In Ground / Outside Bath Access / Screen Enclosure / Solar Cover

    • 窗户功能: Shutters

    • 方向面: Northwest

    • 建筑风格: Custom / Florida

    • 滨水区: 是

    • 水体名称: PEACE RIVER

    • 车库空间: 4

    • 附属车库: 是

    • 车库: 是

    • 生活区域: 2802

    • 水源: Public

    • 地块大小: 80 x 140 x 108 x 130

    • 细分名称: HARBOUR HEIGHTS

类似房屋

112 NORTHSHORE TERRACE placeholder 112 NORTHSHORE TERRACE
16 天
待售
房屋
$1,425,000
3 贝兹 2 浴室 2,512 平方英尺
112 NORTHSHORE TERRACE
116 NORTHSHORE TERRACE placeholder 116 NORTHSHORE TERRACE
16 天
待售
房屋
$1,475,000
3 贝兹 2 浴室 2,512 平方英尺
116 NORTHSHORE TERRACE
24581 NOVA LANE placeholder 24581 NOVA LANE
39 天
待售
房屋
$1,438,000
5 贝兹 3 浴室 3,237 平方英尺
24581 NOVA LANE
5595 RIVERSIDE DRIVE placeholder 5595 RIVERSIDE DRIVE
51 天
待售
房屋
$1,100,000
5 贝兹 4 浴室 5,761 平方英尺
5595 RIVERSIDE DRIVE
28984 GIN LANE placeholder 28984 GIN LANE
104 天
待售
房屋
$1,099,000
3 贝兹 3 浴室 2,364 平方英尺
28984 GIN LANE
7100 RIVERSIDE DRIVE placeholder 7100 RIVERSIDE DRIVE
-$301K (2025/12/17)
待售
地段/土地
$999,000
0 room(s)
7100 RIVERSIDE DRIVE
2073 TREASURE LANE placeholder 2073 TREASURE LANE
-$20K (2025/11/25)
待售
房屋
$1,530,000
4 贝兹 3 浴室 2,850 平方英尺
2073 TREASURE LANE
24549 NOVA LANE placeholder 24549 NOVA LANE
-$151K (2025/11/07)
待售
房屋
$949,000
4 贝兹 3 浴室 2,837 平方英尺
24549 NOVA LANE

The multiple listing information is provided by the Stellar MLS from a copyrighted compilation of listings. The compilation of listings and each individual listing are ©2025-present Stellar MLS. All Rights Reserved. The information provided is for consumers' personal, noncommercial use and may not be used for any purpose other than to identify prospective properties consumers may be interested in purchasing. All properties are subject to prior sale or withdrawal. All information provided is deemed reliable but is not guaranteed accurate, and should be independently verified. Listing courtesy of: RE/MAX HARBOR REALTY