特性
探索我们的清单
聯繫
告诉我们您的需求

6248 BRADFORD WOODS DR

房屋 待售
$425,000

BTC: 4.92182976

ETH: 145.24948735

42 天
5 贝兹
3 浴室
2,885 平方英尺
Est. 预计销售范围: $0 - $0
$0

总览

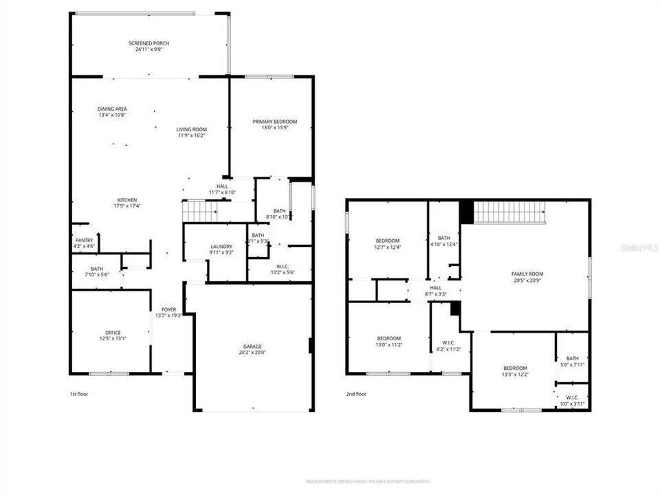
6248 Bradford Woods Dr, Zephyrhills – Oaks of Pasco. Where curb appeal meets contemporary comfort—this elegant 4-bedroom+office, 3.5-bath, 2,885 sq. ft. two-story home in the desirable GATED Oaks of Pasco community perfectly captures the charm of Zephyrhills living with modern design and family-friendly appeal. A beautifully landscaped front yard with lush green lawn, fresh mulch, and tropical plantings welcomes you home, while the covered front porch with stately columns invites you to relax and enjoy the Florida sunshine. Inside, an open and airy floor plan features tile flooring, high ceilings, and natural light that flows seamlessly throughout the main levels. Just off the entrance foyer, a spacious office offers versatility—ideal for remote work, study, or a quiet retreat. Adjacent, a convenient half bath with a pedestal sink adds functionality for guests. Designed for both style and function, the chef-inspired kitchen impresses with tall solid wood cabinetry with crown molding, soft-close drawers, pull-out shelving, stone counters, glass tile backsplash, stainless steel appliances, an energy-efficient range hood vented to the outside, and a large center island breakfast bar with pendant lighting—invites family and guests to gather, creating a natural hub for connection, conversation, and everyday gathering. The first-floor primary suite offers a private retreat designed for rest and relaxation, featuring a walk-in closet and a spa-inspired ensuite bath with a double vanity, dual undermount sinks, granite countertops, a beautifully tiled walk-in shower, and private water closet. Upstairs, an expansive 21x17 loft/family room provides the perfect gathering space for movie nights, playtime, or a secondary living area—offering flexibility to fit any lifestyle. Three generously sized bedrooms, each with walk-in closets, ensure comfort for everyone, while one includes its own ensuite bath and stone counters, ideal for guests or multigenerational living. Designed for convenience, the large laundry room includes a utility sink, washer/dryer hookups, and extra storage space for effortless organization. Step outside to the screened lanai, where tranquil outdoor living awaits—ideal for morning coffee or peaceful evenings under the stars. Additional features include smart home technology, ceiling fans, a two-car garage, and energy-efficient systems. Located just minutes from downtown Zephyrhills, with easy access to SR-54, US-301, shops, dining, medical centers, and Wesley Chapel, this home blends the serenity of small-town life with the convenience of nearby city amenities. Discover your place in Zephyrhills—where modern living meets timeless charm in the Oaks of Pasco. Don’t miss out—schedule your private showing today!

位置

佛罗里达 ZEPHYRHILLS 33542 房屋 待售

详情与特色

类型:
Residential
停车:
Driveway
建造年份:
2021
地段:
0.14 英亩
暖气:
Central / Electric
价格/平方英尺:
$147
冷气:
Central Air
HOA:
$128
更多事实和特点
  • 地板

    • Carpet

    • Tile

    暖气

    • Central

    • Electric

    冷气

    • Central Air

    设备

    • Dishwasher

    • Disposal

    • Electric Water Heater

    • Microwave

    • Range

    • Water Softener

    其他室内特点

    • Ceiling Fan(s)

    • Kitchen/Family Room Combo

    • Open Floorplan

    • Primary Bedroom Main Floor

    • Smart Home

    • Solid Wood Cabinets

    • Stone Counters

    • Thermostat

    • Tray Ceiling(s)

    • Walk-In Closet(s)

    卧室和浴室

    • 卧室: 5

    • 洗手间: 1

    • 完整的浴室: 3

  • 停车

    • Driveway

    房屋

    • 等级: Two

    • 外观特征: Hurricane Shutters / Sidewalk / Sliding Doors

    地段

    • 地段: 0.14 英亩

    其他财产信息

    • 包裹编号: 0426210120000000240

    • 分区: PUD

  • 类型与风格

    • 财产种类: Residential

    • 属性子类型: Single Family Residence

  • 公益

    • BB/HS Internet Available

    • Cable Available

    • Electricity Available

    • Electricity Connected

    • Phone Available

    • Public

    • Sewer Available

    • Sewer Connected

    • Water Available

    • Water Connected

  • 其他财政信息

    • HOA: $128

    • HOA频率: Monthly

    • 年税额: $7,434

  • 来源细节

    • MLS ID: TB8445427

    其他详情

    • 建筑材料: Block / Concrete / Wood Siding

    • 基金会详情: Slab

    • 洗衣功能: Electric Dryer Hookup / Inside / Laundry Room / Washer Hookup

    • 地段特征: In County / Landscaped / Near Golf Course / Sidewalk

    • 天井和门廊特色: Covered / Front Porch / Patio / Screened

    • 窗户功能: Blinds / Double Pane Windows

    • 方向面: West

    • 建筑风格: Florida

    • 车库空间: 2

    • 附属车库: 是

    • 车库: 是

    • 生活区域: 2885

    • 水源: Public

    • 细分名称: OAKS OF PASCO

类似房屋

 placeholder
2 天
待售
房屋
$335,000
4 贝兹 2 浴室 1,668 平方英尺
6112 SILVER OAKS DRIVE placeholder 6112 SILVER OAKS DRIVE
7 天
待售
房屋
$425,000
3 贝兹 3 浴室 1,510 平方英尺
6112 SILVER OAKS DRIVE
5444 BERNADETTE DRIVE placeholder 5444 BERNADETTE DRIVE
9 天
待售
房屋
$299,000
2 贝兹 2 浴室 1,454 平方英尺
5444 BERNADETTE DRIVE
38030 MEDICAL CENTER AVENUE placeholder 38030 MEDICAL CENTER AVENUE
14 天
待售
商业的
$411,000
0 room(s) 1,080 平方英尺
38030 MEDICAL CENTER AVENUE
6347 TEN ACRE COURT placeholder 6347 TEN ACRE COURT
-$9K (2025/12/24)
待售
房屋
$359,990
5 贝兹 2 浴室 2,389 平方英尺
6347 TEN ACRE COURT
36515 WELL HILL WAY placeholder 36515 WELL HILL WAY
+$100K (2025/12/11)
待售
房屋
$329,900
4 贝兹 2 浴室 1,764 平方英尺
36515 WELL HILL WAY
35424 COVENTRY FIELDS LOOP placeholder 35424 COVENTRY FIELDS LOOP
-$13K (2025/12/17)
待售
房屋
$362,900
4 贝兹 2 浴室 1,715 平方英尺
35424 COVENTRY FIELDS LOOP
5920 BRAMBLE BUSH COURT placeholder 5920 BRAMBLE BUSH COURT
17 天
待售
房屋
$525,000
4 贝兹 3 浴室 2,634 平方英尺
5920 BRAMBLE BUSH COURT

The multiple listing information is provided by the Stellar MLS from a copyrighted compilation of listings. The compilation of listings and each individual listing are ©2025-present Stellar MLS. All Rights Reserved. The information provided is for consumers' personal, noncommercial use and may not be used for any purpose other than to identify prospective properties consumers may be interested in purchasing. All properties are subject to prior sale or withdrawal. All information provided is deemed reliable but is not guaranteed accurate, and should be independently verified. Listing courtesy of: MIHARA & ASSOCIATES INC.