特性
探索我们的清单
聯繫
告诉我们您的需求

6301 GEM LANE

房屋 合同活跃
$278,000

BTC: 9.26666667

ETH: 139.00000000

2 天
2 贝兹
2 浴室
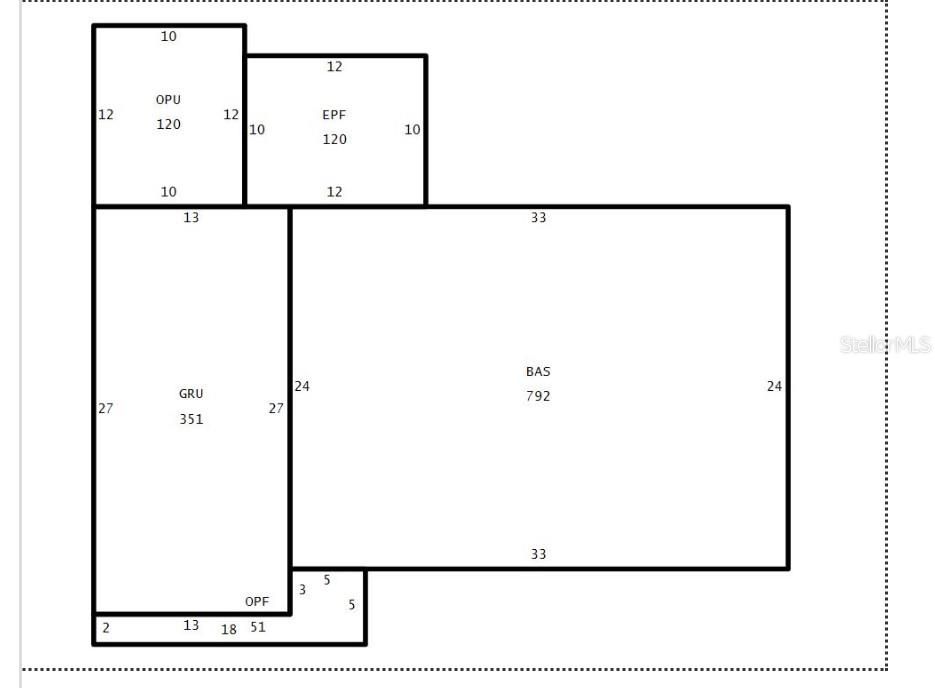
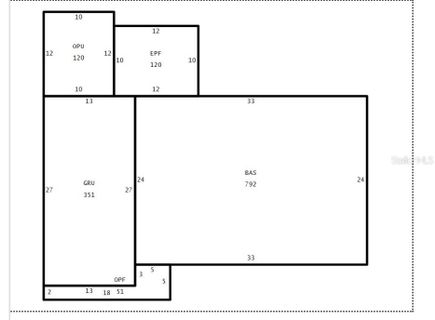
792 平方英尺
Est. 预计销售范围: $0 - $0
$0

总览

Under contract-accepting backup offers. Perfect Starter Home or Investment Property! Located in the Gem Village Community this Home Sits on a Large Corner Lot with a Fully Fenced-In Back Yard. Ample Space for Parking a Boat or RV on the Side of the Home. The Garage has Been Converted to an In-Law Suite Providing an Additional Bedroom of 351 Sq. Ft that is connected to HVAC Ducts. Can Easily Be Converted Back if Desired! HVAC Updated in 2020 ~ Water Heater Replaced 2024 ~ Electrical Panel Replaced 2006 ~ Roof 1995. Being Sold As-Is. Near Beaches, Commerce & Great Schools! Schedule Your Showing Today!

位置

佛罗里达 SEMINOLE 33772 房屋 合同活跃

详情与特色

类型:
Residential
停车:
Converted Garage
建造年份:
1959
地段:
0.16 英亩
暖气:
Central
价格/平方英尺:
$351
冷气:
Central Air
HOA:
没有数据
更多事实和特点
  • 地板

    • Concrete

    • Tile

    • Vinyl

    暖气

    • Central

    冷气

    • Central Air

    设备

    • Built-In Oven

    • Dishwasher

    • Dryer

    • Electric Water Heater

    • Microwave

    • Refrigerator

    • Washer

    其他室内特点

    • Ceiling Fan(s)

    卧室和浴室

    • 卧室: 2

    • 完整的浴室: 2

  • 停车

    • Converted Garage

    房屋

    • 等级: One

    • 外观特征: Private Yard / Sliding Doors

    地段

    • 地段: 0.16 英亩

    其他财产信息

    • 包裹编号: 343015305100000590

  • 类型与风格

    • 财产种类: Residential

    • 属性子类型: Single Family Residence

  • 公益

    • Public

  • 其他财政信息

    • 年税额: $1,737

  • 来源细节

    • MLS ID: TB8450706

    其他详情

    • 建筑材料: Block

    • 基金会详情: Block / Slab

    • 洗衣功能: In Garage

    • 方向面: North

    • 生活区域: 792

    • 水源: Public

    • 细分名称: GEM VILLAGE 2ND ADD

类似房屋

9482 CRESTVIEW STREET placeholder 9482 CRESTVIEW STREET
2 天
合同活跃
房屋
$225,000
3 贝兹 1 浴室 1,120 平方英尺
9482 CRESTVIEW STREET
9774 LAKE SEMINOLE DRIVE E placeholder 9774 LAKE SEMINOLE DRIVE E
4 天
合同活跃
房屋
$275,000
2 贝兹 2 浴室 1,165 平方英尺
9774 LAKE SEMINOLE DRIVE E
9453 GOLDEN GROVE STREET placeholder 9453 GOLDEN GROVE STREET
4 天
合同活跃
房屋
$314,999
2 贝兹 1 浴室 910 平方英尺
9453 GOLDEN GROVE STREET
6315 SHORELINE DRIVE UNIT 3306 placeholder 6315 SHORELINE DRIVE UNIT 3306
8 天
合同活跃
公寓/合作社
$289,900
2 贝兹 2 浴室 1,205 平方英尺
6315 SHORELINE DRIVE UNIT 3306
108 DOGWOOD CIRCLE placeholder 108 DOGWOOD CIRCLE
8 天
合同活跃
公寓/合作社
$250,000
3 贝兹 2 浴室 1,635 平方英尺
108 DOGWOOD CIRCLE
7833 BRISTOL COURT placeholder 7833 BRISTOL COURT
10 天
合同活跃
房屋
$350,000
4 贝兹 3 浴室 2,004 平方英尺
7833 BRISTOL COURT
4525 COVE CIRCLE UNIT 304 placeholder 4525 COVE CIRCLE UNIT 304
13 天
合同活跃
公寓/合作社
$210,000
1 贝兹 1 浴室 815 平方英尺
4525 COVE CIRCLE UNIT 304
4725 COVE CIRCLE UNIT 302 placeholder 4725 COVE CIRCLE UNIT 302
13 天
合同活跃
公寓/合作社
$235,000
2 贝兹 2 浴室 1,040 平方英尺
4725 COVE CIRCLE UNIT 302

The multiple listing information is provided by the Stellar MLS from a copyrighted compilation of listings. The compilation of listings and each individual listing are ©2025-present Stellar MLS. All Rights Reserved. The information provided is for consumers' personal, noncommercial use and may not be used for any purpose other than to identify prospective properties consumers may be interested in purchasing. All properties are subject to prior sale or withdrawal. All information provided is deemed reliable but is not guaranteed accurate, and should be independently verified. Listing courtesy of: RE/MAX ELITE REALTY