特性
探索我们的清单
聯繫
告诉我们您的需求

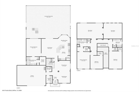
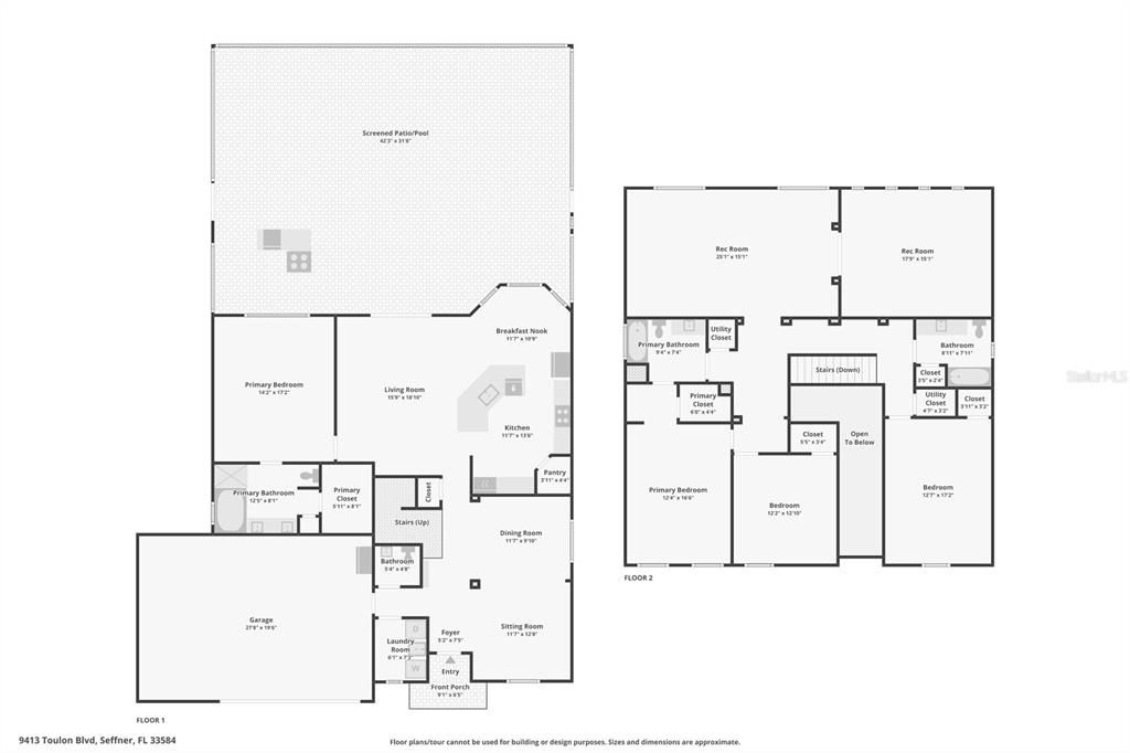
9413 TOULON BOULEVARD

房屋 待售
$877,000

BTC: 13.01824915

ETH: 456.77083333

-$3K (2026/01/07)
24 天
4 贝兹
3 浴室
3,520 平方英尺
Est. 预计销售范围: $0 - $0
$0

总览

Discover this stunning Mediterranean-style estate in Seffner’s most desirable gated executive community, Toulon. Situated on a 0.6 acre lot with no front or back neighbors and a serene water view, this home offers elegance, privacy, and versatility for every lifestyle. From the moment you arrive, the meticulously landscaped front yard, three-car garage, and elegant double column entryway set the tone for what’s inside. Step through the 8-foot entry glass door into a soaring foyer accented by a wooden staircase, flanked by a formal living and dining room on one side and a convenient laundry room and half bath on the other. This home shows like a model and delivers WOW factor at every turn. The open floor plan centers around a spacious family room and a brand-new gourmet kitchen (2025) featuring stylish white/gray Quartz countertop and backsplash. The kitchen island features breakfast bar stainless steel appliances, cooktop range, double built-in oven and walk-in pantry. Kitchen also features an eat-in area, both kitchen and family room overlook the lanai, pool, and pond. Flooring includes engineered hardwood and ceramic tile in warm tones throughout the common and wet areas. Brand new carpet (2025) in the owner’s suite and secondary bedroom. The luxurious primary suite, located on the main level for privacy, offers walk-in closet, Garden tub, separate walk-in shower and dual vanities Upstairs, enjoy a spacious loft, a media room (perfect for a theater or gym), and three additional bedrooms and two bathrooms. One bedroom comes with an ensuite bath and a built-in office. Step outside to a screened lanai designed for relaxation and entertaining. There is a sparkling pool with waterfalls, pavers, complete with outdoor kitchen & covered seating. Beyond the pool, you have an oversized lot with a pond view. The screened enclosure ensures year-round enjoyment, extending your living space outdoors. The three car garage has built-in shelving & overhead storage. An irrigation well was installed in 2022 that saves a ton of money on the water bill. Additionally, the well is pre-plumbed for a possible primary water source. The house had recent interior/exterior paint, polished hardwood floors, and tile roof cleaning (2025). This home is proudly occupied by its original owners, who have meticulously maintained every detail, reflecting true pride of ownership throughout. Toulon offers beautifully landscaped grounds, ponds, and sidewalks in a secure gated setting. Conveniently located near I-4 and I-75, you’re minutes from Tampa’s best shopping, dining, and entertainment. This home truly shines inside and out! Explore the video tour, interactive 3D walkthrough, and detailed floor plan available with this listing. Schedule your private showing today, this one won’t last!

位置

佛罗里达 SEFFNER 33584 房屋 待售

详情与特色

类型:
Residential
停车:
没有数据
建造年份:
2010
地段:
0.60 英亩
暖气:
Electric
价格/平方英尺:
$249
冷气:
Central Air
HOA:
$130
更多事实和特点
  • 地板

    • Carpet

    • Ceramic Tile

    • Engineered Hardwood

    暖气

    • Electric

    冷气

    • Central Air

    设备

    • Built-In Oven

    • Cooktop

    • Dishwasher

    • Disposal

    • Dryer

    • Electric Water Heater

    • Exhaust Fan

    • Ice Maker

    • Microwave

    • Range

    • Range Hood

    • Refrigerator

    • Washer

    • Water Softener

    其他室内特点

    • Ceiling Fan(s)

    • Eating Space In Kitchen

    • High Ceilings

    • Living Room/Dining Room Combo

    • Open Floorplan

    • Primary Bedroom Main Floor

    • Thermostat

    • Walk-In Closet(s)

    卧室和浴室

    • 卧室: 4

    • 洗手间: 1

    • 完整的浴室: 3

  • 房屋

    • 等级: Two

    • 私人泳池: 是

    • 外观特征: Irrigation System / Lighting / Outdoor Kitchen / Sidewalk / Sliding Doors

    地段

    • 地段: 0.60 英亩

    其他财产信息

    • 包裹编号: U20282085RB0000000041.0

    • 分区: PD

  • 类型与风格

    • 财产种类: Residential

    • 属性子类型: Single Family Residence

  • 公益

    • Cable Connected

    • Electricity Connected

    • Sewer Connected

    • Sprinkler Well

    • Water Connected

  • 其他财政信息

    • HOA: $130

    • HOA频率: Monthly

    • 年税额: $7,030

  • 来源细节

    • MLS ID: TB8456476

    其他详情

    • 建筑材料: Block / Stucco

    • 基金会详情: Slab

    • 洗衣功能: Inside

    • 泳池特色: Gunite / In Ground

    • 窗户功能: Blinds

    • 方向面: West

    • 车库空间: 3

    • 附属车库: 是

    • 车库: 是

    • 生活区域: 3520

    • 水源: Public

    • 地块大小: 109.71 x 239

    • 细分名称: TOULON PH 1

类似房屋

10140 WHITE MAGNOLIA SQUARE placeholder 10140 WHITE MAGNOLIA SQUARE
16 天
待售
房屋
$779,900
3 贝兹 4 浴室 3,526 平方英尺
10140 WHITE MAGNOLIA SQUARE
6500 MOTOR ENCLAVE WAY UNIT 213 placeholder 6500 MOTOR ENCLAVE WAY UNIT 213
23 天
待售
商业的
$650,000
0 room(s) 1,230 平方英尺
6500 MOTOR ENCLAVE WAY UNIT 213
6500 MOTOR ENCLAVE WAY UNIT 213 placeholder 6500 MOTOR ENCLAVE WAY UNIT 213
23 天
待售
$650,000
0 room(s) 1,230 平方英尺
6500 MOTOR ENCLAVE WAY UNIT 213
12005 DEERFOOT PLACE placeholder 12005 DEERFOOT PLACE
-$15K (2026/01/05)
待售
房屋
$624,900
5 贝兹 3 浴室 2,396 平方英尺
12005 DEERFOOT PLACE
11341 Pruett Road, Tampa FL 33584 placeholder 11341 Pruett Road, Tampa FL 33584
65 天
待售
房屋
$700,000
5 贝兹 3 浴室
11341 Pruett Road, Tampa FL 33584
6500 MOTOR ENCLAVE WAY UNIT 1004 placeholder 6500 MOTOR ENCLAVE WAY UNIT 1004
-$200K (2025/12/05)
待售
$779,000
0 room(s) 1,435 平方英尺
6500 MOTOR ENCLAVE WAY UNIT 1004
6500 MOTOR ENCLAVE WAY UNIT 1003 placeholder 6500 MOTOR ENCLAVE WAY UNIT 1003
-$186K (2025/11/28)
待售
$799,000
0 room(s) 1,435 平方英尺
6500 MOTOR ENCLAVE WAY UNIT 1003
6500 MOTOR ENCLAVE WAY UNIT 1004 placeholder 6500 MOTOR ENCLAVE WAY UNIT 1004
-$200K (2025/12/05)
待售
商业的
$779,000
0 room(s) 1,435 平方英尺
6500 MOTOR ENCLAVE WAY UNIT 1004

The multiple listing information is provided by the Stellar MLS from a copyrighted compilation of listings. The compilation of listings and each individual listing are ©2026-present Stellar MLS. All Rights Reserved. The information provided is for consumers' personal, noncommercial use and may not be used for any purpose other than to identify prospective properties consumers may be interested in purchasing. All properties are subject to prior sale or withdrawal. All information provided is deemed reliable but is not guaranteed accurate, and should be independently verified. Listing courtesy of: STAR BAY REALTY CORP.