特性
探索我们的清单
聯繫
告诉我们您的需求

4213 ARBORWOOD LANE

联排别墅 合同活跃
$480,000

BTC: 16.00000000

ETH: 240.00000000

20 天
滨水区
4 贝兹
2 浴室
2,275 平方英尺
Est. 预计销售范围: $0 - $0
$0

总览

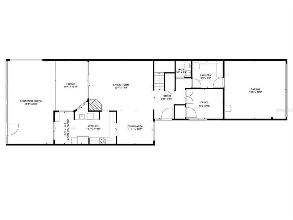
Under contract-accepting backup offers. Stunning Pond & Golf Course Views from this AMAZING Townhouse/Condo located in the Heart of Carrollwood! This Immaculate 2 story Townhouse Style Condo offers 4 spacious bedrooms, 2.5 baths, a 2 Car Garage & 2275 sq ft of living space. You will appreciate the open floor plan, large great room with cozy fireplace with wood mantel, Luxury Vinyl Plank Flooring as well as the many updates & upgrades in this special home~ The Kitchen & Baths have been fully updated very nicely! The open Kitchen features updated quality cabinetry with soft close doors & drawers, Pantry, Lazy Susan Cabinet, newer Stainless Appliances, Granite Countertops, Single Basin Sink, upgraded faucet, Plank Tile & Recessed Lighting. There is 1 Bedroom plus 1/2 Bath on the first floor & 3 Bedrooms + 2 Baths on the 2nd level. The Primary Bedroom features a double entry door. The Ensuite Bath & the Walk-in Closet are both massive in size! (Bedroom 20X14 & Closet 5X13) The ensuite Primary Bath is gorgeous with Updated Tiled Shower with frameless glass door, large dual sink vanity with granite countertops, 2 designer mirrors & Plank Tile. Enjoy the amazing views from your private balcony just off your Primary Bedroom! Interior spacious Laundry Room with Full Size Washer/Dryer Hookup, Shelving & Folding Table too~ You will enjoy relaxing on the oversized screened lanai with pavers overlooking the scenic views of the serene pond & the Meadow Fairway 1 location on the Carrollwood Country Club Golf Course! Upgrades & Updates Galore! Newer Impact Windows & Triple Slider Doors, LVP Flooring, Newer Appliances, Newer Carpet, Window Blinds/Shades/Curtains, Recessed Lighting, Water Softener, Attic Ladder Access, Ceiling Fans, Automatic Garage Door Opener, Arlo 3 Camera System, Mirrored Closet Doors in 3 bedrooms, HVAC has a UV Light, Front Entry Door with glass insert & side light, Brick Pavers at entrance, Pavers at large screened lanai, keyless entry for garage & Exterior Gutters. Condo Fees include: Cable, Internet, Water, Sewer, Trash, Roof, Exterior Paint, Exterior Insurance, Pool Maintenance & Lawn/Grounds Maintenance. Community features a Community Pool & Guest Parking. 1 Mile away is the fabulous "Carrollwood Village Park"! Includes: Picnic Shelters, Large & Small Dog Parks, Outdoor Chess Boards, Outdoor Ping Pong Tables, Walking Trails, Outdoor Fitness Equipment, Bike Repair Station, Skate Park, Splash Pad, Playground, Paved Trails, Corn Hole & Fishing too! Very convenient location near many Restaurants, Shopping & Carrollwood Country Club for Golfing~

位置

详情与特色

类型:
Residential
停车:
Driveway / Garage Door Opener
建造年份:
1981
地段:
0.04 英亩
暖气:
Central / Electric
价格/平方英尺:
$211
冷气:
Central Air
HOA:
$782
更多事实和特点
  • 地板

    • Carpet

    • Ceramic Tile

    • Luxury Vinyl

    • Tile

    暖气

    • Central

    • Electric

    冷气

    • Central Air

    设备

    • Dishwasher

    • Disposal

    • Electric Water Heater

    • Microwave

    • Range

    • Refrigerator

    • Water Softener

    • Wine Refrigerator

    其他室内特点

    • Ceiling Fan(s)

    • Eating Space In Kitchen

    • Living Room/Dining Room Combo

    • Open Floorplan

    • PrimaryBedroom Upstairs

    • Stone Counters

    • Thermostat

    • Walk-In Closet(s)

    • Window Treatments

    卧室和浴室

    • 卧室: 4

    • 洗手间: 1

    • 完整的浴室: 2

  • 停车

    • Driveway

    • Garage Door Opener

    房屋

    • 等级: Two

    • 外观特征: Balcony / Irrigation System / Private Mailbox / Rain Gutters / Sliding Doors

    地段

    • 地段: 0.04 英亩

    其他财产信息

    • 包裹编号: U0428180V200000500007.0

    • 分区: PD

  • 类型与风格

    • 财产种类: Residential

    • 属性子类型: Townhouse

  • 公益

    • Cable Available

    • Cable Connected

    • Electricity Available

    • Electricity Connected

    • Public

    • Sewer Available

    • Sewer Connected

    • Water Available

    • Water Connected

  • 其他财政信息

    • HOA: $782

    • HOA频率: Monthly

    • 年税额: $4,080

  • 来源细节

    • MLS ID: TB8398891

    其他详情

    • 建筑材料: Block / Stucco / Wood Frame

    • 基金会详情: Slab

    • 壁炉功能: Living Room / Wood Burning

    • 洗衣功能: Electric Dryer Hookup / Inside / Laundry Room / Washer Hookup

    • 地段特征: Near Golf Course / On Golf Course

    • 天井和门廊特色: Covered / Porch / Rear Porch / Screened

    • 窗户功能: Blinds / Double Pane Windows / Rods / Window Treatments

    • 方向面: West

    • 建筑风格: Contemporary / Florida / Traditional

    • 滨水区: 是

    • 壁炉: 是

    • 车库空间: 2

    • 附属车库: 是

    • 车库: 是

    • 生活区域: 2275

    • 水源: Public

    • 细分名称: FAIRWAY LAKES TWNHMS 02 A CONDO PH 03

类似房屋

16150 FOXFIRE DRIVE placeholder 16150 FOXFIRE DRIVE
合同活跃
房屋
$369,990
4 贝兹 2 浴室 1,420 平方英尺
16150 FOXFIRE DRIVE
2128 W PERIO STREET placeholder 2128 W PERIO STREET
1 天
合同活跃
房屋
$399,900
5 贝兹 5 浴室 1,754 平方英尺
2128 W PERIO STREET
4708 ASHTON COURT placeholder 4708 ASHTON COURT
2 天
合同活跃
房屋
$350,000
3 贝兹 2 浴室 1,487 平方英尺
4708 ASHTON COURT
12728 DUNHILL DRIVE placeholder 12728 DUNHILL DRIVE
3 天
合同活跃
房屋
$449,900
3 贝兹 2 浴室 1,302 平方英尺
12728 DUNHILL DRIVE
12311 CLOVERSTONE DRIVE placeholder 12311 CLOVERSTONE DRIVE
3 天
合同活跃
房屋
$434,500
4 贝兹 3 浴室 1,492 平方英尺
12311 CLOVERSTONE DRIVE
10131 CEDAR DUNE DRIVE placeholder 10131 CEDAR DUNE DRIVE
3 天
合同活跃
房屋
$400,000
3 贝兹 2 浴室 1,618 平方英尺
10131 CEDAR DUNE DRIVE
4154 NORTHMEADOW CIRCLE placeholder 4154 NORTHMEADOW CIRCLE
3 天
合同活跃
公寓/合作社
$395,000
2 贝兹 2 浴室 1,320 平方英尺
4154 NORTHMEADOW CIRCLE
10305 DEL MAR CIRCLE placeholder 10305 DEL MAR CIRCLE
4 天
合同活跃
房屋
$379,900
4 贝兹 2 浴室 1,304 平方英尺
10305 DEL MAR CIRCLE

The multiple listing information is provided by the Stellar MLS from a copyrighted compilation of listings. The compilation of listings and each individual listing are ©2025-present Stellar MLS. All Rights Reserved. The information provided is for consumers' personal, noncommercial use and may not be used for any purpose other than to identify prospective properties consumers may be interested in purchasing. All properties are subject to prior sale or withdrawal. All information provided is deemed reliable but is not guaranteed accurate, and should be independently verified. Listing courtesy of: KELLER WILLIAMS SOUTH TAMPA