Contacto
Cuéntenos sobre sus necesidades

640 LYONS LANE

Lotes / Tierras En Venta
$1,295,000

BTC: 14.99710481

ETH: 442.58373206

180 días
Frente al mar
0 room(s)
Est. Rango de ventas estimado: $0 - $0
$0

Visión general

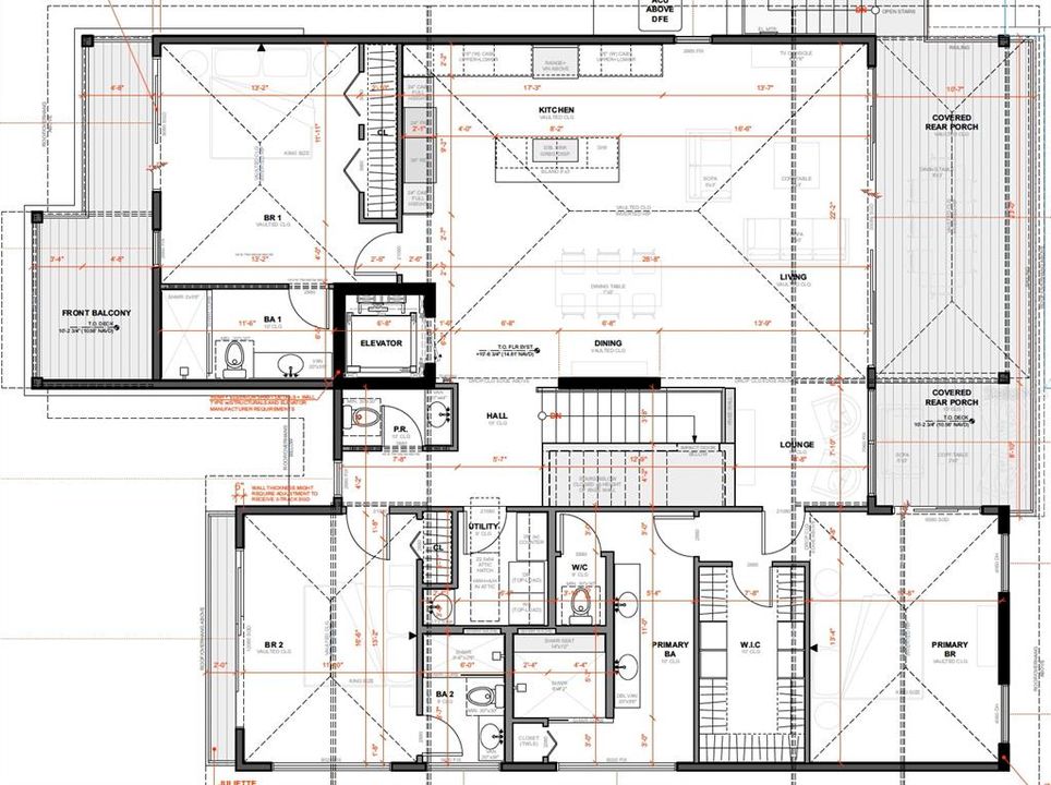
Discover the exceptional potential of 640 Lyons Lane, a perfectly situated vacant lot on a unique street in North Longboat Key, with homes only on one side and protected wetlands on the other. This property includes permitted plans for a stunning three-bedroom, three-and-a-half-bathroom home, offering an outstanding opportunity to build your dream residence in the sought-after Longboat Key. The existing plans showcase a well-designed layout, featuring a spacious primary suite with expansive views over the tranquil canal. For those seeking additional space, the plans can be updated to add another level, further enhancing the property's value and living area. Enjoy breathtaking water views from both the front and rear of the property, creating a serene and picturesque living environment. Adding to its allure, the property includes a newly installed pool and a convenient boat dock with a 10,000 lb lift, all seamlessly integrated into the new planned design, perfect for embracing the Florida boating lifestyle. Enjoy direct access to the Millar and Sarasota Bays with no fixed bridges to the Gulf, offering unparalleled convenience for boating enthusiasts. This listing is for the lot only and does not include the cost of construction. However, the permitted plans, surveys, and other essential documentation are included. Buyers have the flexibility to start over with new plans if desired. Pricing is available for the existing permitted plans from the contractor, but the buyer is free to choose any builder for the construction. Whether you're looking to create a permanent residence or a luxurious vacation retreat, 640 Lyons Lane offers the ideal canvas. Don't miss this opportunity to own a piece of paradise in Longboat Key, with proximity to pristine beaches, golf courses, and fine dining.

Ubicación

Hechos y características

Tipo:
Land
Estacionamiento:
Sin datos
Año de construcción:
Sin datos
Lote:
0.23 Hectáreas
Calefacción:
Sin datos
precio por sq. medidor:
Sin datos
Enfriamiento:
Sin datos
HOA:
Sin datos
Más hechos y características
  • Lote

    • Lote: 0.23 Hectáreas

    Otra Información de Propiedad

    • Número de Parcela: 7863600008

    • Zonificación: R4SF

  • Tipo y estilo

    • Tipo de propiedad: Land

  • Utilidad

    • Cable Available

    • Electricity Available

    • Natural Gas Available

    • Public

    • Sewer Available

    • Water Available

  • Otra información financiera

    • Importe anual de impuestos: $14,172

  • Detalles de la fuente

    • MLS ID: A4657391

    Otros hechos

    • Caras de dirección: North

    • Frente al mar: Si

    • Nombre del cuerpo de agua: MILLAR BAY AND SARASOTA BAY

    • Fuente de agua: Public

    • Tamaño de la parcela: 80 x 124

    • Nombre de subdivisión: SLEEPY LAGOON PARK 2

Casas similares

5219 BIMINI DRIVE placeholder 5219 BIMINI DRIVE
5 días
En Venta
Casa
$949,000
2 camas 2 baños 1,604 sqft
5219 BIMINI DRIVE
6841 LONGBOAT DRIVE S placeholder 6841 LONGBOAT DRIVE S
8 días
En Venta
Casa
$1,190,000
2 camas 2 baños 1,180 sqft
6841 LONGBOAT DRIVE S
615 DREAM ISLAND PLACE UNIT 105 placeholder 615 DREAM ISLAND PLACE UNIT 105
11 días
En Venta
Condo / Coop
$1,050,000
2 camas 2 baños 1,293 sqft
615 DREAM ISLAND PLACE UNIT 105
836 EVERGREEN WAY UNIT 0 placeholder 836 EVERGREEN WAY UNIT 0
14 días
En Venta
Condo / Coop
$1,100,000
3 camas 2 baños 2,813 sqft
836 EVERGREEN WAY UNIT 0
4503-4505 102ND STREET W placeholder 4503-4505 102ND STREET W
16 días
En Venta
Multifamiliar
$1,095,000
4 camas 2,204 sqft
4503-4505 102ND STREET W
4507 123RD STREET W placeholder 4507 123RD STREET W
17 días
En Venta
Multifamiliar
$1,295,000
0 room(s) 2,762 sqft
4507 123RD STREET W
4825 GULF OF MEXICO DRIVE UNIT 202 placeholder 4825 GULF OF MEXICO DRIVE UNIT 202
22 días
En Venta
Condo / Coop
$925,000
2 camas 2 baños 1,393 sqft
4825 GULF OF MEXICO DRIVE UNIT 202
5757 GULF OF MEXICO DRIVE UNIT 110 placeholder 5757 GULF OF MEXICO DRIVE UNIT 110
28 días
En Venta
Condo / Coop
$925,000
2 camas 2 baños 1,561 sqft
5757 GULF OF MEXICO DRIVE UNIT 110

The multiple listing information is provided by the Stellar MLS from a copyrighted compilation of listings. The compilation of listings and each individual listing are ©2025-present Stellar MLS. All Rights Reserved. The information provided is for consumers' personal, noncommercial use and may not be used for any purpose other than to identify prospective properties consumers may be interested in purchasing. All properties are subject to prior sale or withdrawal. All information provided is deemed reliable but is not guaranteed accurate, and should be independently verified. Listing courtesy of: SEA BREEZE REAL ESTATE LLC