Contacto
Cuéntenos sobre sus necesidades

10201 E Bay Harbor Dr # 5, Bay Harbor Islands FL 33154

Ático Recientemente alquilado
$12,500

BTC: 0.13586957

ETH: 4.03225806

/mo
Fecha de venta: 2025-02-20
1 días
Frente al mar
3 camas
3 baños
1,647 sqft
Est. Rango de ventas estimado: $0 - $0
$0

Visión general

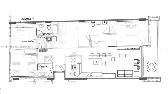
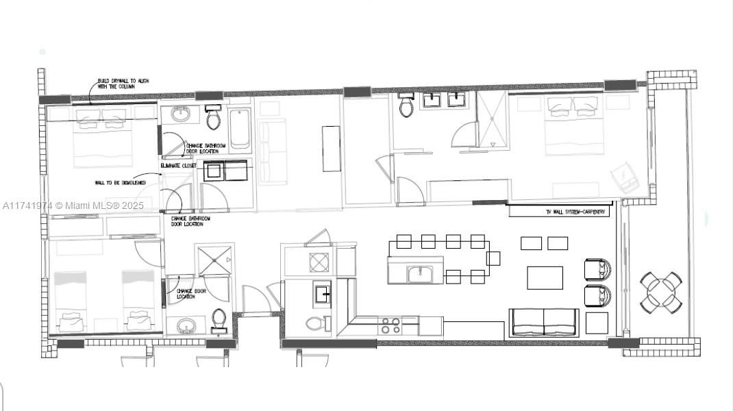
FULLY FURNISHED & DAZZLING VIEWS - Welcome to laid-back-luxury amazing Boutique Building | Fully Furnished| Penthouse |Waterfront. A private getaway that is closer than you think. An island, on the bay - superb location minutes away from the Beach, Houses of Worship, Bal Harbour Shops, restaurants, and "A" rated K-8 public school. THREE Bedroom Suites | ONE Half Bath | ONE DEN | TWO Parking Garage Covered | 9ft height Ceiling & flow through residences | 1.650 ft | 155 Mts . Private Boat Slip.

Ubicación

Hechos y características

Tipo:
Residential Lease
Estacionamiento:
2 Spaces / Limited # Of Vehicle / No Rv/Boats / No Trucks/Trailers
Año de construcción:
2016
Lote:
Sin datos
Calefacción:
Central / Electric
precio por sq. medidor:
$8
Enfriamiento:
Central Air / Electric
HOA:
Sin datos
Más hechos y características
  • Piso

    • Ceramic Floor

    Calefacción

    • Central

    • Electric

    Enfriamiento

    • Central Air

    • Electric

    Accesorios

    • Dishwasher

    • Dryer

    • Microwave

    • Electric Range

    • Refrigerator

    • Washer

    Otras características interiores

    • Built-in Features

    • Closet Cabinetry

    • Entrance Foyer

    • Den/Library/Office

    • Foyer

    Dormitorios y baños

    • Dormitorios: 3

    • Baños: 1

    • Baños completos: 3

  • Estacionamiento

    • 2 Spaces

    • Limited # Of Vehicle

    • No Rv/Boats

    • No Trucks/Trailers

    Propiedad

    • Características Exteriores: Open Balcony

    Otra Información de Propiedad

    • Número de Parcela: 13-22-27-117-0370

    • Zonificación: 4500

  • Tipo y estilo

    • Tipo de propiedad: Residential Lease

    • Subtipo de propiedad: Condominium

  • Detalles de la fuente

    • MLS ID: A11741974

    Otros hechos

    • Materiales de construcción: Concrete Block Construction

    • Características de lavandería: Washer/Dryer Hook-Up

    • Características del lote: Less Than 1/4 Acre Lot

    • Características del patio y el porche: Deck / Open Balcony

    • Caras de dirección: East

    • Estilo arquitectónico: Penthouse

    • Frente al mar: Si

    • Espacios de garaje: 2

    • Garaje adjunto: Si

    • Garaje: Si

    • Salón: 1647

    • Fuente de agua: Municipal Water

    • Nombre de subdivisión: SERENO RESIDENCES

Casas similares

6899 Collins Ave # 1605, Miami Beach FL 33141 placeholder 6899 Collins Ave # 1605, Miami Beach FL 33141
Nuevo
Recientemente alquilado
Condo / Coop
$12,500 /mo
2 camas 2 baños 1,290 sqft
6899 Collins Ave # 1605, Miami Beach FL 33141
10295 Collins, Bal Harbour, FL 33154 placeholder 10295 Collins, Bal Harbour, FL 33154
Nuevo
Recientemente alquilado
Condo / Coop
$0 /mo
2 camas 3 baños 2,228 sqft
10295 Collins, Bal Harbour, FL 33154
10275 Collins Ave # 1210, Bal Harbour FL 33154 placeholder 10275 Collins Ave # 1210, Bal Harbour FL 33154
Nuevo
Recientemente alquilado
Condo / Coop
$12,000 /mo
2 camas 2 baños 1,407 sqft
10275 Collins Ave # 1210, Bal Harbour FL 33154
16047 Collins Ave # 2002, Sunny Isles Beach FL 33160 placeholder 16047 Collins Ave # 2002, Sunny Isles Beach FL 33160
Nuevo
Recientemente alquilado
Condo / Coop
$12,000 /mo
2 camas 2 baños 2,245 sqft
16047 Collins Ave # 2002, Sunny Isles Beach FL 33160
6899 Collins Ave # 702, Miami Beach FL 33141 placeholder 6899 Collins Ave # 702, Miami Beach FL 33141
Nuevo
Recientemente alquilado
Condo / Coop
$20,000 /mo
3 camas 3 baños 2,050 sqft
6899 Collins Ave # 702, Miami Beach FL 33141
16001 Collins Ave # 1901, Sunny Isles Beach FL 33160 placeholder 16001 Collins Ave # 1901, Sunny Isles Beach FL 33160
Nuevo
Recientemente alquilado
Condo / Coop
$9,167 /mo
3 camas 3 baños 2,768 sqft
16001 Collins Ave # 1901, Sunny Isles Beach FL 33160
6899 Collins Ave # 2603, Miami Beach FL 33141 placeholder 6899 Collins Ave # 2603, Miami Beach FL 33141
Nuevo
Recientemente alquilado
Condo / Coop
$10,500 /mo
2 camas 2 baños 1,375 sqft
6899 Collins Ave # 2603, Miami Beach FL 33141
16425 Collins Ave # 1016, Sunny Isles Beach FL 33160 placeholder 16425 Collins Ave # 1016, Sunny Isles Beach FL 33160
Nuevo
Recientemente alquilado
Condo / Coop
$11,500 /mo
3 camas 3 baños 2,020 sqft
16425 Collins Ave # 1016, Sunny Isles Beach FL 33160

The multiple listing information is provided by the Miami Association of REALTORS® from a copyrighted compilation of listings. The compilation of listings and each individual listing are ©2026-present Miami Association of REALTORS®. All Rights Reserved. The information provided is for consumers' personal, noncommercial use and may not be used for any purpose other than to identify prospective properties consumers may be interested in purchasing. All properties are subject to prior sale or withdrawal. All information provided is deemed reliable but is not guaranteed accurate, and should be independently verified. Listing courtesy of: Miami New Realty