Contacto
Cuéntenos sobre sus necesidades

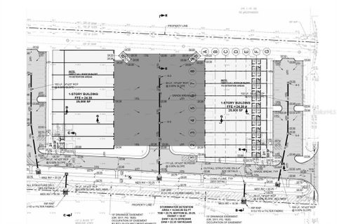
8411-8419 DUFFIE DRIVE UNIT 103

Comercial En Venta
$720,000

BTC: 24.00000000

ETH: 360.00000000

122 días
0 room(s)
750 sqft
Est. Rango de ventas estimado: $0 - $0
$0

Visión general

One or more photo(s) has been virtually staged. Pre-Construction. To be built. ECAP Zoned Flex Condos. 16 Units available across two - 25,000 Sq Ft. Buildings. Each unit will be 3,125 Sq Ft. Units may be bought individually or in bulk. Each unit will feature showroom space, 3 individual offices, and 1 ADA compliant bathroom. Warehouse space will include roll up door in rear, and 26+ feet ceiling heights. Property is conveniently located near the Punta Gorda airport 5 minute car drive to I75 Jones Loop Ramp. Enjoy the vibrant community of Punta Gorda featuring fine dinning, shopping & more Estimated completion date for the buildings is Quarter 4 of 2026. Condo fees are to be determined. For more information call. Information is deemed reliable but is not guaranteed.

Ubicación

Hechos y características

Tipo:
Commercial Sale
Estacionamiento:
Common / Over 30 Spaces
Año de construcción:
2026
Lote:
5.00 Hectáreas
Calefacción:
Central
precio por sq. medidor:
$960
Enfriamiento:
A/C - Office Only
HOA:
Sin datos
Más hechos y características
  • Piso

    • Concrete

    • Luxury Vinyl

    Calefacción

    • Central

    Enfriamiento

    • A/C - Office Only

  • Estacionamiento

    • Common

    • Over 30 Spaces

    Lote

    • Lote: 5.00 Hectáreas

    Otra Información de Propiedad

    • Número de Parcela: 412314400025

    • Zonificación: ECAP

  • Tipo y estilo

    • Tipo de propiedad: Commercial Sale

    • Subtipo de propiedad: Industrial

  • Utilidad

    • BB/HS Internet Capable

    • Electricity Available

    • Public

    • Water Connected

  • Otra información financiera

    • Importe anual de impuestos: $8,393

  • Detalles de la fuente

    • MLS ID: C7513200

    Otros hechos

    • Materiales de construcción: Metal Frame / Stone

    • Detalles de la fundación: Slab

    • Salón: 750

    • Nombre de subdivisión: WOODLAND ACRES

Casas similares

442 SCARLET SAGE placeholder 442 SCARLET SAGE
Nuevo
En Venta
Casa
$675,000
3 camas 3 baños 2,472 sqft
442 SCARLET SAGE
8158 ALFRED BOULEVARD placeholder 8158 ALFRED BOULEVARD
25 días
En Venta
Casa
$589,000
3 camas 2 baños 1,748 sqft
8158 ALFRED BOULEVARD
6640 TAYLOR ROAD UNIT B placeholder 6640 TAYLOR ROAD UNIT B
29 días
En Venta
Lotes / Tierras
$699,000
0 room(s)
6640 TAYLOR ROAD UNIT B
7028 N PLUM TREE placeholder 7028 N PLUM TREE
36 días
En Venta
Casa
$545,000
4 camas 3 baños 2,365 sqft
7028 N PLUM TREE
6405 ALAN BOULEVARD placeholder 6405 ALAN BOULEVARD
-$7K (2025/11/29)
En Venta
Casa
$542,900
3 camas 2 baños 1,920 sqft
6405 ALAN BOULEVARD
7166 N PLUM TREE placeholder 7166 N PLUM TREE
93 días
En Venta
Casa
$699,900
4 camas 3 baños 2,616 sqft
7166 N PLUM TREE
8411-8419 DUFFIE DRIVE UNIT 207 placeholder 8411-8419 DUFFIE DRIVE UNIT 207
94 días
En Venta
Comercial
$720,000
0 room(s) 750 sqft
8411-8419 DUFFIE DRIVE UNIT 207
10043 WINDING RIVER ROAD placeholder 10043 WINDING RIVER ROAD
-$15K (2025/10/23)
En Venta
Casa
$510,000
4 camas 3 baños 3,327 sqft
10043 WINDING RIVER ROAD

The multiple listing information is provided by the Stellar MLS from a copyrighted compilation of listings. The compilation of listings and each individual listing are ©2025-present Stellar MLS. All Rights Reserved. The information provided is for consumers' personal, noncommercial use and may not be used for any purpose other than to identify prospective properties consumers may be interested in purchasing. All properties are subject to prior sale or withdrawal. All information provided is deemed reliable but is not guaranteed accurate, and should be independently verified. Listing courtesy of: PREMIERE PLUS REALTY COMPANY